福岡県糟屋郡粕屋町大字仲原(柚須駅)の中古マンション・新築マンション・分譲マンション:物件詳細
交通 所在地 |
駅徒歩 |
価格 |
構造 階建/階 |
間取り 専有面積 |
物件種目 築年月 |
|
JR篠栗線/柚須
福岡県糟屋郡粕屋町大字仲原
|
12分
|
2,580万円
|
RC
10階建 / 4階
|
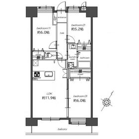
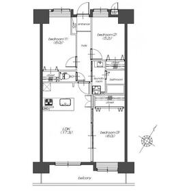
3LDK
65.28m²
|
中古マンション
1995年10月(築30年8ヶ月)
|
|
南向き、管理人日勤
|
|
間取図
誰もが使い勝手の良い間取りです。
|
外観
閑静な住宅地にそびえ立つマンション。
|
<
その他の画像
>
|
| 交通 | JR篠栗線 柚須駅 徒歩12分 |
|---|
| その他の交通 | JR篠栗線 原町駅 徒歩24分 |
| 所在地 |
福岡県糟屋郡粕屋町大字仲原
|
| 物件種目 |
中古マンション |
| 価格 |
2,580万円 |
平米単価 |
39.53万円 |
| 管理費等 |
5,000円 |
修繕積立金 |
10,400円 |
| 借地期間・地代(月額) |
- |
権利金 |
- |
| 敷金または保証金 |
- / - |
維持費等 |
- |
| その他一時金 |
- |
|
|
| 間取り |
3LDK |
専有面積 |
65.28m²(壁芯) |
| 階建 / 階 |
10階建 / 4階 |
バルコニー |
9.60m² |
| 築年月 |
1995年10月(築30年8ヶ月)
|
建物構造 |
RC |
| 駐車場 |
有 6,000円/月 |
総戸数 |
47戸 |
| 駐輪場 |
- |
バイク置き場 |
- |
| ペット |
-
|
|
|
| 土地権利 |
所有権 |
敷地面積 |
- |
| 管理形態/管理員の勤務形態 |
全部委託/日勤 |
国土法届出 |
- |
| アピールポイント |
南向き4階、家族の時間が自然と集まるLDK。
対面式カウンターキッチンからはリビング全体を見渡せ、小さなお子さまを見守りながら安心して家事ができます。
室内はキッチン・浴室・トイレ・洗面化粧台をすべて新品交換。フローリングや建具、クロスも一新し、まるで新築のような仕上がりです。さらに専有部の給排水管や給湯器まで交換済み。見えない部分まで手を入れた大規模リフォームで、これから先も安心してお住まいいただけます。
全居室フローリングの3LDK。収納も確保され、ご家族それぞれのプライベート空間も大切にできる間取りです。オートロック付きで防犯面も安心。スーパーやコンビニも近く、JR柚須駅まで徒歩約12分と通勤通学にも便利な立地。
「きれい」だけでなく「安心」と「暮らしやすさ」まで整った住まいです。ぜひ現地でご体感ください。 |
| 建物名・部屋番号 |
クローバーマンション空港東2 |
| リフォーム履歴 |
■水回り:2026年2月 キッチン、浴室、トイレ、給排水管、給湯器 ■内装:2026年2月 全室クロス張替え、床(フローリング等)、壁・天井(クロス・塗装等)、建具(室内ドア等) ※実施年月は最も古い履歴を表示 |
| リノベーション履歴 |
- |
| 瑕疵保証 |
- |
| 瑕疵保険 |
- |
| 評価・証明書 |
- |
| 備考 |
主要採光面:南向き
用途地域:準工業
設備にもこだわりぬいたお部屋です。また、マンション内には公園や宅配ボックス、駐輪場、バイク置き場などうれしいポイントが盛りだくさん!ぜひご内覧ください。
|
| エネルギー消費性能 |
- |
| 断熱性能 |
- |
| 目安光熱費 |
- |
| バス・トイレ |
- |
| キッチン |
カウンターキッチン、システムキッチン |
| 設備・サービス |
オートロック、全居室フローリング |
| その他 |
エレベーター |
| 条件等 |
- |
現況 |
空家 |
| 引渡可能時期 |
相談 |
物件番号 |
1166097407 |
| 情報公開日 |
2026年3月5日 |
次回更新予定日 |
2026年5月20日 |
| ケータイ用バーコード |
- スマートフォンでこの物件を見る
- スマートフォンからもこの物件をご覧になれます。
|
※「-」と表示されている項目については、情報提供会社にご確認ください。
| 周辺施設 |
イオン福岡東ショッピングセンター |
| 距離 |
579m |
写真を見る |
| 周辺施設 |
ミスターマックス 粕屋店 |
| 距離 |
724m |
| 周辺施設 |
業務スーパー 粕屋仲原店 |
| 距離 |
636m |
| 周辺施設 |
トライアル スマート粕屋店 |
| 距離 |
930m |
| 周辺施設 |
粕屋町立粕屋西小学校 |
| 距離 |
1133m |
写真を見る |
| 周辺施設 |
粕屋町立粕屋中学校 |
| 距離 |
1956m |
写真を見る |
| 周辺施設 |
ザ・ビッグ福岡空港東店 |
| 距離 |
1188m |
写真を見る |
| 周辺施設 |
スーパーセンタートライアル福岡空港店 |
| 距離 |
1717m |
写真を見る |
ここから簡単にお問い合わせをすることができます。
(SSLでの暗号化での送信を希望されるお客さまは
こちら
よりお問い合わせください)
お問い合わせを行う前に
「個人情報の取り扱いについて」を必ずお読みください。
「個人情報の取り扱いについて」に同意いただいた場合は「上記にご同意の上 確認画面へ進む」のボタンをクリックしてください。
個人情報の取り扱いについて
皆さまが送付された個人情報はアットホーム(株)のサーバを経由し、お問い合わせ先の不動産会社にメールまたはFAXにて転送されるためアットホーム(株)にも保管されます。アットホーム(株)で保管された個人情報の取り扱いについては、【こちら】をご覧ください。
また、本画面でご記入いただいた個人情報は、お問い合わせ先の不動産会社でも保管します。 お問い合わせ先の不動産会社が保管する個人情報の取り扱いについては、不動産会社に直接お問い合わせください。
福岡県知事免許(14)第4301号 |
|---|
- 交通:
- JR香椎線/須恵駅 徒歩27分
- 福岡県糟屋郡志免町南里3丁目4-1 A
- TEL:
- 092-935-1138
- FAX:
- 092-935-1148
- 所属団体:
- (公社)福岡県宅地建物取引業協会会員(一社)九州不動産公正取引協議会加盟
取引態様:一般媒介  - 80005475
|
- スマートフォンで
この不動産会社を見る

|
- 提携サイト等より掲載されている物件情報につきましては、不動産会社詳細情報にリンクされていないものがあります。
- 物件に関するお問合せは、物件詳細ページの「情報提供会社」に表示されている不動産会社へ直接お願いいたします。
- 間取図は、現況を優先させていただきます。
- 映像は物件の一部を撮影したものです。物件の契約にあたっての最終判断はご自身の判断に基づいて行ってください。
- 仲介手数料について

アットホームは物件情報の適正化に努めております。
内容に誤りがある場合にはこちらへご連絡ください。