埼玉県上尾市柏座3丁目(上尾駅)の中古マンション・新築マンション・分譲マンション:物件詳細
交通 所在地 |
駅徒歩 |
価格 |
構造 階建/階 |
間取り 専有面積 |
物件種目 築年月 |
JR高崎線/上尾 [バス利用可] バス 5分 西柏座 停歩5分
埼玉県上尾市柏座3丁目
|
6分
|
2,780万円
|
SRC
4階建 / 4階
|
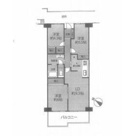
3LDK
66.31m²
|
中古マンション
1985年3月(築40年8ヶ月)
|
最上階、閑静な住宅街
|
間取図
|
外観
5/23 撮影済み
|
<
その他の画像
>
|
交通 | JR高崎線 上尾駅 徒歩6分 [バス利用可] バス 5分 西柏座 停歩5分 |
---|
その他の交通 | JR高崎線 北上尾駅 徒歩20分 JR高崎線 桶川駅 徒歩45分 |
所在地 |
埼玉県上尾市柏座3丁目
|
物件種目 |
中古マンション |
価格 |
2,780万円 |
平米単価 |
41.93万円 |
管理費等 |
6,500円 |
修繕積立金 |
14,850円 |
借地期間・地代(月額) |
- |
権利金 |
- |
敷金または保証金 |
- / - |
維持費等 |
- |
その他一時金 |
なし |
|
|
間取り |
3LDK(LDK13.1、洋6、5.5、4.3) |
専有面積 |
66.31m²(壁芯) |
階建 / 階 |
4階建 / 4階 |
バルコニー |
9.60m² |
築年月 |
1985年3月(築40年8ヶ月)
|
建物構造 |
SRC |
駐車場 |
- |
総戸数 |
269戸 |
駐輪場 |
- |
バイク置き場 |
- |
ペット |
-
|
|
|
土地権利 |
所有権 |
敷地面積 |
- |
管理形態/管理員の勤務形態 |
全部委託/不在 |
国土法届出 |
- |
アピールポイント |
【Komorebi house】ご成約選べる家電プレゼントキャンペーン♪
※詳細はホームページまたはスタッフまで!
お問合せからご来店いただいた方にAmazonギフトカード3,000円分プレゼント♪
●ご予約について
・当日のご内覧も大歓迎です!
・資料だけほしい方も、お気軽にお問合せくださいませ!
\\他社様掲載物件も全てまとめてご内覧ご予約可能です//
●資金計画・住宅ローンのご相談について
・いくら借りられるのか? 月々はいくらになるのか?
・頭金なしで購入できますか?
・どこの銀行がお得なのか知りたい!
\\ローンシミュレーションや最良な金融機関のご紹介//
\\事前審査から本申し込みまでお任せください//
●Komorebi houseについて
・初めてで何から始めればいいか分からない。
・不動産会社はたくさんあるけど何となく入りずらい、相談しずらい。
\\そんな業界のイメージを変えたくて立ち上げました//
\\有資格者・大手ハウスメーカー経験者・不動産歴の長い経験豊富なスタッフ在籍//
癒しと温かみのある住まい探しを、全力でサポートさせていただきます! |
建物名・部屋番号 |
パーク上尾壱番館 |
リフォーム履歴 |
- |
リノベーション履歴 |
- |
瑕疵保証 |
- |
瑕疵保険 |
- |
評価・証明書 |
- |
備考 |
主要採光面:北西向き
用途地域:2種中高
眺望良好 2口コンロ 通風良好 南面バルコニー システムキッチン 全室収納 ワイドバルコニー 水回り交換 上尾市 駅チカ JR高崎線 上尾駅 上尾市立富士見小学校 上尾市立西中学校
【地域密着エリア特化の不動産】 弊社は、埼玉県の新築戸建て、中古戸建て、マンション、土地などの取り扱いに特化しております! 【Komorebi houseの強み】 ☆新築・中古戸建て購入の方☆ ●毎年、提携業者(第三者機関)にて定期点検が永年無料! ●建物状況調査(インスペクション)と同等検査が無料で行えます! ●第三者の視点で既存住宅に劣化や不具合が生じていないか検査を行います! ☆レスポンス☆ ●内覧の即日対応!スタッフが駆け付けます! ●諸費用のご相談!ローン計画書もすぐお送りいたします! ●その他ご不明点ご質問に即日回答させていただきます! ☆住宅ローン☆ ●提携銀行多数、たくさんの銀行さんをご紹介できます! ●他社で否決・減額になってしまった方も承認実績あり! ●シングルマザーの方、審査に不安のある方なども柔軟にご対応させていただきます!
|
エネルギー消費性能 |
- |
断熱性能 |
- |
目安光熱費 |
- |
バス・トイレ |
- |
キッチン |
システムキッチン、2口コンロ |
設備・サービス |
全居室収納、収納スペース、室内洗濯機置場、洗濯機置場、都市ガス、ワイドバルコニー |
その他 |
エレベーター |
条件等 |
- |
現況 |
空家 |
引渡可能時期 |
即時 |
物件番号 |
1167507809 |
情報公開日 |
2025年5月24日 |
次回更新予定日 |
2025年11月4日 |
ケータイ用バーコード |
- スマートフォンでこの物件を見る
- スマートフォンからもこの物件をご覧になれます。
|
※「-」と表示されている項目については、情報提供会社にご確認ください。
周辺施設 |
上尾富士見幼稚園 |
距離 |
919m |
写真を見る |
周辺施設 |
上尾市立富士見小学校 |
距離 |
807m |
写真を見る |
周辺施設 |
上尾市立西中学校 |
距離 |
1397m |
写真を見る |
周辺施設 |
春日第二公園 |
距離 |
580m |
写真を見る |
周辺施設 |
武蔵野銀行上尾支店 |
距離 |
561m |
写真を見る |
周辺施設 |
上尾宮本町郵便局 |
距離 |
999m |
写真を見る |
周辺施設 |
Big-A 上町店 |
距離 |
713m |
写真を見る |
周辺施設 |
スーパーバリュー上尾緑丘店 |
距離 |
733m |
写真を見る |
ここから簡単にお問い合わせをすることができます。
(SSLでの暗号化での送信を希望されるお客さまは
こちら
よりお問い合わせください)
お問い合わせを行う前に
「個人情報の取り扱いについて」を必ずお読みください。
「個人情報の取り扱いについて」に同意いただいた場合は「上記にご同意の上 確認画面へ進む」のボタンをクリックしてください。
個人情報の取り扱いについて
皆さまが送付された個人情報はアットホーム(株)のサーバを経由し、お問い合わせ先の不動産会社にメールまたはFAXにて転送されるためアットホーム(株)にも保管されます。アットホーム(株)で保管された個人情報の取り扱いについては、【こちら】をご覧ください。
また、本画面でご記入いただいた個人情報は、お問い合わせ先の不動産会社でも保管します。 お問い合わせ先の不動産会社が保管する個人情報の取り扱いについては、不動産会社に直接お問い合わせください。
埼玉県知事免許(1)第25102号 |
---|
- 交通:
- JR高崎線/桶川駅
- 埼玉県上尾市泉台2丁目6-9 泉台ハイツ1B
- TEL:
- 048-788-5340
- 所属団体:
- (公社)埼玉県宅地建物取引業協会会員(公社)首都圏不動産公正取引協議会加盟
取引態様:媒介  - 00275218
|
- スマートフォンで
この不動産会社を見る

|
- 提携サイト等より掲載されている物件情報につきましては、不動産会社詳細情報にリンクされていないものがあります。
- 物件に関するお問合せは、物件詳細ページの「情報提供会社」に表示されている不動産会社へ直接お願いいたします。
- 間取図は、現況を優先させていただきます。
- 映像は物件の一部を撮影したものです。物件の契約にあたっての最終判断はご自身の判断に基づいて行ってください。
- 仲介手数料について

アットホームは物件情報の適正化に努めております。
内容に誤りがある場合にはこちらへご連絡ください。