千葉県千葉市中央区末広4丁目(千葉寺駅)の中古マンション・新築マンション・分譲マンション:物件詳細
交通 所在地 |
駅徒歩 |
価格 |
構造 階建/階 |
間取り 専有面積 |
物件種目 築年月 |
|
京成千原線/千葉寺
千葉県千葉市中央区末広4丁目
|
2分
|
2,880万円
|
RC
6階建 / 4階
|
3LDK
70.50m²
|
中古マンション
1997年8月(築28年5ヶ月)
|
|
常時ゴミ出し可能、南向き、24時間セキュリティー、管理人日勤
|
|
≪オープンルーム/モデルルーム≫【開催期間】2025年12月6日~12月7日 【時間】10:00~18:00 事前に必ず予約してください
|
|
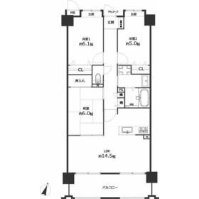
間取図
|
外観
|
<
その他の画像
>
|
| 交通 | 京成千原線 千葉寺駅 徒歩2分 |
|---|
| その他の交通 | JR京葉線 蘇我駅 徒歩15分 JR総武本線 千葉駅 【バス】 9分 末広町四丁目 停歩3分 |
| 所在地 |
千葉県千葉市中央区末広4丁目
|
| 物件種目 |
中古マンション |
| 価格 |
2,880万円 |
平米単価 |
40.86万円 |
| 管理費等 |
10,000円 |
修繕積立金 |
17,530円 |
| 借地期間・地代(月額) |
- |
権利金 |
- |
| 敷金または保証金 |
- / - |
維持費等 |
- |
| その他一時金 |
なし |
|
|
| 間取り |
3LDK(LDK14.5、和6、洋6.1、5) |
専有面積 |
70.50m²(壁芯) |
| 階建 / 階 |
6階建 / 4階 |
バルコニー |
10.74m² |
| 築年月 |
1997年8月(築28年5ヶ月)
|
建物構造 |
RC |
| 駐車場 |
空無 |
総戸数 |
52戸 |
| 駐輪場 |
有 |
バイク置き場 |
有 |
| ペット |
-
|
|
|
| 土地権利 |
所有権 |
敷地面積 |
- |
| 管理形態/管理員の勤務形態 |
全部委託/日勤 |
国土法届出 |
- |
| アピールポイント |
TERASSがおススメする住宅ローン
【 auじぶん銀行 】変動金利 0.584%(諸条件適用の場合)
・がん100%保障団信が【金利上乗せなし】で加入可能!
・頭金0円でも可能!
・諸費用も、物件価格の10%までは融資可能!
※2025年12月現在
■京成千原線「千葉寺」駅まで徒歩2分
■雨の日や花粉の季節に重宝する浴室乾燥機付き
■24時間ゴミ出し可能
■不在時に便利な宅配ボックス
【リフォーム内容】
○新規交換:システムキッチン・ユニットバス・浴室乾燥機・洗面化粧台・トイレ・防水パン
○フローリング新規・シーリングライト取付
○張替:襖・畳・クロス
○ハウスクリーニング 他 |
| 建物名・部屋番号 |
ヴェラハイツ青葉の森公園 |
| リフォーム履歴 |
■水回り:2025年7月 キッチン、浴室、トイレ ■内装:2025年7月 床(フローリング等)、壁・天井(クロス・塗装等) ハウスクリーニング他 ■その他:2025年7月 内装(キッチン 浴室 トイレ 壁 床 ハウスクリーニング他)外装(大規模修繕 ) ※実施年月は最も古い履歴を表示 |
| リノベーション履歴 |
- |
| 瑕疵保証 |
- |
| 瑕疵保険 |
- |
| 評価・証明書 |
- |
| 備考 |
主要採光面:南向き
法令等制限:■駐車場:月額7000~9000円/空無■駐輪場・バイク置き場:無償/
用途地域:2種住居
■駐車場:月額7000~9000円/空無■駐輪場・バイク置き場:無償/空無■エアコン:全部屋設置可※隠蔽配管あり■大規模修繕予定:2025年
|
| エネルギー消費性能 |
- |
| 断熱性能 |
- |
| 目安光熱費 |
- |
| バス・トイレ |
浴室乾燥機、追焚機能、シャワー付洗面化粧台、温水洗浄便座 |
| キッチン |
カウンターキッチン、システムキッチン、浄水器 |
| 設備・サービス |
モニター付オートロック、バイク置き場、収納スペース、クローゼット、オートロック、モニター付インターホン、防犯カメラ、出窓、駐輪場、照明器具 |
| その他 |
宅配BOX、エレベーター |
| 条件等 |
- |
現況 |
空家 |
| 引渡可能時期 |
相談 |
物件番号 |
1167783209 |
| 情報公開日 |
2025年9月27日 |
次回更新予定日 |
2025年12月19日 |
| ケータイ用バーコード |
- スマートフォンでこの物件を見る
- スマートフォンからもこの物件をご覧になれます。
|
※「-」と表示されている項目については、情報提供会社にご確認ください。
ここから簡単にお問い合わせをすることができます。
(SSLでの暗号化での送信を希望されるお客さまは
こちら
よりお問い合わせください)
お問い合わせを行う前に
「個人情報の取り扱いについて」を必ずお読みください。
「個人情報の取り扱いについて」に同意いただいた場合は「上記にご同意の上 確認画面へ進む」のボタンをクリックしてください。
個人情報の取り扱いについて
皆さまが送付された個人情報はアットホーム(株)のサーバを経由し、お問い合わせ先の不動産会社にメールまたはFAXにて転送されるためアットホーム(株)にも保管されます。アットホーム(株)で保管された個人情報の取り扱いについては、【こちら】をご覧ください。
また、本画面でご記入いただいた個人情報は、お問い合わせ先の不動産会社でも保管します。 お問い合わせ先の不動産会社が保管する個人情報の取り扱いについては、不動産会社に直接お問い合わせください。
国土交通大臣免許(1)第10125号 |
|---|
- 交通:
- 東京メトロ日比谷線/虎ノ門ヒルズ駅 徒歩3分
- 東京都港区虎ノ門2丁目2-1 住友不動産虎ノ門タワー13階
- TEL:
- 050-3144-9765
- FAX:
- 03-6369-3864
- 所属団体:
- (公社)東京都宅地建物取引業協会会員(公社)首都圏不動産公正取引協議会加盟
取引態様:媒介  - 00786420
|
- スマートフォンで
この不動産会社を見る

|
- 提携サイト等より掲載されている物件情報につきましては、不動産会社詳細情報にリンクされていないものがあります。
- 物件に関するお問合せは、物件詳細ページの「情報提供会社」に表示されている不動産会社へ直接お願いいたします。
- 間取図は、現況を優先させていただきます。
- 映像は物件の一部を撮影したものです。物件の契約にあたっての最終判断はご自身の判断に基づいて行ってください。
- 仲介手数料について

アットホームは物件情報の適正化に努めております。
内容に誤りがある場合にはこちらへご連絡ください。