神奈川県横浜市港北区下田町5丁目(高田駅)の中古マンション・新築マンション・分譲マンション:物件詳細
				
					
					
				
																
		
		
			
				| 交通 所在地
 | 駅徒歩 | 価格 | 構造 階建/階
 | 間取り 専有面積
 | 物件種目 築年月
 | 
		
		
			
				
				| グリーンライン/高田
										 神奈川県横浜市港北区下田町5丁目 | 
					12分
 | 
					3,690万円
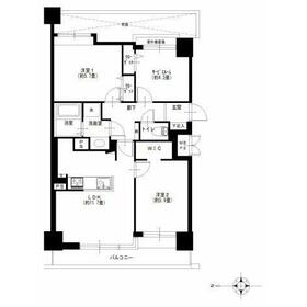
					 | RC 8階建 / 5階 | 2SLDK 
				61.58m²
				 | 中古マンション 1997年3月(築28年8ヶ月)
																	 | 
						
				|  ペット相談、閑静な住宅街、外観タイル張り、管理人日勤
 | 
								
		
				
			
		
					| 間取図 | 外観 2025年8月撮影 | 
		
		| 
				
										<
										
						>
							 その他の画像 | 
				
		
	 
					
		
			
			
	          | 交通 | グリーンライン 高田駅 徒歩12分 | 
|---|
| その他の交通 | 東急東横線 日吉駅【バス】 13分 南原(横浜市港北区) 停歩2分
 東急目黒線 日吉駅【バス】 13分 南原(横浜市港北区) 停歩2分
 | 
|---|
		
			| 所在地 | 神奈川県横浜市港北区下田町5丁目 | 
		
		
			
				| 物件種目 | 中古マンション | 
			
				| 価格 | 3,690万円 | 平米単価 | 59.93万円 | 
			
				| 管理費等 | 11,700円 | 修繕積立金 | 11,210円 | 
			
				| 借地期間・地代(月額) | - | 権利金 | - | 
			
				| 敷金または保証金 | - / - | 維持費等 | - | 
			
				| その他一時金 | なし |  |  | 
					
		
			
				| 間取り | 2SLDK | 専有面積 | 61.58m²(壁芯) | 
			
				| 階建 / 階 | 8階建 / 5階 | バルコニー | 7.51m² | 
			
				| 築年月 | 1997年3月(築28年8ヶ月) | 建物構造 | RC | 
			
				| 駐車場 | 空無 | 総戸数 | 51戸 | 
			
				| 駐輪場 | 空無 | バイク置き場 | 空無 | 
			
				| ペット | 相談 |  |  | 
			
				| 土地権利 | 所有権 | 敷地面積 | - | 
			
				| 管理形態/管理員の勤務形態 | 全部委託/日勤 | 国土法届出 | - | 
			
	| アピールポイント | ◆弊社売主のため仲介手数料無料◆ 
 【物件のポイント】
 ○閑静な住宅街に立地!オートロック・宅配ボックス付マンション
 ○犬・猫2匹まで飼育可(細則あり)
 ○対面キッチンのため、ご家族との会話を楽しみながらお料理ができます◎
 ○ウォークインクローゼットや可動棚など、整理しやすい室内
 ○スーパー三徳 高田店まで徒歩7分、お買い物に便利です!
 ○下田小学校・日吉台西中学校まで徒歩10分圏内♪
 
 リノベーション内容(2025年7月完了)
 ■システムキッチン
 ■ユニットバス(追焚機能付)
 ■給湯器
 ■トイレ(温水洗浄便座)
 ■フローリング
 ■壁、天井クロス
 ■給水・給湯管(一部)、他
 | 
			
				| 建物名・部屋番号 | ライオンズガーデン日吉台 | 
			
				| リフォーム履歴 | ■水回り:2025年7月 キッチン、浴室、トイレ
 ■内装:2025年7月
 床(フローリング等)、壁・天井(クロス・塗装等)
 給排水管 給湯器
 ■その他:2025年7月
 内装(キッチン 浴室 トイレ 壁 床 全室 給排水管 給湯器)
 ※実施年月は最も古い履歴を表示
 | 
			
				| リノベーション履歴 | - | 
			
				| 瑕疵保証 | - | 
			
				| 瑕疵保険 | - | 
			
				| 評価・証明書 | - | 
			
				| 備考 | 
																	主要採光面:西向き
											用途地域:1種住居、1種低層
 | 
		
				
		
		| エネルギー消費性能 | - | 
	
		| 断熱性能 | - | 
	
		| 目安光熱費 | - | 
	
		
									
				| バス・トイレ | 浴室乾燥機、オートバス、追焚機能、シャワー付洗面化粧台、温水洗浄便座 | 
						
				| キッチン | カウンターキッチン、システムキッチン、3口以上コンロ、グリル | 
						
				| 設備・サービス | モニター付オートロック、全居室収納、ウォークインクローゼット、バイク置き場、収納スペース、トランクルーム、クローゼット、オートロック、モニター付インターホン、防犯カメラ、給湯、全居室フローリング、駐輪場、人感センサー付照明、照明器具、インターネット対応、CS、BS端子 | 
						
				| その他 | 宅配BOX、エレベーター | 
					
		
			
				| 条件等 | - | 現況 | 空家 | 
			
				| 引渡可能時期 | 相談 | 物件番号 | 1168439209 | 
						
				| 情報公開日 | 2025年6月16日 | 次回更新予定日 | 2025年11月8日 | 
						
				| ケータイ用バーコード | 
				
				
				
					スマートフォンでこの物件を見るスマートフォンからもこの物件をご覧になれます。 | 
					
		 
	 									※「-」と表示されている項目については、情報提供会社にご確認ください。
									
												
					
					  ここから簡単にお問い合わせをすることができます。
(SSLでの暗号化での送信を希望されるお客さまは
													こちら
												よりお問い合わせください)
					
					
						
						
					
					お問い合わせを行う前に
「個人情報の取り扱いについて」を必ずお読みください。
「個人情報の取り扱いについて」に同意いただいた場合は「上記にご同意の上 確認画面へ進む」のボタンをクリックしてください。 
						個人情報の取り扱いについて
						皆さまが送付された個人情報はアットホーム(株)のサーバを経由し、お問い合わせ先の不動産会社にメールまたはFAXにて転送されるためアットホーム(株)にも保管されます。アットホーム(株)で保管された個人情報の取り扱いについては、【こちら】をご覧ください。
						また、本画面でご記入いただいた個人情報は、お問い合わせ先の不動産会社でも保管します。 お問い合わせ先の不動産会社が保管する個人情報の取り扱いについては、不動産会社に直接お問い合わせください。
					 
					 
					
														
				  
				  
					| 国土交通大臣免許(4)第7356号 | 
|---|
| 交通:東京メトロ日比谷線/人形町駅 徒歩4分東京都中央区日本橋小舟町8-1 ヒューリック小舟町ビル6FTEL:03-5652-8343FAX:03-5652-9330所属団体:(一社)不動産流通経営協会会員
 取引態様:売主 00016406
 | 
							  
								スマートフォンでこの不動産会社を見る
 | 
					  
					 
				 
							
						
												
			
					
- 提携サイト等より掲載されている物件情報につきましては、不動産会社詳細情報にリンクされていないものがあります。
- 物件に関するお問合せは、物件詳細ページの「情報提供会社」に表示されている不動産会社へ直接お願いいたします。
- 間取図は、現況を優先させていただきます。
- 映像は物件の一部を撮影したものです。物件の契約にあたっての最終判断はご自身の判断に基づいて行ってください。
- 仲介手数料について 
アットホームは物件情報の適正化に努めております。
内容に誤りがある場合にはこちらへご連絡ください。