神奈川県横浜市青葉区美しが丘5丁目(たまプラーザ駅)の中古マンション・新築マンション・分譲マンション:物件詳細
交通 所在地 |
駅徒歩 |
価格 |
構造 階建/階 |
間取り 専有面積 |
物件種目 築年月 |
|
東急田園都市線/たまプラーザ
神奈川県横浜市青葉区美しが丘5丁目
|
12分
|
5,480万円
|
RC
7階建 / 4階
|
3LDK
67.19m²
|
中古マンション
1999年12月(築26年1ヶ月)
|
|
ペット相談、外壁サイディング、バス1坪以上、24時間換気システム、閑静な住宅街、管理人日勤
|
|
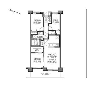
間取図
間取り図
|
外観
前面道路は交通量が少なく、小さなお子様がいるご家庭でも安心です!
|
<
その他の画像
>
|
| 交通 | 東急田園都市線 たまプラーザ駅 徒歩12分 |
|---|
| その他の交通 | 東急田園都市線 あざみ野駅 徒歩15分 小田急小田原線 新百合ヶ丘駅 徒歩5600m [バス利用可] バス 20分 元石川町 停歩2分 |
| 所在地 |
神奈川県横浜市青葉区美しが丘5丁目
|
| 物件種目 |
中古マンション |
| 価格 |
5,480万円 |
平米単価 |
81.56万円 |
| 管理費等 |
9,070円 |
修繕積立金 |
19,490円 |
| 借地期間・地代(月額) |
- |
権利金 |
- |
| 敷金または保証金 |
- / - |
維持費等 |
- |
| その他一時金 |
- |
|
|
| 間取り |
3LDK(LDK14 洋6 洋5.3 洋4.3) |
専有面積 |
67.19m²(壁芯) |
| 階建 / 階 |
7階建 / 4階 |
バルコニー |
9.69m² |
| 築年月 |
1999年12月(築26年1ヶ月)
|
建物構造 |
RC |
| 駐車場 |
空無 |
総戸数 |
53戸 |
| 駐輪場 |
有 1,200円/月 |
バイク置き場 |
有 |
| ペット |
相談 |
|
|
| 土地権利 |
所有権 |
敷地面積 |
- |
| 管理形態/管理員の勤務形態 |
全部委託/日勤 |
国土法届出 |
- |
| アピールポイント |
◇◆創業41周年の朝日土地建物グループで購入後も安心◆◇
地域密着!購入だけでなくご売却もしっかりとサポートします!
◇◆【朝日土地建物グループ 登戸支店】イチ押しポイント!◆◇
◆◇ペット可・オートロック・宅配BOXが完備された
三井住友不動産の新耐震基準マンション◇◆
■駅徒歩12分と利便性・住環境良好!
■日中の暖かい光が降り注ぐ南西バルコニー!
■総戸数53世帯と充実の世帯数!
■小学校、中学校が近くお子様のいるご家庭も安心です。
■住宅ローンのご相談、お住み替えのご相談も無料です■
◆お気軽にお問い合わせください
◆0120-51-7061◆ 朝日土地建物グループ 登戸支店へ |
| 建物名・部屋番号 |
たまプラーザ美しが丘パークホームズ弐番館 |
| リフォーム履歴 |
■水回り:2025年3月 キッチン、浴室、トイレ、洗面所 ■内装:2025年3月 床(フローリング等)、壁・天井(クロス・塗装等) ※実施年月は最も古い履歴を表示 |
| リノベーション履歴 |
- |
| 瑕疵保証 |
- |
| 瑕疵保険 |
- |
| 評価・証明書 |
- |
| 備考 |
主要採光面:南西向き
法令等制限:準防火地域 景観法 高度地区
用途地域:準住居
朝日土地建物株式会社は、神奈川県・東京都・埼玉県の不動産を中心に取り扱っている不動産会社です。おかげさまで創業41年の信頼と安心でお客様の住まい探しを全力でサポートいたします。
|
| エネルギー消費性能 |
- |
| 断熱性能 |
- |
| 目安光熱費 |
- |
| バス・トイレ |
浴室乾燥機、オートバス、温水洗浄便座 |
| キッチン |
カウンターキッチン、システムキッチン、食器洗浄乾燥機、浄水器、3口以上コンロ |
| 設備・サービス |
ウォークインクローゼット、バイク置き場、収納スペース、オートロック、ディンプルキー、防犯カメラ、洗濯機置場、給湯、全居室フローリング、都市ガス、駐輪場 |
| その他 |
宅配BOX、エレベーター |
| 条件等 |
- |
現況 |
空家 |
| 引渡可能時期 |
即時 |
物件番号 |
1171262105 |
| 情報公開日 |
2025年7月31日 |
次回更新予定日 |
2025年12月16日 |
| ケータイ用バーコード |
- スマートフォンでこの物件を見る
- スマートフォンからもこの物件をご覧になれます。
|
※「-」と表示されている項目については、情報提供会社にご確認ください。
ここから簡単にお問い合わせをすることができます。
(SSLでの暗号化での送信を希望されるお客さまは
こちら
よりお問い合わせください)
お問い合わせを行う前に
「個人情報の取り扱いについて」を必ずお読みください。
「個人情報の取り扱いについて」に同意いただいた場合は「上記にご同意の上 確認画面へ進む」のボタンをクリックしてください。
個人情報の取り扱いについて
皆さまが送付された個人情報はアットホーム(株)のサーバを経由し、お問い合わせ先の不動産会社にメールまたはFAXにて転送されるためアットホーム(株)にも保管されます。アットホーム(株)で保管された個人情報の取り扱いについては、【こちら】をご覧ください。
また、本画面でご記入いただいた個人情報は、お問い合わせ先の不動産会社でも保管します。 お問い合わせ先の不動産会社が保管する個人情報の取り扱いについては、不動産会社に直接お問い合わせください。
国土交通大臣免許(9)第3744号 |
|---|
- 交通:
- 小田急小田原線/向ヶ丘遊園駅 徒歩1分
- 神奈川県川崎市多摩区登戸2423-1 maruei7 1F
- TEL:
- 044-922-4391
- FAX:
- 044-922-4317
- 所属団体:
- (公社)神奈川県宅地建物取引業協会会員(公社)首都圏不動産公正取引協議会加盟
取引態様:媒介  - 00783951
|
- スマートフォンで
この不動産会社を見る

|
- 提携サイト等より掲載されている物件情報につきましては、不動産会社詳細情報にリンクされていないものがあります。
- 物件に関するお問合せは、物件詳細ページの「情報提供会社」に表示されている不動産会社へ直接お願いいたします。
- 間取図は、現況を優先させていただきます。
- 映像は物件の一部を撮影したものです。物件の契約にあたっての最終判断はご自身の判断に基づいて行ってください。
- 仲介手数料について

アットホームは物件情報の適正化に努めております。
内容に誤りがある場合にはこちらへご連絡ください。