千葉県松戸市新松戸3丁目(新松戸駅)の中古マンション・新築マンション・分譲マンション:物件詳細
交通 所在地 |
駅徒歩 |
価格 |
構造 階建/階 |
間取り 専有面積 |
物件種目 築年月 |
JR千代田・常磐緩行線/新松戸
千葉県松戸市新松戸3丁目
|
5分
|
3,599万円
|
SRC
13階建 / 11階
|
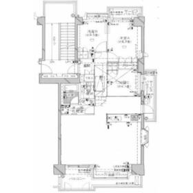
3LDK
81.45m²
|
中古マンション
1988年3月(築37年8ヶ月)
|
角部屋、2面採光、管理人日勤
|
≪オープンルーム/モデルルーム≫【開催期間】2025年9月20日~2026年3月31日 【時間】10:00~19:00 事前に必ず予約してください
|
間取図
|
外観
陽当りや通風、周辺環境や街並みなど是非一度、現地をご確認ください。
|
<
その他の画像
>
|
|
交通 | JR千代田・常磐緩行線 新松戸駅 徒歩5分 |
---|
その他の交通 | つくばエクスプレス 南流山駅 徒歩31分 流鉄流山線 幸谷駅 徒歩4分 |
所在地 |
千葉県松戸市新松戸3丁目
|
物件種目 |
中古マンション |
価格 |
3,599万円 |
平米単価 |
44.19万円 |
管理費等 |
16,300円 |
修繕積立金 |
15,500円 |
借地期間・地代(月額) |
- |
権利金 |
- |
敷金または保証金 |
- / - |
維持費等 |
他費用:774円/月 |
その他一時金 |
なし |
|
|
間取り |
3LDK |
専有面積 |
81.45m²(壁芯) |
階建 / 階 |
13階建 / 11階 |
バルコニー |
10.02m² |
築年月 |
1988年3月(築37年8ヶ月)
|
建物構造 |
SRC |
駐車場 |
有 無料 |
総戸数 |
120戸 |
駐輪場 |
- |
バイク置き場 |
- |
ペット |
-
|
|
|
土地権利 |
所有権 |
敷地面積 |
- |
管理形態/管理員の勤務形態 |
全部委託/日勤 |
国土法届出 |
- |
アピールポイント |
【おすすめポイント】
リフォーム内容
・クロス一部交換
・クリーニング
・フルリフォーム履歴あり
【立地の魅力】
・交通アクセスが良好です♪
- JR常磐緩行線「新松戸」駅まで徒歩5分
・大学のキャンパスがあり街に活気があります
・日々のお買い物がラクラク♪
- 徒歩10分圏内にスーパーやコンビニ、ドラッグストアなど
- 駅周辺のさまざまな施設を気軽に利用可
◆◇ご案内・詳細資料のご請求はお気軽にどうぞ◇◆
TEL:047-362-0888
ローンの事なら【住宅ローンに強い】アスライクまで♪
【無料のFP相談】も好評実施中! |
建物名・部屋番号 |
パークハウス新松戸311 |
リフォーム履歴 |
■内装:2024年8月 壁・天井(クロス・塗装等) ハウスクリーニング ■その他:2024年8月 内装(壁 ハウスクリーニング) ※実施年月は最も古い履歴を表示 |
リノベーション履歴 |
- |
瑕疵保証 |
- |
瑕疵保険 |
- |
評価・証明書 |
- |
備考 |
主要採光面:南東向き
施工会社:清水建設(株)
用途地域:商業地域
|
エネルギー消費性能 |
- |
断熱性能 |
- |
目安光熱費 |
- |
バス・トイレ |
オートバス、追焚機能、温水洗浄便座 |
キッチン |
カウンターキッチン、システムキッチン、3口以上コンロ |
設備・サービス |
全居室収納、三面バルコニー、収納スペース、室内洗濯機置場、クローゼット、モニター付インターホン、防犯カメラ、洗濯機置場、出窓、全居室フローリング、都市ガス、ワイドバルコニー |
その他 |
宅配BOX、エレベーター |
条件等 |
- |
現況 |
空家 |
引渡可能時期 |
相談 |
物件番号 |
1171273109 |
情報公開日 |
2025年8月29日 |
次回更新予定日 |
2025年10月18日 |
ケータイ用バーコード |
- スマートフォンでこの物件を見る
- スマートフォンからもこの物件をご覧になれます。
|
※「-」と表示されている項目については、情報提供会社にご確認ください。
周辺施設 |
イオンフードスタイル 新松戸店 |
距離 |
260m |
写真を見る |
周辺施設 |
セブンイレブン 新松戸4丁目店 |
距離 |
170m |
写真を見る |
周辺施設 |
ローソン・スリーエフ 新松戸四丁目店 |
距離 |
110m |
写真を見る |
周辺施設 |
新松戸中央公園 |
距離 |
700m |
写真を見る |
周辺施設 |
新松戸中央総合病院 |
距離 |
500m |
写真を見る |
周辺施設 |
マツモトキヨシ 新松戸2丁目店 |
距離 |
350m |
写真を見る |
周辺施設 |
業務スーパー新松戸店 |
距離 |
450m |
写真を見る |
周辺施設 |
コープみらい コープ新松戸店 |
距離 |
350m |
写真を見る |
ここから簡単にお問い合わせをすることができます。
(SSLでの暗号化での送信を希望されるお客さまは
こちら
よりお問い合わせください)
お問い合わせを行う前に
「個人情報の取り扱いについて」を必ずお読みください。
「個人情報の取り扱いについて」に同意いただいた場合は「上記にご同意の上 確認画面へ進む」のボタンをクリックしてください。
個人情報の取り扱いについて
皆さまが送付された個人情報はアットホーム(株)のサーバを経由し、お問い合わせ先の不動産会社にメールまたはFAXにて転送されるためアットホーム(株)にも保管されます。アットホーム(株)で保管された個人情報の取り扱いについては、【こちら】をご覧ください。
また、本画面でご記入いただいた個人情報は、お問い合わせ先の不動産会社でも保管します。 お問い合わせ先の不動産会社が保管する個人情報の取り扱いについては、不動産会社に直接お問い合わせください。
千葉県知事免許(2)第17761号 |
---|
- 交通:
- JR常磐線/松戸駅 徒歩5分
- 千葉県松戸市根本7番17号 1F
- TEL:
- 047-362-0888
- FAX:
- 047-362-0889
- 所属団体:
- (一社)千葉県宅地建物取引業協会会員(公社)首都圏不動産公正取引協議会加盟
取引態様:媒介  - 00268939
|
- スマートフォンで
この不動産会社を見る

|
- 提携サイト等より掲載されている物件情報につきましては、不動産会社詳細情報にリンクされていないものがあります。
- 物件に関するお問合せは、物件詳細ページの「情報提供会社」に表示されている不動産会社へ直接お願いいたします。
- 間取図は、現況を優先させていただきます。
- 映像は物件の一部を撮影したものです。物件の契約にあたっての最終判断はご自身の判断に基づいて行ってください。
- 仲介手数料について

アットホームは物件情報の適正化に努めております。
内容に誤りがある場合にはこちらへご連絡ください。