大阪府大阪市中央区久太郎町1丁目(堺筋本町駅)の中古マンション・新築マンション・分譲マンション:物件詳細
交通 所在地 |
駅徒歩 |
価格 |
構造 階建/階 |
間取り 専有面積 |
物件種目 築年月 |
地下鉄中央線/堺筋本町
大阪府大阪市中央区久太郎町1丁目
|
4分
|
30,000万円
|
RC
30階建 / 30階
|
3LDK
112.50m²
|
中古マンション
2025年2月(築1年未満)
|
ペット相談、常時ゴミ出し可能、角部屋、最上階、制震構造、天井高2.5M以上、二重床・二重天井、バス1坪以上、2面採光、24時間換気システム、外観タイル張り、設計住宅性能評価書あり、建設住宅性能評価書あり、管理人日勤
|
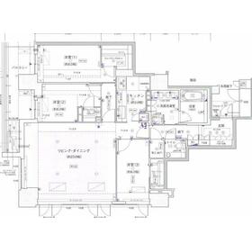
間取図
【間取り】30F南西角住戸!ウォークインクローゼット×3や、大きな物入など収納充実!!
|
外観
【外観】地上30階建て!総戸数159戸の高層タワーマンション!「堺筋本町」駅徒歩約4分の好立地!
|
<
その他の画像
>
|
交通 | 地下鉄中央線 堺筋本町駅 徒歩4分 |
---|
その他の交通 | 地下鉄谷町線 谷町四丁目駅 徒歩9分 地下鉄長堀鶴見緑地線 松屋町駅 徒歩9分 |
所在地 |
大阪府大阪市中央区久太郎町1丁目
|
物件種目 |
中古マンション |
価格 |
30,000万円 |
平米単価 |
266.67万円 |
管理費等 |
32,450円 |
修繕積立金 |
11,250円 |
借地期間・地代(月額) |
- |
権利金 |
- |
敷金または保証金 |
- / - |
維持費等 |
- |
その他一時金 |
なし |
|
|
間取り |
3LDK(LDK27.4、洋8、6、6) |
専有面積 |
112.50m²(壁芯) |
階建 / 階 |
30階建 / 30階 |
バルコニー |
9.77m² |
築年月 |
2025年2月(築1年未満)
|
建物構造 |
RC |
駐車場 |
- |
総戸数 |
159戸 |
駐輪場 |
有 |
バイク置き場 |
有 |
ペット |
相談 |
|
|
土地権利 |
所有権 |
敷地面積 |
- |
管理形態/管理員の勤務形態 |
全部委託/日勤 |
国土法届出 |
- |
アピールポイント |
◇2025年1月竣工・新築未入居
◇徒歩7分圏内にスーパー4軒
☆共用施設―――――
〇プレイロット
〇待機スペース
〇エントランスギャラリー
〇ペット足洗い場
〇ラウンジ9
〇ラウンジ20
お買い物施設―――――
ライフ堺筋本町店まで徒歩約3分
業務スーパー松屋町筋本町橋店まで徒歩約5分
Aプライス久太郎町二丁目店まで徒歩約7分
KOHYO南船場店まで徒歩約6分 |
建物名・部屋番号 |
ジオタワー堺筋本町 30F |
リフォーム履歴 |
- |
リノベーション履歴 |
- |
瑕疵保証 |
- |
瑕疵保険 |
- |
評価・証明書 |
- |
備考 |
主要採光面:南西向き
施工会社:(株)鴻池組 大阪本店
用途地域:商業地域
建築確認番号:ERI-22007260
|
エネルギー消費性能 |
- |
断熱性能 |
- |
目安光熱費 |
- |
バス・トイレ |
ミストサウナ、浴室乾燥機、オートバス、追焚機能、温水洗浄便座、タンクレストイレ |
キッチン |
システムキッチン、独立型キッチン、食器洗浄乾燥機、食器乾燥機、浄水器、ディスポーザー、3口以上コンロ、2口コンロ、グリル |
設備・サービス |
モニター付オートロック、全居室収納、ウォークインクローゼット、床暖房、バイク置き場、収納スペース、室内洗濯機置場、トランクルーム、クローゼット、オートロック、モニター付インターホン、防犯カメラ、防犯用ガラス、二重床、洗濯機置場、給湯、全居室フローリング、アルコーブ、都市ガス、駐輪場、ダウンライト、インターネット対応、マルチメディアコンセント、複層ガラス |
その他 |
宅配BOX、ペット用施設、敷地内AED有、エレベーター2基以上、共用ゲストルーム、エレベーター |
条件等 |
- |
現況 |
空家 |
引渡可能時期 |
相談 |
物件番号 |
1171283309 |
情報公開日 |
2025年9月8日 |
次回更新予定日 |
2025年10月23日 |
ケータイ用バーコード |
- スマートフォンでこの物件を見る
- スマートフォンからもこの物件をご覧になれます。
|
※「-」と表示されている項目については、情報提供会社にご確認ください。
周辺施設 |
ライフ 堺筋本町店 |
距離 |
193m |
写真を見る |
周辺施設 |
セブンイレブン 大阪久太郎町1丁目店 |
距離 |
244m |
写真を見る |
周辺施設 |
ゆうちょ銀行大阪支店船場センタービル3号館内出張所 |
距離 |
450m |
写真を見る |
周辺施設 |
船場センタービル |
距離 |
744m |
写真を見る |
ここから簡単にお問い合わせをすることができます。
(SSLでの暗号化での送信を希望されるお客さまは
こちら
よりお問い合わせください)
お問い合わせを行う前に
「個人情報の取り扱いについて」を必ずお読みください。
「個人情報の取り扱いについて」に同意いただいた場合は「上記にご同意の上 確認画面へ進む」のボタンをクリックしてください。
個人情報の取り扱いについて
皆さまが送付された個人情報はアットホーム(株)のサーバを経由し、お問い合わせ先の不動産会社にメールまたはFAXにて転送されるためアットホーム(株)にも保管されます。アットホーム(株)で保管された個人情報の取り扱いについては、【こちら】をご覧ください。
また、本画面でご記入いただいた個人情報は、お問い合わせ先の不動産会社でも保管します。 お問い合わせ先の不動産会社が保管する個人情報の取り扱いについては、不動産会社に直接お問い合わせください。
国土交通大臣免許(1)第10312号 |
---|
- 交通:
- 地下鉄御堂筋線/本町駅 徒歩3分
- 大阪府大阪市中央区淡路町3丁目6-3 御堂筋MTRビル1階
- TEL:
- 06-6684-9636
- FAX:
- 06-6684-9637
- 所属団体:
- (公社)全日本不動産協会会員(公社)近畿地区不動産公正取引協議会加盟
取引態様:媒介  - 50102588
|
- スマートフォンで
この不動産会社を見る

|
- 提携サイト等より掲載されている物件情報につきましては、不動産会社詳細情報にリンクされていないものがあります。
- 物件に関するお問合せは、物件詳細ページの「情報提供会社」に表示されている不動産会社へ直接お願いいたします。
- 間取図は、現況を優先させていただきます。
- 映像は物件の一部を撮影したものです。物件の契約にあたっての最終判断はご自身の判断に基づいて行ってください。
- 仲介手数料について

アットホームは物件情報の適正化に努めております。
内容に誤りがある場合にはこちらへご連絡ください。