大阪府大阪市北区大淀南2丁目(福島駅)の中古マンション・新築マンション・分譲マンション:物件詳細
交通 所在地 |
駅徒歩 |
価格 |
構造 階建/階 |
間取り 専有面積 |
物件種目 築年月 |
JR大阪環状線/福島
大阪府大阪市北区大淀南2丁目
|
6分
|
15,480万円
|
RC
51階建 / 16階
|
3LDK
71.53m²
|
中古マンション
2019年1月(築6年10ヶ月)
|
ペット相談、常時ゴミ出し可能、南向き、24時間セキュリティー、免震構造、高強度コンクリート、天井高2.5M以上、二重床・二重天井、バス1坪以上、24時間換気システム、バリアフリー、閑静な住宅街、外観タイル張り、設計住宅性能評価書あり、建設住宅性能評価書あり、管理人常駐
|
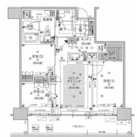
間取図
【間取り】3LDK住戸☆各居室収納あり!!
|
外観
【外観】都市の進化を視界に。街と緑と響き合うタワー邸宅。ひときわ目立つ、新梅田エリアのランドマーク!
|
<
その他の画像
>
|
交通 | JR大阪環状線 福島駅 徒歩6分 |
---|
その他の交通 | JR東海道本線 大阪駅 徒歩12分 阪神本線 福島駅 徒歩8分 |
所在地 |
大阪府大阪市北区大淀南2丁目
|
物件種目 |
中古マンション |
価格 |
15,480万円 |
平米単価 |
216.42万円 |
管理費等 |
15,010円 |
修繕積立金 |
7,150円 |
借地期間・地代(月額) |
- |
権利金 |
- |
敷金または保証金 |
- / - |
維持費等 |
- |
その他一時金 |
なし |
|
|
間取り |
3LDK(LDK10.1、洋7.6、5、5) |
専有面積 |
71.53m²(壁芯) |
階建 / 階 |
51階建 / 16階 |
バルコニー |
15.40m² |
築年月 |
2019年1月(築6年10ヶ月)
|
建物構造 |
RC |
駐車場 |
- |
総戸数 |
297戸 |
駐輪場 |
有 |
バイク置き場 |
有 |
ペット |
相談 |
|
|
土地権利 |
所有権 |
敷地面積 |
- |
管理形態/管理員の勤務形態 |
全部委託/常駐 |
国土法届出 |
- |
アピールポイント |
◇安心の免震構造マンション!
◇約15.40㎡のワイドバルコニー付き◎
◇廊下が短く、動線に無駄のないお部屋です
☆お部屋POINT――――――――
〇リビングダイニング
床暖房付き!南向きで明るい空間!
〇キッチン
ご家族の顔をみながら家事ができるカウンターキッチン!
〇収納
ウォークインクローゼットをはじめ、全居室収納あり
☆共用施設――――――――
〇コンシェルジュ(1階)
〇オーナーズラウンジ(1階)
〇コミュニティサロン(4階)
〇ゲストルーム×2(4階) |
建物名・部屋番号 |
グランドメゾン新梅田タワーTHE CLUB RESIDENCE 16F |
リフォーム履歴 |
- |
リノベーション履歴 |
- |
瑕疵保証 |
- |
瑕疵保険 |
- |
評価・証明書 |
- |
備考 |
主要採光面:南向き
施工会社:(株)竹中工務店
用途地域:商業地域
建築確認番号:GBRC00025
|
エネルギー消費性能 |
- |
断熱性能 |
- |
目安光熱費 |
- |
バス・トイレ |
サウナ、ミストサウナ、浴室乾燥機、オートバス、追焚機能、温水洗浄便座 |
キッチン |
カウンターキッチン、オープンキッチン、システムキッチン、食器洗浄乾燥機、浄水器、ディスポーザー、3口以上コンロ、2口コンロ、グリル |
設備・サービス |
モニター付オートロック、全居室収納、ウォークインクローゼット、太陽光発電システム、EV車充電設備、床暖房、バイク置き場、収納スペース、室内洗濯機置場、クローゼット、オートロック、モニター付インターホン、ディンプルキー、防犯カメラ、二重床、洗濯機置場、給湯、全居室フローリング、アルコーブ、都市ガス、ワイドバルコニー、駐輪場、人感センサー付照明、フットライト、CS、BS端子、複層ガラス |
その他 |
宅配BOX、ペット用施設、エレベーター2基以上、共用ゲストルーム、車寄せスペース、エレベーター |
条件等 |
- |
現況 |
空家 |
引渡可能時期 |
相談 |
物件番号 |
1171511209 |
情報公開日 |
2025年9月3日 |
次回更新予定日 |
2025年10月31日 |
ケータイ用バーコード |
- スマートフォンでこの物件を見る
- スマートフォンからもこの物件をご覧になれます。
|
※「-」と表示されている項目については、情報提供会社にご確認ください。
周辺施設 |
阪急オアシス 大淀南店 |
距離 |
234m |
写真を見る |
周辺施設 |
マミーズアイ保育園おおさかきた分園 |
距離 |
231m |
写真を見る |
周辺施設 |
LUCUa 1100(ルクア イーレ) |
距離 |
1135m |
写真を見る |
ここから簡単にお問い合わせをすることができます。
(SSLでの暗号化での送信を希望されるお客さまは
こちら
よりお問い合わせください)
お問い合わせを行う前に
「個人情報の取り扱いについて」を必ずお読みください。
「個人情報の取り扱いについて」に同意いただいた場合は「上記にご同意の上 確認画面へ進む」のボタンをクリックしてください。
個人情報の取り扱いについて
皆さまが送付された個人情報はアットホーム(株)のサーバを経由し、お問い合わせ先の不動産会社にメールまたはFAXにて転送されるためアットホーム(株)にも保管されます。アットホーム(株)で保管された個人情報の取り扱いについては、【こちら】をご覧ください。
また、本画面でご記入いただいた個人情報は、お問い合わせ先の不動産会社でも保管します。 お問い合わせ先の不動産会社が保管する個人情報の取り扱いについては、不動産会社に直接お問い合わせください。
国土交通大臣免許(1)第10312号 |
---|
- 交通:
- 地下鉄御堂筋線/本町駅 徒歩3分
- 大阪府大阪市中央区淡路町3丁目6-3 御堂筋MTRビル1階
- TEL:
- 06-6684-9636
- FAX:
- 06-6684-9637
- 所属団体:
- (公社)全日本不動産協会会員(公社)近畿地区不動産公正取引協議会加盟
取引態様:媒介  - 50102588
|
- スマートフォンで
この不動産会社を見る

|
- 提携サイト等より掲載されている物件情報につきましては、不動産会社詳細情報にリンクされていないものがあります。
- 物件に関するお問合せは、物件詳細ページの「情報提供会社」に表示されている不動産会社へ直接お願いいたします。
- 間取図は、現況を優先させていただきます。
- 映像は物件の一部を撮影したものです。物件の契約にあたっての最終判断はご自身の判断に基づいて行ってください。
- 仲介手数料について

アットホームは物件情報の適正化に努めております。
内容に誤りがある場合にはこちらへご連絡ください。