大阪府大阪市中央区常盤町2丁目(谷町四丁目駅)の中古マンション・新築マンション・分譲マンション:物件詳細
交通 所在地 |
駅徒歩 |
価格 |
構造 階建/階 |
間取り 専有面積 |
物件種目 築年月 |
地下鉄谷町線/谷町四丁目
大阪府大阪市中央区常盤町2丁目
|
3分
|
9,470万円
|
RC
地上31階地下1階建 / 16階
|
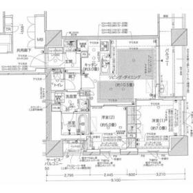
2LDK
60.14m²
|
中古マンション
2024年1月(築1年10ヶ月)
|
ペット相談、常時ゴミ出し可能、角部屋、24時間セキュリティー、制震構造、24時間換気システム、バリアフリー、管理人日勤
|
間取図
【間取り】16F北東角住戸☆眺望・採光・通風の全てが良好◎
|
外観
【外観】洗練されたミニマリズム。モダンで普遍的な美しさを追求した超高層タワーマンション!
|
<
その他の画像
>
|
交通 | 地下鉄谷町線 谷町四丁目駅 徒歩3分 |
---|
その他の交通 | 地下鉄中央線 堺筋本町駅 徒歩7分 地下鉄長堀鶴見緑地線 松屋町駅 徒歩10分 |
所在地 |
大阪府大阪市中央区常盤町2丁目
|
物件種目 |
中古マンション |
価格 |
9,470万円 |
平米単価 |
157.47万円 |
管理費等 |
13,900円 |
修繕積立金 |
9,020円 |
借地期間・地代(月額) |
- |
権利金 |
- |
敷金または保証金 |
- / - |
維持費等 |
- |
その他一時金 |
なし |
|
|
間取り |
2LDK(LDK13.5、洋7、5) |
専有面積 |
60.14m²(壁芯) |
階建 / 階 |
地上31階地下1階建 / 16階 |
バルコニー |
8.71m² |
築年月 |
2024年1月(築1年10ヶ月)
|
建物構造 |
RC |
駐車場 |
- |
総戸数 |
174戸 |
駐輪場 |
有 |
バイク置き場 |
有 |
ペット |
相談 |
|
|
土地権利 |
所有権 |
敷地面積 |
- |
管理形態/管理員の勤務形態 |
全部委託/日勤 |
国土法届出 |
- |
アピールポイント |
◇リビングイン設計の2LDK!
◇ファミリーに人気なカウンターキッチン◎
☆お部屋POINT―――
〇リビングダイニング
約10.5帖!床暖房完備☆
〇キッチン
ディスポーザー・食洗器・浄水器など機能充実!
〇浴室
ミスト機能付浴室暖房乾燥機搭載◎
〇収納
各居室収納あり◎
☆共用施設―――
1階
〇エントランスホール
〇コンシェルジュカウンター
〇ラウンジ
〇ペット足洗い場
〇冷凍冷蔵宅配BOX
3階
〇フィットネスルーム
23階
〇スカイラウンジ
〇ワークスペース
☆周辺施設―――
〇KOHYO内本町店 徒歩約3分
〇古川医院(内科) 徒歩約5分 |
建物名・部屋番号 |
ブランズタワー谷町四丁目 16F |
リフォーム履歴 |
- |
リノベーション履歴 |
- |
瑕疵保証 |
- |
瑕疵保険 |
- |
評価・証明書 |
- |
備考 |
主要採光面:北東向き
施工会社:日本国土開発(株)
用途地域:商業地域
|
エネルギー消費性能 |
- |
断熱性能 |
- |
目安光熱費 |
- |
バス・トイレ |
サウナ、ミストサウナ、浴室乾燥機、オートバス、追焚機能、温水洗浄便座 |
キッチン |
システムキッチン、食器洗浄乾燥機、浄水器、ディスポーザー、3口以上コンロ、グリル |
設備・サービス |
モニター付オートロック、床暖房、バイク置き場、収納スペース、室内洗濯機置場、トランクルーム、クローゼット、オートロック、モニター付インターホン、ディンプルキー、ダブルロックドア、防犯カメラ、洗濯機置場、省エネ給湯器、給湯、全居室フローリング、都市ガス、駐輪場、人感センサー付照明 |
その他 |
宅配BOX、ペット用施設、敷地内AED有、エレベーター2基以上、エレベーター |
条件等 |
- |
現況 |
空家 |
引渡可能時期 |
相談 |
物件番号 |
1171724809 |
情報公開日 |
2025年9月8日 |
次回更新予定日 |
2025年10月23日 |
ケータイ用バーコード |
- スマートフォンでこの物件を見る
- スマートフォンからもこの物件をご覧になれます。
|
※「-」と表示されている項目については、情報提供会社にご確認ください。
ここから簡単にお問い合わせをすることができます。
(SSLでの暗号化での送信を希望されるお客さまは
こちら
よりお問い合わせください)
お問い合わせを行う前に
「個人情報の取り扱いについて」を必ずお読みください。
「個人情報の取り扱いについて」に同意いただいた場合は「上記にご同意の上 確認画面へ進む」のボタンをクリックしてください。
個人情報の取り扱いについて
皆さまが送付された個人情報はアットホーム(株)のサーバを経由し、お問い合わせ先の不動産会社にメールまたはFAXにて転送されるためアットホーム(株)にも保管されます。アットホーム(株)で保管された個人情報の取り扱いについては、【こちら】をご覧ください。
また、本画面でご記入いただいた個人情報は、お問い合わせ先の不動産会社でも保管します。 お問い合わせ先の不動産会社が保管する個人情報の取り扱いについては、不動産会社に直接お問い合わせください。
国土交通大臣免許(1)第10312号 |
---|
- 交通:
- 地下鉄御堂筋線/本町駅 徒歩3分
- 大阪府大阪市中央区淡路町3丁目6-3 御堂筋MTRビル1階
- TEL:
- 06-6684-9636
- FAX:
- 06-6684-9637
- 所属団体:
- (公社)全日本不動産協会会員(公社)近畿地区不動産公正取引協議会加盟
取引態様:媒介  - 50102588
|
- スマートフォンで
この不動産会社を見る

|
- 提携サイト等より掲載されている物件情報につきましては、不動産会社詳細情報にリンクされていないものがあります。
- 物件に関するお問合せは、物件詳細ページの「情報提供会社」に表示されている不動産会社へ直接お願いいたします。
- 間取図は、現況を優先させていただきます。
- 映像は物件の一部を撮影したものです。物件の契約にあたっての最終判断はご自身の判断に基づいて行ってください。
- 仲介手数料について

アットホームは物件情報の適正化に努めております。
内容に誤りがある場合にはこちらへご連絡ください。