埼玉県坂戸市元町(坂戸駅)の中古マンション・新築マンション・分譲マンション:物件詳細
交通 所在地 |
駅徒歩 |
価格 |
構造 階建/階 |
間取り 専有面積 |
物件種目 築年月 |
|
東武東上線/坂戸
埼玉県坂戸市元町
|
11分
|
2,790万円
|
RC
10階建 / 5階
|
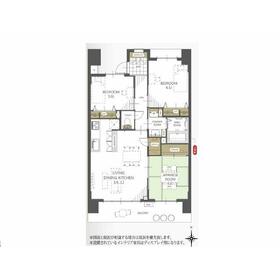
3LDK
70.52m²
|
中古マンション
2007年11月(築18年2ヶ月)
|
|
ペット相談、南向き、管理人日勤
|
|
間取図
3LDK
|
外観
2沿線利用可能で通勤・通学に便利です
|
<
その他の画像
>
|
| 交通 | 東武東上線 坂戸駅 徒歩11分 |
|---|
| その他の交通 | 東武東上線 北坂戸駅 徒歩14分 東武東上線 若葉駅 徒歩29分 |
| 所在地 |
埼玉県坂戸市元町
|
| 物件種目 |
中古マンション |
| 価格 |
2,790万円 |
平米単価 |
39.57万円 |
| 管理費等 |
11,000円 |
修繕積立金 |
10,365円 |
| 借地期間・地代(月額) |
- |
権利金 |
- |
| 敷金または保証金 |
- / - |
維持費等 |
- |
| その他一時金 |
なし |
|
|
| 間取り |
3LDK(LDK14.1、和6、洋5、6.5) |
専有面積 |
70.52m²(壁芯) |
| 階建 / 階 |
10階建 / 5階 |
バルコニー |
14.30m² |
| 築年月 |
2007年11月(築18年2ヶ月)
|
建物構造 |
RC |
| 駐車場 |
空無 |
総戸数 |
88戸 |
| 駐輪場 |
有 |
バイク置き場 |
- |
| ペット |
相談 |
|
|
| 土地権利 |
所有権 |
敷地面積 |
- |
| 管理形態/管理員の勤務形態 |
全部委託/日勤 |
国土法届出 |
- |
| アピールポイント |
当社より本物件ご購入のお客様は仲介手数料半額にてご紹介致します。
おすすめポイント満載!快適×安心が揃う理想の住まい
安心・快適に暮らしたい方へ、魅力がたっぷり詰まったお部屋のご紹介です!
安心のセキュリティ
来訪者をしっかり確認できるTVインターホンやオートロックを完備。
初めての一人暮らしや女性の方にも心強いセキュリティが整っています。
おしゃれで使いやすいシステムキッチン
デザイン性の高いシステムキッチンを採用。
毎日の料理がもっと楽しく、キッチンに立つ時間も気分が上がります♪
陽当たり良好の南向き
人気の南向きで明るく心地よい日差しが差し込みます。
10階建ての建物で、開放感ある眺望も魅力です。
鍵付き宅配ボックス完備
忙しい毎日でも安心して荷物を受け取れる、鍵付き宅配ボックスをご用意。
置き配よりも安全性が高く、留守中の荷物も安心です。
快適なバスタイムを叶える追焚機能
浴室には追焚機能を搭載。
いつでもお好きなタイミングで、ちょうどいい温度のバスタイムを楽しめます。
暮らしやすさも安心も妥協したくない方へ
細部までこだわりが詰まった、魅力あふれる住まいで新生 |
| 建物名・部屋番号 |
エコヴィレッジ坂戸 |
| リフォーム履歴 |
■水回り:2025年10月 キッチン、浴室、トイレ ■内装:2025年10月 床(フローリング等)、壁・天井(クロス・塗装等) システムキッチン ユニットバス 洗面化粧台 トイレ クロス貼替 床材 畳表替・襖張替 ハウスクリーニング 等 ■その他:2025年10月 内装(キッチン 浴室 トイレ 壁 床 全室 システムキッチン ユニットバス 洗面化粧台 トイレ クロス貼替 床材 畳表替・襖張替 ハウスクリーニング 等) ※実施年月は最も古い履歴を表示 |
| リノベーション履歴 |
- |
| 瑕疵保証 |
- |
| 瑕疵保険 |
- |
| 評価・証明書 |
- |
| 備考 |
主要採光面:南向き
施工会社:(株)(株)加賀田組
用途地域:近隣商業
エレベーター ペット可(細則有) 2沿線利用可能 オートロック 宅配ロッカー
内装リフォーム(2025.10) システムキッチン ユニットバス 洗面化粧台 トイレ クロス貼替 床材 畳表替・襖張替 ハウスクリーニング 等
|
| エネルギー消費性能 |
- |
| 断熱性能 |
- |
| 目安光熱費 |
- |
| バス・トイレ |
浴室乾燥機、追焚機能、温水洗浄便座 |
| キッチン |
システムキッチン、3口以上コンロ |
| 設備・サービス |
モニター付オートロック、全居室収納、収納スペース、室内洗濯機置場、クローゼット、オートロック、モニター付インターホン、洗濯機置場、都市ガス、駐輪場 |
| その他 |
宅配BOX、エレベーター |
| 条件等 |
- |
現況 |
空家 |
| 引渡可能時期 |
即時 |
物件番号 |
1171972709 |
| 情報公開日 |
2025年11月28日 |
次回更新予定日 |
2025年12月27日 |
| ケータイ用バーコード |
- スマートフォンでこの物件を見る
- スマートフォンからもこの物件をご覧になれます。
|
※「-」と表示されている項目については、情報提供会社にご確認ください。
| 周辺施設 |
坂戸市立坂戸小学校 |
| 距離 |
290m |
写真を見る |
| 周辺施設 |
坂戸市立坂戸中学校 |
| 距離 |
1400m |
写真を見る |
| 周辺施設 |
ローソン 坂戸仲町店 |
| 距離 |
306m |
写真を見る |
| 周辺施設 |
業務スーパー 坂戸店 |
| 距離 |
533m |
写真を見る |
| 周辺施設 |
やまだクリニック |
| 距離 |
562m |
写真を見る |
| 周辺施設 |
小林内科医院 |
| 距離 |
726m |
写真を見る |
| 周辺施設 |
東和銀行坂戸支店 |
| 距離 |
634m |
写真を見る |
| 周辺施設 |
坂戸仲町郵便局 |
| 距離 |
276m |
写真を見る |
ここから簡単にお問い合わせをすることができます。
(SSLでの暗号化での送信を希望されるお客さまは
こちら
よりお問い合わせください)
お問い合わせを行う前に
「個人情報の取り扱いについて」を必ずお読みください。
「個人情報の取り扱いについて」に同意いただいた場合は「上記にご同意の上 確認画面へ進む」のボタンをクリックしてください。
個人情報の取り扱いについて
皆さまが送付された個人情報はアットホーム(株)のサーバを経由し、お問い合わせ先の不動産会社にメールまたはFAXにて転送されるためアットホーム(株)にも保管されます。アットホーム(株)で保管された個人情報の取り扱いについては、【こちら】をご覧ください。
また、本画面でご記入いただいた個人情報は、お問い合わせ先の不動産会社でも保管します。 お問い合わせ先の不動産会社が保管する個人情報の取り扱いについては、不動産会社に直接お問い合わせください。
埼玉県知事免許(3)第22166号 |
|---|
- 交通:
- 東武東上線/上福岡駅 徒歩5分
- 埼玉県ふじみ野市上福岡1丁目15-7
- TEL:
- 049-256-7142
- FAX:
- 049-256-7143
- 所属団体:
- (公社)全日本不動産協会会員(公社)首都圏不動産公正取引協議会加盟
取引態様:媒介  - 00980743
|
- スマートフォンで
この不動産会社を見る

|
- 提携サイト等より掲載されている物件情報につきましては、不動産会社詳細情報にリンクされていないものがあります。
- 物件に関するお問合せは、物件詳細ページの「情報提供会社」に表示されている不動産会社へ直接お願いいたします。
- 間取図は、現況を優先させていただきます。
- 映像は物件の一部を撮影したものです。物件の契約にあたっての最終判断はご自身の判断に基づいて行ってください。
- 仲介手数料について

アットホームは物件情報の適正化に努めております。
内容に誤りがある場合にはこちらへご連絡ください。