熊本県八代市塩屋町(八代駅)の中古マンション・新築マンション・分譲マンション:物件詳細
交通 所在地 |
駅徒歩 |
価格 |
構造 階建/階 |
間取り 専有面積 |
物件種目 築年月 |
|
JR鹿児島本線/八代
熊本県八代市塩屋町
|
34分
|
2,990万円
|
RC
10階建 / 9階
|
3LDK
78.48m²
|
中古マンション
2024年1月(築1年10ヶ月)
|
|
ペット相談、角部屋、南向き、管理人日勤
|
|
間取図
|
外観
|
<
その他の画像
>
|
| 交通 | JR鹿児島本線 八代駅 徒歩34分 |
|---|
| その他の交通 | JR鹿児島本線 新八代駅 徒歩58分 肥薩おれんじ鉄道 肥後高田駅 徒歩59分 |
| 所在地 |
熊本県八代市塩屋町
|
| 物件種目 |
中古マンション |
| 価格 |
2,990万円 |
平米単価 |
38.10万円 |
| 管理費等 |
11,800円 |
修繕積立金 |
5,200円 |
| 借地期間・地代(月額) |
- |
権利金 |
- |
| 敷金または保証金 |
- / - |
維持費等 |
- |
| その他一時金 |
なし |
|
|
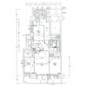
| 間取り |
3LDK(LDK14.6、洋6、6、5) |
専有面積 |
78.48m²(壁芯) |
| 階建 / 階 |
10階建 / 9階 |
バルコニー |
15.94m² |
| 築年月 |
2024年1月(築1年10ヶ月)
|
建物構造 |
RC |
| 駐車場 |
- |
総戸数 |
- |
| 駐輪場 |
- |
バイク置き場 |
- |
| ペット |
相談 |
|
|
| 土地権利 |
所有権 |
敷地面積 |
- |
| 管理形態/管理員の勤務形態 |
全部委託/日勤 |
国土法届出 |
- |
| アピールポイント |
築浅マンションの1室が売りに出ました!!
各部屋の収納も広い間取りで、居住スペースを広々使えます♪
お買い物にも行きやすい立地ですので、お休みの日に出かける際にも車で5分圏内で行くことができます!
9階のお部屋なので、眺望もよく休日に外の景色を見ながら過ごすのも憧れるシチュエーションですね♪
是非、現地をご確認ください! |
| 建物名・部屋番号 |
アルファスマート松江城 901号 |
| リフォーム履歴 |
- |
| リノベーション履歴 |
- |
| 瑕疵保証 |
- |
| 瑕疵保険 |
- |
| 評価・証明書 |
- |
| 備考 |
主要採光面:南向き
施工会社:大末建設(株)
用途地域:近隣商業
|
| エネルギー消費性能 |
- |
| 断熱性能 |
- |
| 目安光熱費 |
- |
| バス・トイレ |
温水洗浄便座 |
| キッチン |
カウンターキッチン、システムキッチン、食器洗浄乾燥機 |
| 設備・サービス |
ウォークインクローゼット、収納スペース、室内洗濯機置場、クローゼット、オートロック、洗濯機置場、給湯、全居室フローリング |
| その他 |
エレベーター |
| 条件等 |
- |
現況 |
空家 |
| 引渡可能時期 |
相談 |
物件番号 |
1172171709 |
| 情報公開日 |
2025年9月18日 |
次回更新予定日 |
2025年11月2日 |
| ケータイ用バーコード |
- スマートフォンでこの物件を見る
- スマートフォンからもこの物件をご覧になれます。
|
※「-」と表示されている項目については、情報提供会社にご確認ください。
| 周辺施設 |
保育所型認定こども園八代ひかり保育園 |
| 距離 |
256m |
写真を見る |
| 周辺施設 |
ひかり夜間保育園 |
| 距離 |
300m |
写真を見る |
| 周辺施設 |
八代市立八代小学校 |
| 距離 |
266m |
写真を見る |
| 周辺施設 |
ガスト八代松江店 |
| 距離 |
549m |
写真を見る |
| 周辺施設 |
マックスバリュ 八代店 |
| 距離 |
886m |
写真を見る |
| 周辺施設 |
ダイレックス 八代松江店 |
| 距離 |
502m |
写真を見る |
| 周辺施設 |
ゆめタウン |
| 距離 |
1119m |
写真を見る |
ここから簡単にお問い合わせをすることができます。
(SSLでの暗号化での送信を希望されるお客さまは
こちら
よりお問い合わせください)
お問い合わせを行う前に
「個人情報の取り扱いについて」を必ずお読みください。
「個人情報の取り扱いについて」に同意いただいた場合は「上記にご同意の上 確認画面へ進む」のボタンをクリックしてください。
個人情報の取り扱いについて
皆さまが送付された個人情報はアットホーム(株)のサーバを経由し、お問い合わせ先の不動産会社にメールまたはFAXにて転送されるためアットホーム(株)にも保管されます。アットホーム(株)で保管された個人情報の取り扱いについては、【こちら】をご覧ください。
また、本画面でご記入いただいた個人情報は、お問い合わせ先の不動産会社でも保管します。 お問い合わせ先の不動産会社が保管する個人情報の取り扱いについては、不動産会社に直接お問い合わせください。
熊本県知事免許(11)第2303号 |
|---|
- 交通:
- JR鹿児島本線/八代駅
- 熊本県八代市松江町536
- TEL:
- 0965-35-4097
- FAX:
- 0965-35-4127
- 所属団体:
- (公社)熊本県宅地建物取引業協会会員(一社)九州不動産公正取引協議会加盟
取引態様:一般媒介  - 80506131
|
- スマートフォンで
この不動産会社を見る

|
- 提携サイト等より掲載されている物件情報につきましては、不動産会社詳細情報にリンクされていないものがあります。
- 物件に関するお問合せは、物件詳細ページの「情報提供会社」に表示されている不動産会社へ直接お願いいたします。
- 間取図は、現況を優先させていただきます。
- 映像は物件の一部を撮影したものです。物件の契約にあたっての最終判断はご自身の判断に基づいて行ってください。
- 仲介手数料について

アットホームは物件情報の適正化に努めております。
内容に誤りがある場合にはこちらへご連絡ください。