東京都江東区東砂3丁目(東大島駅)の中古マンション・新築マンション・分譲マンション:物件詳細
交通 所在地 |
駅徒歩 |
価格 |
構造 階建/階 |
間取り 専有面積 |
物件種目 築年月 |
|
都営新宿線/東大島
東京都江東区東砂3丁目
|
15分
|
5,680万円
|
SRC
11階建 / 9階
|
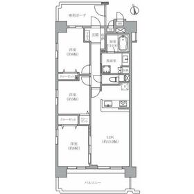
3LDK
70.80m²
|
中古マンション
1999年2月(築27年1ヶ月)
|
|
角部屋、南向き、24時間換気システム、外観タイル張り、管理人日勤
|
| 交通 | 都営新宿線 東大島駅 徒歩15分 |
|---|
| その他の交通 | 東京メトロ東西線 南砂町駅 徒歩28分 都営新宿線 大島駅 徒歩26分 |
| 所在地 |
東京都江東区東砂3丁目
|
| 物件種目 |
中古マンション |
| 価格 |
5,680万円 |
平米単価 |
80.23万円 |
| 管理費等 |
14,500円 |
修繕積立金 |
9,270円 |
| 借地期間・地代(月額) |
- |
権利金 |
- |
| 敷金または保証金 |
- / - |
維持費等 |
- |
| その他一時金 |
なし |
|
|
| 間取り |
3LDK(LDK13、洋6、6、5) |
専有面積 |
70.80m²(壁芯) |
| 階建 / 階 |
11階建 / 9階 |
バルコニー |
11.91m² |
| 築年月 |
1999年2月(築27年1ヶ月)
|
建物構造 |
SRC |
| 駐車場 |
有 25,000円/月 |
総戸数 |
39戸 |
| 駐輪場 |
有 5,000円/月 |
バイク置き場 |
- |
| ペット |
-
|
|
|
| 土地権利 |
所有権 |
敷地面積 |
- |
| 管理形態/管理員の勤務形態 |
全部委託/日勤 |
国土法届出 |
- |
| 建物名・部屋番号 |
ライオンズマンション東大島第2 |
| リフォーム履歴 |
■水回り:2026年2月 キッチン、浴室、トイレ ■内装:2026年2月 床(フローリング等)、壁・天井(クロス・塗装等) ■その他:2026年2月 内装(キッチン 浴室 トイレ 壁 床 ) ※実施年月は最も古い履歴を表示 |
| リノベーション履歴 |
- |
| 瑕疵保証 |
- |
| 瑕疵保険 |
- |
| 評価・証明書 |
- |
| 備考 |
主要採光面:南向き
用途地域:準工業
新耐震基準マンション!オートロック・防犯カメラあり
お電話頂けると、お話が早く進みます。中古マンション一戸建て土地等の都内売買物件情報をお客様のご希望が叶うよう心を込めてご紹介しております
|
| エネルギー消費性能 |
- |
| 断熱性能 |
- |
| 目安光熱費 |
- |
| バス・トイレ |
浴室乾燥機、追焚機能、温水洗浄便座 |
| キッチン |
カウンターキッチン、システムキッチン、食器洗浄乾燥機、3口以上コンロ |
| 設備・サービス |
モニター付オートロック、全居室収納、収納スペース、室内洗濯機置場、トランクルーム、クローゼット、オートロック、モニター付インターホン、防犯カメラ、洗濯機置場、出窓、全居室フローリング、都市ガス、エアコン、ワイドバルコニー、駐輪場、人感センサー付照明、ダウンライト、間接照明、照明器具、インターネット対応、光ファイバー |
| その他 |
エレベーター |
| 条件等 |
- |
現況 |
空家 |
| 引渡可能時期 |
相談 |
物件番号 |
1189468519 |
| 情報公開日 |
2026年1月26日 |
次回更新予定日 |
2026年2月23日 |
| ケータイ用バーコード |
- スマートフォンでこの物件を見る
- スマートフォンからもこの物件をご覧になれます。
|
※「-」と表示されている項目については、情報提供会社にご確認ください。
ここから簡単にお問い合わせをすることができます。
(SSLでの暗号化での送信を希望されるお客さまは
こちら
よりお問い合わせください)
お問い合わせを行う前に
「個人情報の取り扱いについて」を必ずお読みください。
「個人情報の取り扱いについて」に同意いただいた場合は「上記にご同意の上 確認画面へ進む」のボタンをクリックしてください。
個人情報の取り扱いについて
皆さまが送付された個人情報はアットホーム(株)のサーバを経由し、お問い合わせ先の不動産会社にメールまたはFAXにて転送されるためアットホーム(株)にも保管されます。アットホーム(株)で保管された個人情報の取り扱いについては、【こちら】をご覧ください。
また、本画面でご記入いただいた個人情報は、お問い合わせ先の不動産会社でも保管します。 お問い合わせ先の不動産会社が保管する個人情報の取り扱いについては、不動産会社に直接お問い合わせください。
東京都知事免許(9)第54460号 |
|---|
- 交通:
- 都営三田線/白山駅 徒歩1分
- 東京都文京区白山1丁目33-18 白山NTビル2F
- TEL:
- 03-6865-1151
- FAX:
- 03-6865-1152
- 所属団体:
- (公社)全日本不動産協会会員(公社)首都圏不動産公正取引協議会加盟
取引態様:媒介  - 00260876
|
- スマートフォンで
この不動産会社を見る

|
- 提携サイト等より掲載されている物件情報につきましては、不動産会社詳細情報にリンクされていないものがあります。
- 物件に関するお問合せは、物件詳細ページの「情報提供会社」に表示されている不動産会社へ直接お願いいたします。
- 間取図は、現況を優先させていただきます。
- 映像は物件の一部を撮影したものです。物件の契約にあたっての最終判断はご自身の判断に基づいて行ってください。
- 仲介手数料について

アットホームは物件情報の適正化に努めております。
内容に誤りがある場合にはこちらへご連絡ください。