埼玉県志木市柏町1丁目(柳瀬川駅)の中古マンション・新築マンション・分譲マンション:物件詳細
交通 所在地 |
駅徒歩 |
価格 |
構造 階建/階 |
間取り 専有面積 |
物件種目 築年月 |
|
東武東上線/柳瀬川
埼玉県志木市柏町1丁目
|
21分
|
3,780万円
|
RC
11階建 / 3階
|
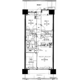
3LDK
70.74m²
|
中古マンション
2013年2月(築13年4ヶ月)
|
|
ペット相談、管理人日勤
|
|
間取図
|
外観
◆室内リフォーム中です! ◆ペット飼育可能(細則有)大切なペットと暮らせるお部屋♪
|
<
その他の画像
>
|
| 交通 | 東武東上線 柳瀬川駅 徒歩21分 |
|---|
| その他の交通 | 東武東上線 志木駅 徒歩21分 [バス利用可] バス 5分 市場坂上 停歩3分 JR武蔵野線 北朝霞駅 徒歩37分 |
| 所在地 |
埼玉県志木市柏町1丁目
|
| 物件種目 |
中古マンション |
| 価格 |
3,780万円 |
平米単価 |
53.44万円 |
| 管理費等 |
11,000円 |
修繕積立金 |
7,390円 |
| 借地期間・地代(月額) |
- |
権利金 |
- |
| 敷金または保証金 |
- / - |
維持費等 |
インターネット使用料:1,100円/月、給湯器リース料:2,090円/月 |
| その他一時金 |
なし |
|
|
| 間取り |
3LDK |
専有面積 |
70.74m²(壁芯) |
| 階建 / 階 |
11階建 / 3階 |
バルコニー |
12.00m² |
| 築年月 |
2013年2月(築13年4ヶ月)
|
建物構造 |
RC |
| 駐車場 |
- |
総戸数 |
257戸 |
| 駐輪場 |
- |
バイク置き場 |
- |
| ペット |
相談 |
|
|
| 土地権利 |
所有権 |
敷地面積 |
- |
| 管理形態/管理員の勤務形態 |
全部委託/日勤 |
国土法届出 |
- |
| アピールポイント |
【物件のおすすめポイント】
◆室内リフォーム(2026年4月末完了)!
◆オートロック・宅配ボックス完備!
◆ペット飼育可(細則有)!
◆総戸数257戸の大規模マンション!
~LIXIL不動産ショップMK不動産~
◆契約件数の実績が多いから値引き交渉が得意
◆お引渡し後も末永くお付き合いください
◆リクシル不動産ショップならではのリフォーム工事も行っていますので、購入時に伴うオプション工事もお安くご提供可能です♪(網戸、カーテンレール、フロアコーティング、エアコン等) その他、引越し時の不用品の回収などなんでもお任せください! |
| 建物名・部屋番号 |
志木の杜テラス 中古マンション |
| リフォーム履歴 |
■水回り:2026年4月 キッチン、浴室、トイレ ■その他:2026年4月 内装(キッチン 浴室 トイレ ) ※実施年月は最も古い履歴を表示 |
| リノベーション履歴 |
2026年4月 キッチン/浴室/トイレ等 ※実施年月は最も古い履歴を表示 |
| 瑕疵保証 |
- |
| 瑕疵保険 |
- |
| 評価・証明書 |
- |
| 備考 |
主要採光面:南東向き
施工会社:(株)長谷工コーポレーション
用途地域:準工業
|
| エネルギー消費性能 |
- |
| 断熱性能 |
- |
| 目安光熱費 |
- |
| バス・トイレ |
浴室乾燥機、追焚機能 |
| キッチン |
カウンターキッチン、システムキッチン |
| 設備・サービス |
ウォークインクローゼット、収納スペース、室内洗濯機置場、クローゼット、オートロック、洗濯機置場、全居室フローリング、都市ガス |
| その他 |
宅配BOX、エレベーター |
| 条件等 |
- |
現況 |
空家 |
| 引渡可能時期 |
相談 |
物件番号 |
1190278115 |
| 情報公開日 |
2026年3月2日 |
次回更新予定日 |
2026年5月31日 |
| ケータイ用バーコード |
- スマートフォンでこの物件を見る
- スマートフォンからもこの物件をご覧になれます。
|
※「-」と表示されている項目については、情報提供会社にご確認ください。
| 周辺施設 |
館第4児童公園 |
| 距離 |
1829m |
写真を見る |
| 周辺施設 |
マルイファミリー志木 |
| 距離 |
2533m |
写真を見る |
| 周辺施設 |
いなげや 志木柏町店 |
| 距離 |
280m |
写真を見る |
| 周辺施設 |
ビバホーム 志木店 |
| 距離 |
433m |
写真を見る |
| 周辺施設 |
しまむら 上宗岡店 |
| 距離 |
1834m |
写真を見る |
ここから簡単にお問い合わせをすることができます。
(SSLでの暗号化での送信を希望されるお客さまは
こちら
よりお問い合わせください)
お問い合わせを行う前に
「個人情報の取り扱いについて」を必ずお読みください。
「個人情報の取り扱いについて」に同意いただいた場合は「上記にご同意の上 確認画面へ進む」のボタンをクリックしてください。
個人情報の取り扱いについて
皆さまが送付された個人情報はアットホーム(株)のサーバを経由し、お問い合わせ先の不動産会社にメールまたはFAXにて転送されるためアットホーム(株)にも保管されます。アットホーム(株)で保管された個人情報の取り扱いについては、【こちら】をご覧ください。
また、本画面でご記入いただいた個人情報は、お問い合わせ先の不動産会社でも保管します。 お問い合わせ先の不動産会社が保管する個人情報の取り扱いについては、不動産会社に直接お問い合わせください。
埼玉県知事免許(1)第024741号 |
|---|
- 交通:
- 東武東上線/志木駅 徒歩3分
- 埼玉県志木市本町5丁目18-22 エルシティミカミ202
- TEL:
- 048-475-8328
- FAX:
- 048-475-8329
- 所属団体:
- (公社)埼玉県宅地建物取引業協会会員
取引態様:売主  - 00986280
|
- スマートフォンで
この不動産会社を見る

|
- 提携サイト等より掲載されている物件情報につきましては、不動産会社詳細情報にリンクされていないものがあります。
- 物件に関するお問合せは、物件詳細ページの「情報提供会社」に表示されている不動産会社へ直接お願いいたします。
- 間取図は、現況を優先させていただきます。
- 映像は物件の一部を撮影したものです。物件の契約にあたっての最終判断はご自身の判断に基づいて行ってください。
- 仲介手数料について

アットホームは物件情報の適正化に努めております。
内容に誤りがある場合にはこちらへご連絡ください。