千葉県印西市武西学園台1丁目(千葉ニュータウン中央駅)の中古マンション・新築マンション・分譲マンション:物件詳細
交通 所在地 |
駅徒歩 |
価格 |
構造 階建/階 |
間取り 専有面積 |
物件種目 築年月 |
|
北総線/千葉ニュータウン中央
千葉県印西市武西学園台1丁目
|
7分
|
4,080万円
|
RC
14階建 / 11階
|
3LDK
76.29m²
|
中古マンション
2015年12月(築10年4ヶ月)
|
|
ペット相談、管理人日勤
|
|
≪オープンルーム/モデルルーム≫【開催期間】2026年3月7日~3月8日 【時間】10:00~18:00 事前に必ず予約してください
|
|
間取図
|
外観
|
<
その他の画像
>
|
| 交通 | 北総線 千葉ニュータウン中央駅 徒歩7分 |
|---|
| その他の交通 | 北総線 小室駅 徒歩51分 北総線 印西牧の原駅 徒歩72分 |
| 所在地 |
千葉県印西市武西学園台1丁目
|
| 物件種目 |
中古マンション |
| 価格 |
4,080万円 |
平米単価 |
53.49万円 |
| 管理費等 |
14,062円 |
修繕積立金 |
9,700円 |
| 借地期間・地代(月額) |
- |
権利金 |
- |
| 敷金または保証金 |
- / - |
維持費等 |
- |
| その他一時金 |
なし |
|
|
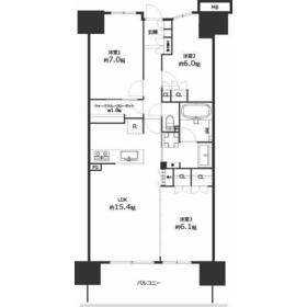
| 間取り |
3LDK(LDK15.4、洋7、6.1、6) |
専有面積 |
76.29m²(壁芯) |
| 階建 / 階 |
14階建 / 11階 |
バルコニー |
12.40m² |
| 築年月 |
2015年12月(築10年4ヶ月)
|
建物構造 |
RC |
| 駐車場 |
- |
総戸数 |
468戸 |
| 駐輪場 |
有 |
バイク置き場 |
有 |
| ペット |
相談 |
|
|
| 土地権利 |
所有権 |
敷地面積 |
- |
| 管理形態/管理員の勤務形態 |
全部委託/日勤 |
国土法届出 |
- |
| アピールポイント |
TERASSがおススメする住宅ローン
【 auじぶん銀行 】変動金利 0.584%(諸条件適用の場合)
・がん100%保障団信が【金利上乗せなし】で加入可能!
・頭金0円でも可能!
・諸費用も、物件価格の10%までは融資可能!
※2026年3月現在
■管理体制良好な大規模マンション
■駅近×徒歩圏内に利便施設が揃う暮らしやすい住環境
■LDKと洋室の一体利用が可能な間取り
■全居室収納付き◎廊下と洋室から出入りできるWTCは約1.8帖
■ディスポーザー搭載の対面式キッチン
【リフォーム内容】
○新規交換:キッチン/防水パン/トイレ
○フローリング新規○クロス張替
○シーリングライト取付他 |
| 建物名・部屋番号 |
ガーデンゲート千葉ニュータウン中央EAST |
| リフォーム履歴 |
■水回り:2025年11月 キッチン、トイレ ■内装:2025年11月 床(フローリング等)、壁・天井(クロス・塗装等) ハウスクリーニング他 ■その他:2025年11月 内装(キッチン トイレ 壁 床 ハウスクリーニング他) ※実施年月は最も古い履歴を表示 |
| リノベーション履歴 |
- |
| 瑕疵保証 |
- |
| 瑕疵保険 |
- |
| 評価・証明書 |
- |
| 備考 |
主要採光面:東向き
法令等制限:■駐車場:月額200円~4000円/空有■駐輪場:年額1800円/空有■
用途地域:1種中高
■駐車場:月額200円~4000円/空有■駐輪場:年額1800円/空有■バイク置き場:月額1500円/空有■ペット飼育可※1戸2頭まで。体高が概ね40センチ以内■エアコン:全部屋設置可(隠蔽配管なし)
|
| エネルギー消費性能 |
- |
| 断熱性能 |
- |
| 目安光熱費 |
- |
| バス・トイレ |
浴室乾燥機、温水洗浄便座 |
| キッチン |
カウンターキッチン、システムキッチン、浄水器、ディスポーザー |
| 設備・サービス |
モニター付オートロック、全居室収納、ウォークインクローゼット、バイク置き場、収納スペース、クローゼット、オートロック、モニター付インターホン、駐輪場、照明器具 |
| その他 |
宅配BOX、エレベーター |
| 条件等 |
- |
現況 |
空家 |
| 引渡可能時期 |
相談 |
物件番号 |
1190315119 |
| 情報公開日 |
2026年2月12日 |
次回更新予定日 |
2026年3月17日 |
| ケータイ用バーコード |
- スマートフォンでこの物件を見る
- スマートフォンからもこの物件をご覧になれます。
|
※「-」と表示されている項目については、情報提供会社にご確認ください。
ここから簡単にお問い合わせをすることができます。
(SSLでの暗号化での送信を希望されるお客さまは
こちら
よりお問い合わせください)
お問い合わせを行う前に
「個人情報の取り扱いについて」を必ずお読みください。
「個人情報の取り扱いについて」に同意いただいた場合は「上記にご同意の上 確認画面へ進む」のボタンをクリックしてください。
個人情報の取り扱いについて
皆さまが送付された個人情報はアットホーム(株)のサーバを経由し、お問い合わせ先の不動産会社にメールまたはFAXにて転送されるためアットホーム(株)にも保管されます。アットホーム(株)で保管された個人情報の取り扱いについては、【こちら】をご覧ください。
また、本画面でご記入いただいた個人情報は、お問い合わせ先の不動産会社でも保管します。 お問い合わせ先の不動産会社が保管する個人情報の取り扱いについては、不動産会社に直接お問い合わせください。
国土交通大臣免許(1)第10125号 |
|---|
- 交通:
- 東京メトロ日比谷線/虎ノ門ヒルズ駅 徒歩3分
- 東京都港区虎ノ門2丁目2-1 住友不動産虎ノ門タワー13階
- TEL:
- 050-3144-9765
- FAX:
- 03-6369-3864
- 所属団体:
- (公社)東京都宅地建物取引業協会会員(公社)首都圏不動産公正取引協議会加盟
取引態様:媒介  - 00786420
|
- スマートフォンで
この不動産会社を見る

|
- 提携サイト等より掲載されている物件情報につきましては、不動産会社詳細情報にリンクされていないものがあります。
- 物件に関するお問合せは、物件詳細ページの「情報提供会社」に表示されている不動産会社へ直接お願いいたします。
- 間取図は、現況を優先させていただきます。
- 映像は物件の一部を撮影したものです。物件の契約にあたっての最終判断はご自身の判断に基づいて行ってください。
- 仲介手数料について

アットホームは物件情報の適正化に努めております。
内容に誤りがある場合にはこちらへご連絡ください。