東京都江東区東陽3丁目(東陽町駅)の中古マンション・新築マンション・分譲マンション:物件詳細
交通 所在地 |
駅徒歩 |
価格 |
構造 階建/階 |
間取り 専有面積 |
物件種目 築年月 |
|
東京メトロ東西線/東陽町
東京都江東区東陽3丁目
|
4分
|
4,499万円
|
SRC
14階建 / 8階
|
3LDK
55.38m²
|
中古マンション
1973年12月(築52年4ヶ月)
|
|
ペット相談、角部屋、管理人日勤
|
|
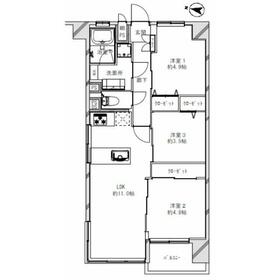
間取図
8階部分・角部屋住戸につきまして日当り・通風・眺望良好。新規リノベーションマンション。
|
外観
外観。ペットの飼育可能マンションです。
|
<
その他の画像
>
|
| 交通 | 東京メトロ東西線 東陽町駅 徒歩4分 |
|---|
| その他の交通 | JR京葉線 潮見駅 徒歩28分 東京メトロ半蔵門線 清澄白河駅 徒歩29分 |
| 所在地 |
東京都江東区東陽3丁目
|
| 物件種目 |
中古マンション |
| 価格 |
4,499万円 |
平米単価 |
81.24万円 |
| 管理費等 |
11,300円 |
修繕積立金 |
11,000円 |
| 借地期間・地代(月額) |
- |
権利金 |
- |
| 敷金または保証金 |
- / - |
維持費等 |
- |
| その他一時金 |
なし |
|
|
| 間取り |
3LDK |
専有面積 |
55.38m²(壁芯) |
| 階建 / 階 |
14階建 / 8階 |
バルコニー |
3.30m² |
| 築年月 |
1973年12月(築52年4ヶ月)
|
建物構造 |
SRC |
| 駐車場 |
- |
総戸数 |
71戸 |
| 駐輪場 |
有 100円/月 |
バイク置き場 |
- |
| ペット |
相談 |
|
|
| 土地権利 |
所有権 |
敷地面積 |
- |
| 管理形態/管理員の勤務形態 |
全部委託/日勤 |
国土法届出 |
- |
| アピールポイント |
住んでいて心地の良い中古マンションで魅力的です。システムキッチンは必要な物が組み込まれているため、すぐ調理できます。スーパーが近いので買い物がしやすいです。浴室乾燥機のあるお風呂場は洗濯物を干すときにも便利です。忙しい方におすすめの、駅徒歩4分の物件です。安心して暮らしを送りたい方におすすめの防犯カメラ付き物件です。洗面所にドアがついていると、お友達を呼んだ際にもプライバシーを守れます。 |
| 建物名・部屋番号 |
東陽町コーポラス |
| リフォーム履歴 |
■水回り:2026年3月 キッチン、浴室、トイレ ■内装:2026年3月 床(フローリング等)、壁・天井(クロス・塗装等) ■その他:2026年3月 内装(キッチン 浴室 トイレ 壁 床 全室 ) ※実施年月は最も古い履歴を表示 |
| リノベーション履歴 |
2026年3月 新規リノベーション ※実施年月は最も古い履歴を表示 |
| 瑕疵保証 |
- |
| 瑕疵保険 |
- |
| 評価・証明書 |
- |
| 備考 |
主要採光面:西向き
用途地域:準工業
【頭金0円での購入可能・住宅ローンには特に精通したスタッフがおりますのでお気軽にお問い合わせください】
浴室乾燥機付き物件ならば、浴室や洗濯物からスピーディーに湿気を除去してカビを防げます。
|
| エネルギー消費性能 |
- |
| 断熱性能 |
- |
| 目安光熱費 |
- |
| バス・トイレ |
浴室乾燥機、オートバス、追焚機能、温水洗浄便座 |
| キッチン |
システムキッチン、食器洗浄乾燥機、浄水器、3口以上コンロ |
| 設備・サービス |
全居室収納、収納スペース、室内洗濯機置場、クローゼット、防犯カメラ、洗濯機置場、都市ガス、駐輪場 |
| その他 |
エレベーター |
| 条件等 |
- |
現況 |
空家 |
| 引渡可能時期 |
相談 |
物件番号 |
1190619319 |
| 情報公開日 |
2026年2月19日 |
次回更新予定日 |
2026年3月15日 |
| ケータイ用バーコード |
- スマートフォンでこの物件を見る
- スマートフォンからもこの物件をご覧になれます。
|
※「-」と表示されている項目については、情報提供会社にご確認ください。
| 周辺施設 |
西友 東陽町店 |
| 距離 |
800m |
写真を見る |
| 周辺施設 |
まいばすけっと 東陽5丁目店 |
| 距離 |
400m |
写真を見る |
| 周辺施設 |
イトーヨーカドー木場店 |
| 距離 |
1108m |
写真を見る |
| 周辺施設 |
江東区立東陽小学校 |
| 距離 |
308m |
写真を見る |
| 周辺施設 |
江東区立東陽中学校 |
| 距離 |
361m |
写真を見る |
| 周辺施設 |
セブンイレブン 東陽店 |
| 距離 |
190m |
写真を見る |
| 周辺施設 |
くすりの福太郎 東陽町3丁目店 |
| 距離 |
8m |
写真を見る |
ここから簡単にお問い合わせをすることができます。
(SSLでの暗号化での送信を希望されるお客さまは
こちら
よりお問い合わせください)
お問い合わせを行う前に
「個人情報の取り扱いについて」を必ずお読みください。
「個人情報の取り扱いについて」に同意いただいた場合は「上記にご同意の上 確認画面へ進む」のボタンをクリックしてください。
個人情報の取り扱いについて
皆さまが送付された個人情報はアットホーム(株)のサーバを経由し、お問い合わせ先の不動産会社にメールまたはFAXにて転送されるためアットホーム(株)にも保管されます。アットホーム(株)で保管された個人情報の取り扱いについては、【こちら】をご覧ください。
また、本画面でご記入いただいた個人情報は、お問い合わせ先の不動産会社でも保管します。 お問い合わせ先の不動産会社が保管する個人情報の取り扱いについては、不動産会社に直接お問い合わせください。
東京都知事免許(2)第105514号 |
|---|
- 交通:
- JR総武本線/錦糸町駅 徒歩7分
- 東京都墨田区太平3丁目18-5 千代津ビル101
- TEL:
- 03-6240-4711
- FAX:
- 03-6240-4722
- 所属団体:
- (公社)東京都宅地建物取引業協会会員(公社)首都圏不動産公正取引協議会加盟
取引態様:媒介  - 00269210
|
- スマートフォンで
この不動産会社を見る

|
- 提携サイト等より掲載されている物件情報につきましては、不動産会社詳細情報にリンクされていないものがあります。
- 物件に関するお問合せは、物件詳細ページの「情報提供会社」に表示されている不動産会社へ直接お願いいたします。
- 間取図は、現況を優先させていただきます。
- 映像は物件の一部を撮影したものです。物件の契約にあたっての最終判断はご自身の判断に基づいて行ってください。
- 仲介手数料について

アットホームは物件情報の適正化に努めております。
内容に誤りがある場合にはこちらへご連絡ください。