東京都多摩市山王下1丁目(京王多摩センター駅)の中古マンション・新築マンション・分譲マンション:物件詳細
交通 所在地 |
駅徒歩 |
価格 |
構造 階建/階 |
間取り 専有面積 |
物件種目 築年月 |
|
京王相模原線/京王多摩センター
東京都多摩市山王下1丁目
|
7分
|
3,780万円
|
RC
6階建 / 3階
|
3LDK
59.16m²
|
中古マンション
1995年6月(築31年)
|
|
ペット相談、常時ゴミ出し可能、南向き、フラット35適合証明書あり、管理人日勤
|
|
≪オープンルーム/モデルルーム≫【開催期間】2026年5月2日~5月6日 【時間】10:00~18:00 事前に必ず予約してください
|
|
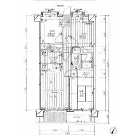
間取図
|
外観
|
<
その他の画像
>
|
| 交通 | 京王相模原線 京王多摩センター駅 徒歩7分 |
|---|
| その他の交通 | 小田急多摩線 小田急多摩センター駅 徒歩7分 多摩モノレール 多摩センター駅 徒歩6分 |
| 所在地 |
東京都多摩市山王下1丁目
|
| 物件種目 |
中古マンション |
| 価格 |
3,780万円 |
平米単価 |
63.90万円 |
| 管理費等 |
12,760円 |
修繕積立金 |
19,100円 |
| 借地期間・地代(月額) |
- |
権利金 |
- |
| 敷金または保証金 |
- / - |
維持費等 |
- |
| その他一時金 |
なし |
|
|
| 間取り |
3LDK(LD9.4、K2.9、和6、洋4.5、4) |
専有面積 |
59.16m²(壁芯) |
| 階建 / 階 |
6階建 / 3階 |
バルコニー |
7.77m² |
| 築年月 |
1995年6月(築31年)
|
建物構造 |
RC |
| 駐車場 |
- |
総戸数 |
21戸 |
| 駐輪場 |
有 |
バイク置き場 |
有 |
| ペット |
相談 |
|
|
| 土地権利 |
所有権 |
敷地面積 |
- |
| 管理形態/管理員の勤務形態 |
全部委託/日勤 |
国土法届出 |
- |
| アピールポイント |
TERASSがおススメする住宅ローン
【 auじぶん銀行 】変動金利 0.884%(諸条件適用の場合)
・がん100%保障団信が【金利上乗せなし】で加入可能!
・頭金0円でも可能!
・諸費用も、物件価格の10%までは融資可能!
※2026年5月現在
■リビング収納×洋室・和室収納有り
■新耐震基準マンション
■不在時に便利な宅配ボックス付き
■オートロック・防犯カメラ・TVモニター付きインターホン
■24時間ゴミ出し可能
【リフォーム内容】
■新規交換:システムキッチン、浴室、洗面化粧台、トイレ、建具
■フローリング上貼、クロス張替、カーテンレール交換、ハウスクリーニング 他 |
| 建物名・部屋番号 |
ベルザ多摩センター |
| リフォーム履歴 |
■水回り:2026年3月 キッチン、浴室、トイレ ■内装:2026年3月 床(フローリング等)、壁・天井(クロス・塗装等) ハウスクリーニング他 ■その他:2026年3月 内装(キッチン 浴室 トイレ 壁 床 ハウスクリーニング他) ※実施年月は最も古い履歴を表示 |
| リノベーション履歴 |
- |
| 瑕疵保証 |
- |
| 瑕疵保険 |
- |
| 評価・証明書 |
■フラット35適合証明書 フラット35適合証明書あり |
| 備考 |
主要採光面:南向き
法令等制限:■駐車場(空有):12000円/月■駐輪場(空有):150円/月■バイク置
用途地域:近隣商業
■駐車場(空有):12000円/月■駐輪場(空有):150円/月■バイク置き場(空無):125cc未満 200円/月・400cc未満 300円/月・400cc以上 400円/月■ペット飼育可※細則有
|
| エネルギー消費性能 |
- |
| 断熱性能 |
- |
| 目安光熱費 |
- |
| バス・トイレ |
温水洗浄便座 |
| キッチン |
カウンターキッチン、システムキッチン |
| 設備・サービス |
モニター付オートロック、全居室収納、バイク置き場、収納スペース、オートロック、モニター付インターホン、防犯カメラ、出窓、駐輪場 |
| その他 |
宅配BOX、エレベーター |
| 条件等 |
- |
現況 |
空家 |
| 引渡可能時期 |
相談 |
物件番号 |
1191083419 |
| 情報公開日 |
2026年3月1日 |
次回更新予定日 |
2026年5月16日 |
| ケータイ用バーコード |
- スマートフォンでこの物件を見る
- スマートフォンからもこの物件をご覧になれます。
|
※「-」と表示されている項目については、情報提供会社にご確認ください。
ここから簡単にお問い合わせをすることができます。
(SSLでの暗号化での送信を希望されるお客さまは
こちら
よりお問い合わせください)
お問い合わせを行う前に
「個人情報の取り扱いについて」を必ずお読みください。
「個人情報の取り扱いについて」に同意いただいた場合は「上記にご同意の上 確認画面へ進む」のボタンをクリックしてください。
個人情報の取り扱いについて
皆さまが送付された個人情報はアットホーム(株)のサーバを経由し、お問い合わせ先の不動産会社にメールまたはFAXにて転送されるためアットホーム(株)にも保管されます。アットホーム(株)で保管された個人情報の取り扱いについては、【こちら】をご覧ください。
また、本画面でご記入いただいた個人情報は、お問い合わせ先の不動産会社でも保管します。 お問い合わせ先の不動産会社が保管する個人情報の取り扱いについては、不動産会社に直接お問い合わせください。
国土交通大臣免許(1)第10125号 |
|---|
- 交通:
- 東京メトロ日比谷線/虎ノ門ヒルズ駅 徒歩3分
- 東京都港区虎ノ門2丁目2-1 住友不動産虎ノ門タワー13階
- TEL:
- 050-3144-9765
- FAX:
- 03-6369-3864
- 所属団体:
- (公社)東京都宅地建物取引業協会会員(公社)首都圏不動産公正取引協議会加盟
取引態様:媒介  - 00786420
|
- スマートフォンで
この不動産会社を見る

|
- 提携サイト等より掲載されている物件情報につきましては、不動産会社詳細情報にリンクされていないものがあります。
- 物件に関するお問合せは、物件詳細ページの「情報提供会社」に表示されている不動産会社へ直接お願いいたします。
- 間取図は、現況を優先させていただきます。
- 映像は物件の一部を撮影したものです。物件の契約にあたっての最終判断はご自身の判断に基づいて行ってください。
- 仲介手数料について

アットホームは物件情報の適正化に努めております。
内容に誤りがある場合にはこちらへご連絡ください。