東京都新宿区西早稲田3丁目(高田馬場駅)の中古マンション・新築マンション・分譲マンション:物件詳細
交通 所在地 |
駅徒歩 |
価格 |
構造 階建/階 |
間取り 専有面積 |
物件種目 築年月 |
|
東京メトロ東西線/高田馬場
東京都新宿区西早稲田3丁目
|
10分
|
7,880万円
|
SRC
13階建 / 2階
|
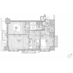
2LDK
52.99m²
|
中古マンション
1994年10月(築31年6ヶ月)
|
|
角部屋、外観タイル張り、管理人日勤
|
|
間取図
|
外観
|
<
その他の画像
>
|
| 交通 | 東京メトロ東西線 高田馬場駅 徒歩10分 |
|---|
| その他の交通 | 都電荒川線 面影橋駅 徒歩3分 JR山手線 高田馬場駅 徒歩15分 |
| 所在地 |
東京都新宿区西早稲田3丁目
|
| 物件種目 |
中古マンション |
| 価格 |
7,880万円 |
平米単価 |
148.71万円 |
| 管理費等 |
13,800円 |
修繕積立金 |
11,390円 |
| 借地期間・地代(月額) |
- |
権利金 |
- |
| 敷金または保証金 |
- / - |
維持費等 |
- |
| その他一時金 |
なし |
|
|
| 間取り |
2LDK |
専有面積 |
52.99m²(壁芯) |
| 階建 / 階 |
13階建 / 2階 |
バルコニー |
6.51m² |
| 築年月 |
1994年10月(築31年6ヶ月)
|
建物構造 |
SRC |
| 駐車場 |
- |
総戸数 |
58戸 |
| 駐輪場 |
- |
バイク置き場 |
- |
| ペット |
-
|
|
|
| 土地権利 |
所有権 |
敷地面積 |
- |
| 管理形態/管理員の勤務形態 |
全部委託/日勤 |
国土法届出 |
- |
| アピールポイント |
◆◆仲介手数料半額キャンペーン実施中!!◆◆
■□■RENOLAZEのメリット■□■
1.不動産業界歴10年以上の経験豊富なスタッフが対応
2.賃貸・管理のグループ会社と連携し、豊富な情報の提供
3.ポータルサイトに掲載されている物件の仲介手数料を安く購入出来る可能性がございます。
4.売主との価格交渉を積極的に動きます。
5.住宅ローン提携銀行のご紹介、金利比較をご提案します。 |
| 建物名・部屋番号 |
朝日シティパリオ西早稲田館 |
| リフォーム履歴 |
- |
| リノベーション履歴 |
- |
| 瑕疵保証 |
- |
| 瑕疵保険 |
- |
| 評価・証明書 |
- |
| 備考 |
主要採光面:南西向き
南西向き住戸! 複数路線・複数駅利用可能な好立地マンション。オートロック、留守中の荷物の受け取りに便利な宅配ボックス完備。
|
| エネルギー消費性能 |
- |
| 断熱性能 |
- |
| 目安光熱費 |
- |
| バス・トイレ |
追焚機能、温水洗浄便座 |
| キッチン |
システムキッチン、3口以上コンロ |
| 設備・サービス |
全居室収納、収納スペース、室内洗濯機置場、クローゼット、オートロック、防犯カメラ、洗濯機置場、給湯、都市ガス |
| その他 |
宅配BOX、エレベーター |
| 条件等 |
- |
現況 |
空家 |
| 引渡可能時期 |
相談 |
物件番号 |
1191646519 |
| 仲介手数料 |
売買代金の1.5% |
|
|
| 情報公開日 |
2026年3月13日 |
次回更新予定日 |
2026年3月27日 |
| ケータイ用バーコード |
- スマートフォンでこの物件を見る
- スマートフォンからもこの物件をご覧になれます。
|
※「-」と表示されている項目については、情報提供会社にご確認ください。
| 周辺施設 |
セブン-イレブン新宿西早稲田3丁目店 |
| 距離 |
521m |
写真を見る |
| 周辺施設 |
ファミリーマートいずみや高田店 |
| 距離 |
572m |
写真を見る |
| 周辺施設 |
ファミリーマートアイズ高田馬場店 |
| 距離 |
609m |
写真を見る |
| 周辺施設 |
豊島区立高田公園 |
| 距離 |
616m |
写真を見る |
| 周辺施設 |
戸塚第二小学校 |
| 距離 |
847m |
写真を見る |
| 周辺施設 |
オリンピック 早稲田店 |
| 距離 |
878m |
写真を見る |
| 周辺施設 |
グルメシティ・高田店 |
| 距離 |
812m |
写真を見る |
| 周辺施設 |
学習院女子大学 |
| 距離 |
876m |
写真を見る |
ここから簡単にお問い合わせをすることができます。
(SSLでの暗号化での送信を希望されるお客さまは
こちら
よりお問い合わせください)
お問い合わせを行う前に
「個人情報の取り扱いについて」を必ずお読みください。
「個人情報の取り扱いについて」に同意いただいた場合は「上記にご同意の上 確認画面へ進む」のボタンをクリックしてください。
個人情報の取り扱いについて
皆さまが送付された個人情報はアットホーム(株)のサーバを経由し、お問い合わせ先の不動産会社にメールまたはFAXにて転送されるためアットホーム(株)にも保管されます。アットホーム(株)で保管された個人情報の取り扱いについては、【こちら】をご覧ください。
また、本画面でご記入いただいた個人情報は、お問い合わせ先の不動産会社でも保管します。 お問い合わせ先の不動産会社が保管する個人情報の取り扱いについては、不動産会社に直接お問い合わせください。
東京都知事免許(3)第97725号 |
|---|
- 交通:
- 東京メトロ丸ノ内線/新宿御苑前駅 徒歩5分
- 東京都新宿区四谷4丁目28-20 パレ・エテルネル403
- TEL:
- 03-5341-4693
- FAX:
- 03-5341-4694
- 所属団体:
- (公社)東京都宅地建物取引業協会会員(公社)首都圏不動産公正取引協議会加盟
取引態様:媒介  - 00162634
|
- スマートフォンで
この不動産会社を見る

|
- 提携サイト等より掲載されている物件情報につきましては、不動産会社詳細情報にリンクされていないものがあります。
- 物件に関するお問合せは、物件詳細ページの「情報提供会社」に表示されている不動産会社へ直接お願いいたします。
- 間取図は、現況を優先させていただきます。
- 映像は物件の一部を撮影したものです。物件の契約にあたっての最終判断はご自身の判断に基づいて行ってください。
- 仲介手数料について

アットホームは物件情報の適正化に努めております。
内容に誤りがある場合にはこちらへご連絡ください。