大阪府大阪市中央区安土町2丁目(本町駅)の中古マンション・新築マンション・分譲マンション:物件詳細
交通 所在地 |
駅徒歩 |
価格 |
構造 階建/階 |
間取り 専有面積 |
物件種目 築年月 |
|
地下鉄御堂筋線/本町
大阪府大阪市中央区安土町2丁目
|
5分
|
14,180万円
|
RC
地上48階地下1階建 / 41階
|
2SLDK
59.40m²
|
中古マンション
2022年3月(築4年1ヶ月)
|
|
ペット相談、フロントサービス、常時ゴミ出し可能、24時間セキュリティー、免震構造、高強度コンクリート、外断熱、ハイサッシ採用、天井高2.5M以上、二重床・二重天井、アウトフレーム工法、バス1坪以上、24時間換気システム、バリアフリー、外観タイル張り、設計住宅性能評価書あり、建設住宅性能評価書あり、前面棟無、隣接建物距離2m以上、管理人常駐
|
|
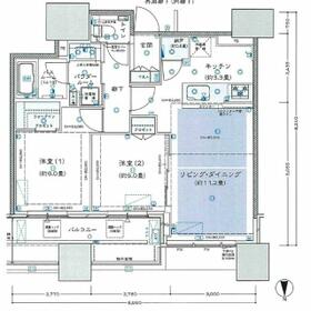
間取図
【間取り】
|
外観
【外観】シンボリックに、堂々と。大阪の夜空に輝く。地上約160。さらなる強さと美を求めた摩天楼。
|
その他の画像
|
| 交通 | 地下鉄御堂筋線 本町駅 徒歩5分 |
|---|
| その他の交通 | 地下鉄堺筋線 堺筋本町駅 徒歩3分 地下鉄堺筋線 北浜駅 徒歩8分 |
| 所在地 |
大阪府大阪市中央区安土町2丁目
|
| 物件種目 |
中古マンション |
| 価格 |
14,180万円 |
平米単価 |
238.73万円 |
| 管理費等 |
15,806円 |
修繕積立金 |
9,130円 |
| 借地期間・地代(月額) |
- |
権利金 |
- |
| 敷金または保証金 |
- / - |
維持費等 |
- |
| その他一時金 |
なし |
|
|
| 間取り |
2SLDK(LDK14.5、洋6、5) |
専有面積 |
59.40m²(壁芯) |
| 階建 / 階 |
地上48階地下1階建 / 41階 |
バルコニー |
8.55m² |
| 築年月 |
2022年3月(築4年1ヶ月)
|
建物構造 |
RC |
| 駐車場 |
空無 |
総戸数 |
855戸 |
| 駐輪場 |
有 |
バイク置き場 |
有 |
| ペット |
小型犬可・ 猫可 |
|
|
| 土地権利 |
所有権 |
敷地面積 |
- |
| 管理形態/管理員の勤務形態 |
全部委託/常駐 |
国土法届出 |
- |
| アピールポイント |
◇大阪市に4棟しかない800戸超タワー
◇共用施設充実
〇約0.5帖の納戸有り
〇廊下短く無駄のないプラン
〇対面キッチン
〇開放感のあるFIX窓
〇全居室開口部・収納有り
〇ウォークインクローゼット付
〇1418サイズの浴室
◆◇共用施設◇◆
〇グルーミング室(1階)
〇ラウンジ(2階)
〇フィットネスルーム(2階)
〇ゲストルーム(5階)
〇ミーティングルーム(47階)
〇スカイアトリウム(47階)
〇スカイラウンジ(47階)
〇パーティールーム(47階)
◆◇お買物施設◇◆
スーパーフレスコ堺筋本町店徒歩2分
ライフ堺筋本町店徒歩8分
KOHYO淀屋橋店徒歩9分
|
| 建物名・部屋番号 |
シティタワー大阪本町 41F |
| リフォーム履歴 |
- |
| リノベーション履歴 |
- |
| 瑕疵保証 |
- |
| 瑕疵保険 |
- |
| 評価・証明書 |
- |
| 備考 |
主要採光面:北向き
施工会社:清水建設(株)
用途地域:商業地域
|
| エネルギー消費性能 |
- |
| 断熱性能 |
- |
| 目安光熱費 |
- |
| バス・トイレ |
サウナ、ミストサウナ、浴室乾燥機、オートバス、追焚機能、温水洗浄便座、タンクレストイレ |
| キッチン |
カウンターキッチン、オープンキッチン、システムキッチン、食器洗浄乾燥機、食器乾燥機、浄水器、ディスポーザー、3口以上コンロ、グリル |
| 設備・サービス |
モニター付オートロック、全居室収納、ウォークインクローゼット、床暖房、バイク置き場、収納スペース、室内洗濯機置場、クローゼット、オートロック、モニター付インターホン、ディンプルキー、ダブルロックドア、防犯カメラ、二重床、洗濯機置場、省エネ給湯器、給湯、全居室フローリング、都市ガス、駐輪場、人感センサー付照明、ダウンライト、複層ガラス |
| その他 |
宅配BOX、ペット用施設、エレベーター2基以上、共用ゲストルーム、共用パーティルーム、車寄せスペース、エレベーター |
| 条件等 |
- |
現況 |
空家 |
| 引渡可能時期 |
相談 |
物件番号 |
1192224019 |
| 情報公開日 |
2026年3月24日 |
次回更新予定日 |
2026年4月7日 |
| ケータイ用バーコード |
- スマートフォンでこの物件を見る
- スマートフォンからもこの物件をご覧になれます。
|
※「-」と表示されている項目については、情報提供会社にご確認ください。
| 周辺施設 |
本町敬愛保育園 |
| 距離 |
78m |
写真を見る |
| 周辺施設 |
船場センタービル |
| 距離 |
486m |
写真を見る |
ここから簡単にお問い合わせをすることができます。
(SSLでの暗号化での送信を希望されるお客さまは
こちら
よりお問い合わせください)
お問い合わせを行う前に
「個人情報の取り扱いについて」を必ずお読みください。
「個人情報の取り扱いについて」に同意いただいた場合は「上記にご同意の上 確認画面へ進む」のボタンをクリックしてください。
個人情報の取り扱いについて
皆さまが送付された個人情報はアットホーム(株)のサーバを経由し、お問い合わせ先の不動産会社にメールまたはFAXにて転送されるためアットホーム(株)にも保管されます。アットホーム(株)で保管された個人情報の取り扱いについては、【こちら】をご覧ください。
また、本画面でご記入いただいた個人情報は、お問い合わせ先の不動産会社でも保管します。 お問い合わせ先の不動産会社が保管する個人情報の取り扱いについては、不動産会社に直接お問い合わせください。
国土交通大臣免許(1)第10312号 |
|---|
- 交通:
- 地下鉄御堂筋線/本町駅 徒歩3分
- 大阪府大阪市中央区淡路町3丁目6-3 御堂筋MTRビル1階
- TEL:
- 06-6684-9636
- FAX:
- 06-6684-9637
- 所属団体:
- (公社)全日本不動産協会会員(公社)近畿地区不動産公正取引協議会加盟
取引態様:専任媒介  - 50102588
|
- スマートフォンで
この不動産会社を見る

|
- 提携サイト等より掲載されている物件情報につきましては、不動産会社詳細情報にリンクされていないものがあります。
- 物件に関するお問合せは、物件詳細ページの「情報提供会社」に表示されている不動産会社へ直接お願いいたします。
- 間取図は、現況を優先させていただきます。
- 映像は物件の一部を撮影したものです。物件の契約にあたっての最終判断はご自身の判断に基づいて行ってください。
- 仲介手数料について

アットホームは物件情報の適正化に努めております。
内容に誤りがある場合にはこちらへご連絡ください。