東京都港区南青山7丁目(表参道駅)の中古マンション・新築マンション・分譲マンション:物件詳細
交通 所在地 |
駅徒歩 |
価格 |
構造 階建/階 |
間取り 専有面積 |
物件種目 築年月 |
|
東京メトロ銀座線/表参道
東京都港区南青山7丁目
|
12分
|
29,400万円
|
RC
18階建 / 5階
|
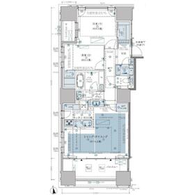
2LDK
80.02m²
|
中古マンション
2022年1月(築4年5ヶ月)
|
|
ペット相談、フロントサービス、常時ゴミ出し可能、角部屋、南向き、2面採光、管理人日勤
|
|
間取図
|
外観
|
その他の画像
|
| 交通 | 東京メトロ銀座線 表参道駅 徒歩12分 |
|---|
| その他の交通 | 東京メトロ日比谷線 広尾駅 徒歩14分 東京メトロ半蔵門線 表参道駅 徒歩12分 |
| 所在地 |
東京都港区南青山7丁目
|
| 物件種目 |
中古マンション |
| 価格 |
29,400万円 |
平米単価 |
367.41万円 |
| 管理費等 |
48,520円 |
修繕積立金 |
6,950円 |
| 借地期間・地代(月額) |
- |
権利金 |
- |
| 敷金または保証金 |
- / - |
維持費等 |
- |
| その他一時金 |
なし |
|
|
| 間取り |
2LDK |
専有面積 |
80.02m²(壁芯) |
| 階建 / 階 |
18階建 / 5階 |
バルコニー |
11.26m² |
| 築年月 |
2022年1月(築4年5ヶ月)
|
建物構造 |
RC |
| 駐車場 |
- |
総戸数 |
105戸 |
| 駐輪場 |
- |
バイク置き場 |
- |
| ペット |
相談 |
|
|
| 土地権利 |
所有権 |
敷地面積 |
- |
| 管理形態/管理員の勤務形態 |
全部委託/日勤 |
国土法届出 |
- |
| アピールポイント |
★仲介手数料割引でお得にご購入いただけます!
★来店不要*ご見学対応|現地やご希望の場所でお待ち合わせ!
◆物件情報◆東京メトロ銀座線・他「表参道」駅徒歩12分、東京メトロ日比谷線「広尾」駅徒歩14分!複数路線・駅利用可能!南青山エリア♪2022年1月築の築浅レジデンス!住友不動産「グランドヒルズ」シリーズ!不在時に便利な宅配ボックスあり!便利なコンシェルジュサービスあり!5階・角住戸につき、陽当り・通風良好◎ウォークインクローゼット×2やシューズインクローゼットなど、収納豊富!
【リッツホームの特徴】
★通常必要な仲介手数料が最大無料になりお得にご購入頂けます
★他ネット掲載物件も対象になります、気になる物件がある方はお早めにご相談下さい
★【価格交渉もお任せください】どこよりも諸費用節約、より良い条件でご紹介いたします。
★提携銀行多数完備、最適な住宅ローンのご提案、頭金0円でもご相談ください。(無料審査要)
★ご売却時の仲介手数料も最大半額で経費節約になります
★物件のご案内は車利用が可能です |
| 建物名・部屋番号 |
グランドヒルズ南青山 5F |
| リフォーム履歴 |
- |
| リノベーション履歴 |
- |
| 瑕疵保証 |
- |
| 瑕疵保険 |
- |
| 評価・証明書 |
- |
| 備考 |
主要採光面:南向き
用途地域:1種中高
|
| エネルギー消費性能 |
- |
| 断熱性能 |
- |
| 目安光熱費 |
- |
| バス・トイレ |
- |
| キッチン |
オープンキッチン、システムキッチン、3口以上コンロ |
| 設備・サービス |
収納スペース、室内洗濯機置場、シューズインクローゼット、オートロック、防犯カメラ、二面バルコニー |
| その他 |
エレベーター |
| 条件等 |
- |
現況 |
空家 |
| 引渡可能時期 |
即時 |
物件番号 |
1192802417 |
| 情報公開日 |
2026年1月27日 |
次回更新予定日 |
2026年5月14日 |
| ケータイ用バーコード |
- スマートフォンでこの物件を見る
- スマートフォンからもこの物件をご覧になれます。
|
※「-」と表示されている項目については、情報提供会社にご確認ください。
| 周辺施設 |
マルエツ プチ 南青山七丁目店 |
| 距離 |
179m |
写真を見る |
| 周辺施設 |
成城石井 西麻布店 |
| 距離 |
411m |
写真を見る |
| 周辺施設 |
セブンイレブン 港区南青山7丁目店 |
| 距離 |
98m |
写真を見る |
| 周辺施設 |
薬マツモトキヨシ 青山店 |
| 距離 |
942m |
写真を見る |
| 周辺施設 |
Echika(エチカ)表参道 |
| 距離 |
1153m |
写真を見る |
| 周辺施設 |
港区立青南幼稚園 |
| 距離 |
768m |
写真を見る |
| 周辺施設 |
港区立青南小学校 |
| 距離 |
783m |
写真を見る |
| 周辺施設 |
港区立青山中学校 |
| 距離 |
2500m |
写真を見る |
ここから簡単にお問い合わせをすることができます。
(SSLでの暗号化での送信を希望されるお客さまは
こちら
よりお問い合わせください)
お問い合わせを行う前に
「個人情報の取り扱いについて」を必ずお読みください。
「個人情報の取り扱いについて」に同意いただいた場合は「上記にご同意の上 確認画面へ進む」のボタンをクリックしてください。
個人情報の取り扱いについて
皆さまが送付された個人情報はアットホーム(株)のサーバを経由し、お問い合わせ先の不動産会社にメールまたはFAXにて転送されるためアットホーム(株)にも保管されます。アットホーム(株)で保管された個人情報の取り扱いについては、【こちら】をご覧ください。
また、本画面でご記入いただいた個人情報は、お問い合わせ先の不動産会社でも保管します。 お問い合わせ先の不動産会社が保管する個人情報の取り扱いについては、不動産会社に直接お問い合わせください。
東京都知事免許(3)第96295号 |
|---|
- 交通:
- 東急東横線/自由が丘駅 徒歩1分
- 東京都目黒区自由が丘1丁目13-4 シャイン自由が丘606
- TEL:
- 03-5731-0567
- FAX:
- 03-5731-0568
- 所属団体:
- (公社)全日本不動産協会会員(公社)首都圏不動産公正取引協議会加盟
取引態様:媒介  - 00160564
|
- スマートフォンで
この不動産会社を見る

|
- 提携サイト等より掲載されている物件情報につきましては、不動産会社詳細情報にリンクされていないものがあります。
- 物件に関するお問合せは、物件詳細ページの「情報提供会社」に表示されている不動産会社へ直接お願いいたします。
- 間取図は、現況を優先させていただきます。
- 映像は物件の一部を撮影したものです。物件の契約にあたっての最終判断はご自身の判断に基づいて行ってください。
- 仲介手数料について

アットホームは物件情報の適正化に努めております。
内容に誤りがある場合にはこちらへご連絡ください。