埼玉県鶴ヶ島市大字上広谷(鶴ヶ島駅)の中古マンション・新築マンション・分譲マンション:物件詳細
交通 所在地 |
駅徒歩 |
価格 |
構造 階建/階 |
間取り 専有面積 |
物件種目 築年月 |
|
東武東上線/鶴ヶ島
埼玉県鶴ヶ島市大字上広谷
|
4分
|
1,480万円
|
SRC
8階建 / 8階
|
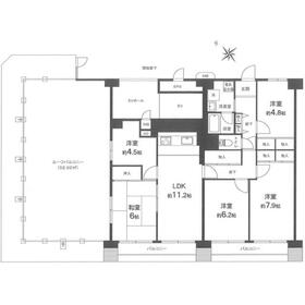
5LDK
95.50m²
|
中古マンション
1981年6月(築44年10ヶ月)
|
|
最上階、3面採光、前面棟無、管理人日勤
|
|
間取図
|
外観
|
その他の画像
|
| 交通 | 東武東上線 鶴ヶ島駅 徒歩4分 |
| 所在地 |
埼玉県鶴ヶ島市大字上広谷
|
| 物件種目 |
中古マンション |
| 価格 |
1,480万円 |
平米単価 |
15.50万円 |
| 管理費等 |
16,200円 |
修繕積立金 |
26,080円 |
| 借地期間・地代(月額) |
- |
権利金 |
- |
| 敷金または保証金 |
- / - |
維持費等 |
- |
| その他一時金 |
なし |
|
|
| 間取り |
5LDK(和室6/洋室7.9/洋室6.2/洋室4.8/洋室4.5/LD) |
専有面積 |
95.50m²(壁芯) |
| 階建 / 階 |
8階建 / 8階 |
バルコニー |
59.78m² |
| 築年月 |
1981年6月(築44年10ヶ月)
|
建物構造 |
SRC |
| 駐車場 |
空無 |
総戸数 |
89戸 |
| 駐輪場 |
- |
バイク置き場 |
- |
| ペット |
-
|
|
|
| 土地権利 |
所有権 |
敷地面積 |
- |
| 管理形態/管理員の勤務形態 |
全部委託/日勤 |
国土法届出 |
- |
| アピールポイント |
ー物件のおすすめポイントー
▼特徴
・東武東上線「鶴ヶ島」駅まで徒歩4分で毎日の通勤通学に便利!
・南・西・北の3方角住戸、日当り良好
・8階建最上階のお部屋のため眺望良好
・専有面積95.5平米の5LDK
・ルーフバルコニー(52.92平米)付(使用料/無料)
◆周辺環境
・杉下小学校まで約1050m
・藤中学校まで約2100m
・セブイイレブンまで約270m
・TAIRAYAまで約60m
・ダイソ-まで約300m
・川野医院まで約280m
・鶴ヶ島耳鼻咽喉科病院まで約10m
・鶴ヶ島駅前郵便局まで約130m
・埼玉りそな銀行まで約230m
■ご希望の住まい探がしをお手伝いします―――――・・・
・物件の詳細・住宅ローン、リフォームのご相談などはお気軽にお問い合わせください。 |
| 建物名・部屋番号 |
ニューライフマンション鶴ヶ島 |
| リフォーム履歴 |
- |
| リノベーション履歴 |
- |
| 瑕疵保証 |
- |
| 瑕疵保険 |
- |
| 評価・証明書 |
- |
| 備考 |
主要採光面:南西向き
用途地域:商業地域、1種住居
|
| エネルギー消費性能 |
- |
| 断熱性能 |
- |
| 目安光熱費 |
- |
| バス・トイレ |
- |
| キッチン |
IHクッキングヒーター |
| 設備・サービス |
収納スペース、室内洗濯機置場、モニター付インターホン、クッションフロア、都市ガス、エアコン、二面バルコニー、インターネット対応、光ファイバー、CATVインターネット、ケーブルTV |
| その他 |
エレベーター |
| 条件等 |
- |
現況 |
空家 |
| 引渡可能時期 |
即時 |
物件番号 |
1192934217 |
| 情報公開日 |
2026年2月9日 |
次回更新予定日 |
2026年3月26日 |
| ケータイ用バーコード |
- スマートフォンでこの物件を見る
- スマートフォンからもこの物件をご覧になれます。
|
※「-」と表示されている項目については、情報提供会社にご確認ください。
ここから簡単にお問い合わせをすることができます。
(SSLでの暗号化での送信を希望されるお客さまは
こちら
よりお問い合わせください)
お問い合わせを行う前に
「個人情報の取り扱いについて」を必ずお読みください。
「個人情報の取り扱いについて」に同意いただいた場合は「上記にご同意の上 確認画面へ進む」のボタンをクリックしてください。
個人情報の取り扱いについて
皆さまが送付された個人情報はアットホーム(株)のサーバを経由し、お問い合わせ先の不動産会社にメールまたはFAXにて転送されるためアットホーム(株)にも保管されます。アットホーム(株)で保管された個人情報の取り扱いについては、【こちら】をご覧ください。
また、本画面でご記入いただいた個人情報は、お問い合わせ先の不動産会社でも保管します。 お問い合わせ先の不動産会社が保管する個人情報の取り扱いについては、不動産会社に直接お問い合わせください。
東日本住宅(株)鶴ケ島営業所国土交通大臣免許(11)第3076号 |
|---|
- 交通:
- 東武東上線/鶴ヶ島駅 【バス】3分 停歩1分
- 埼玉県鶴ヶ島市松ヶ丘1丁目14-26-102
- TEL:
- 049-285-5501
- FAX:
- 049-285-5661
- 所属団体:
- (公社)埼玉県宅地建物取引業協会会員(一社)全国住宅産業協会会員(一社)不動産流通経営協会会員不動産公正取引協議会加盟
取引態様:専属専任媒介 |
- 提携サイト等より掲載されている物件情報につきましては、不動産会社詳細情報にリンクされていないものがあります。
- 物件に関するお問合せは、物件詳細ページの「情報提供会社」に表示されている不動産会社へ直接お願いいたします。
- 間取図は、現況を優先させていただきます。
- 映像は物件の一部を撮影したものです。物件の契約にあたっての最終判断はご自身の判断に基づいて行ってください。
- 仲介手数料について

アットホームは物件情報の適正化に努めております。
内容に誤りがある場合にはこちらへご連絡ください。