兵庫県神戸市垂水区青山台8丁目(垂水駅)の中古マンション・新築マンション・分譲マンション:物件詳細
交通 所在地 |
駅徒歩 |
価格 |
構造 階建/階 |
間取り 専有面積 |
物件種目 築年月 |
|
JR山陽本線/垂水 【バス】12分 松風台 停歩1分
兵庫県神戸市垂水区青山台8丁目
|
-
|
2,580万円
|
RC
地上14階地下1階建 / 9階
|
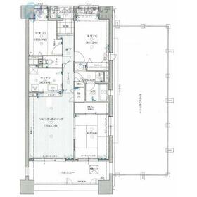
3LDK
77.64m²
|
中古マンション
1998年6月(築27年10ヶ月)
|
|
ペット相談、管理人日勤
|
|
間取図
間取図
|
外観
外観
|
<
その他の画像
>
|
| 交通 | JR山陽本線 垂水駅 【バス】 12分 松風台 停歩1分 |
|---|
| その他の交通 | 山陽電鉄本線 山陽垂水駅 徒歩47分 山陽電鉄本線 山陽塩屋駅 徒歩25分 |
| 所在地 |
兵庫県神戸市垂水区青山台8丁目
|
| 物件種目 |
中古マンション |
| 価格 |
2,580万円 |
平米単価 |
33.24万円 |
| 管理費等 |
10,200円 |
修繕積立金 |
25,980円 |
| 借地期間・地代(月額) |
- |
権利金 |
- |
| 敷金または保証金 |
- / - |
維持費等 |
バルコニー使用料:100円/月 |
| その他一時金 |
なし |
|
|
| 間取り |
3LDK(LD13.1帖 K3.4帖 和室6.0帖 洋室7.2帖 洋…) |
専有面積 |
77.64m²(壁芯) |
| 階建 / 階 |
地上14階地下1階建 / 9階 |
バルコニー |
10.00m² |
| 築年月 |
1998年6月(築27年10ヶ月)
|
建物構造 |
RC |
| 駐車場 |
有 7,000円/月 |
総戸数 |
189戸 |
| 駐輪場 |
- |
バイク置き場 |
- |
| ペット |
相談 |
|
|
| 土地権利 |
所有権 |
敷地面積 |
- |
| 管理形態/管理員の勤務形態 |
全部委託/日勤 |
国土法届出 |
- |
| アピールポイント |
・専用ルーフバルコニー付!お子様も安心して遊べます♪
・カウンターキッチン♪お部屋の様子を見ながら家事ができます♪
・各居室に収納スペースあり♪お洋服もすっきりと片付きます♪
・ご内覧は事前のご予約がおススメです♪
・お気軽にお問い合わせください♪
・ローンや諸費用についても分かりやすくご説明いたします♪
◇◆神戸不動産リアルティ◆◇
私たちは神戸・西宮・明石エリア密着の不動産売買専門会社です。
ラジオ・TV CM「サンテレビボックス席」にてテレビCM、「kissFM kobe」にてラジオCMを放送中!
物件の売却相談も承ります!
圧倒的な広告量でより早く高く売ります! |
| 建物名・部屋番号 |
ヒルトップコートジェームス山 |
| リフォーム履歴 |
- |
| リノベーション履歴 |
- |
| 瑕疵保証 |
- |
| 瑕疵保険 |
- |
| 評価・証明書 |
- |
| 備考 |
主要採光面:南東向き
用途地域:2種住居
ルーフバルコニー面積:52.87m2
|
| エネルギー消費性能 |
- |
| 断熱性能 |
- |
| 目安光熱費 |
- |
| バス・トイレ |
追焚機能 |
| キッチン |
カウンターキッチン、システムキッチン |
| 設備・サービス |
室内洗濯機置場、クローゼット、ルーフバルコニー |
| その他 |
- |
| 条件等 |
- |
現況 |
所有者居住中 |
| 引渡可能時期 |
相談 |
物件番号 |
1195460424 |
| 仲介手数料 |
売買代金の3%+6万円 |
|
|
| 情報公開日 |
2026年3月22日 |
次回更新予定日 |
2026年4月5日 |
| ケータイ用バーコード |
- スマートフォンでこの物件を見る
- スマートフォンからもこの物件をご覧になれます。
|
※「-」と表示されている項目については、情報提供会社にご確認ください。
| 周辺施設 |
イオンジェームス山店 |
| 距離 |
400m |
写真を見る |
| 周辺施設 |
まいどおおきに食堂神戸ジェームス山食堂 |
| 距離 |
440m |
| 周辺施設 |
セブンイレブン神戸ジェームス山店 |
| 距離 |
70m |
| 周辺施設 |
神戸ジェームス山郵便局 |
| 距離 |
700m |
写真を見る |
| 周辺施設 |
神戸市立乙木小学校 |
| 距離 |
1300m |
写真を見る |
| 周辺施設 |
神戸市立塩屋中学校 |
| 距離 |
570m |
写真を見る |
| 周辺施設 |
スギ薬局ジェームス山店 |
| 距離 |
610m |
写真を見る |
| 周辺施設 |
医療法人社団菫会名谷病院 |
| 距離 |
3310m |
写真を見る |
ここから簡単にお問い合わせをすることができます。
(SSLでの暗号化での送信を希望されるお客さまは
こちら
よりお問い合わせください)
お問い合わせを行う前に
「個人情報の取り扱いについて」を必ずお読みください。
「個人情報の取り扱いについて」に同意いただいた場合は「上記にご同意の上 確認画面へ進む」のボタンをクリックしてください。
個人情報の取り扱いについて
皆さまが送付された個人情報はアットホーム(株)のサーバを経由し、お問い合わせ先の不動産会社にメールまたはFAXにて転送されるためアットホーム(株)にも保管されます。アットホーム(株)で保管された個人情報の取り扱いについては、【こちら】をご覧ください。
また、本画面でご記入いただいた個人情報は、お問い合わせ先の不動産会社でも保管します。 お問い合わせ先の不動産会社が保管する個人情報の取り扱いについては、不動産会社に直接お問い合わせください。
兵庫県知事免許(3)第401433号 |
|---|
- 交通:
- JR山陽本線/垂水駅 【バス】17分
- 兵庫県神戸市垂水区野田通5番15
- TEL:
- 078-798-6355
- FAX:
- 078-798-6356
- 所属団体:
- (一社)兵庫県宅地建物取引業協会会員(公社)近畿地区不動産公正取引協議会加盟
取引態様:媒介  - 50100841
|
- スマートフォンで
この不動産会社を見る

|
- 提携サイト等より掲載されている物件情報につきましては、不動産会社詳細情報にリンクされていないものがあります。
- 物件に関するお問合せは、物件詳細ページの「情報提供会社」に表示されている不動産会社へ直接お願いいたします。
- 間取図は、現況を優先させていただきます。
- 映像は物件の一部を撮影したものです。物件の契約にあたっての最終判断はご自身の判断に基づいて行ってください。
- 仲介手数料について

アットホームは物件情報の適正化に努めております。
内容に誤りがある場合にはこちらへご連絡ください。