東京都港区港南3丁目(品川駅)の中古マンション・新築マンション・分譲マンション:物件詳細
交通 所在地 |
駅徒歩 |
価格 |
構造 階建/階 |
間取り 専有面積 |
物件種目 築年月 |
|
JR山手線/品川
東京都港区港南3丁目
|
11分
|
7,380万円
|
SRC
地上31階地下2階建 / 20階
|
1SK
40.00m²
|
中古マンション
2006年10月(築19年6ヶ月)
|
|
ペット相談、常時ゴミ出し可能、管理人常駐、IT重説対応物件
|
|
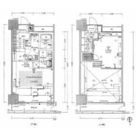
間取図
|
外観
|
その他の画像
|
| 交通 | JR山手線 品川駅 徒歩11分 |
|---|
| その他の交通 | JR東海道本線 品川駅 徒歩11分 東海道新幹線 品川駅 徒歩11分 |
| 所在地 |
東京都港区港南3丁目
|
| 物件種目 |
中古マンション |
| 価格 |
7,380万円 |
平米単価 |
184.50万円 |
| 管理費等 |
8,300円 |
修繕積立金 |
10,200円 |
| 借地期間・地代(月額) |
- |
権利金 |
- |
| 敷金または保証金 |
- / - |
維持費等 |
インターネット(定額料金):1,260円/月、組合費:100円/月、マルチICカード利用料:273円/月、配信設備料:495円/月 |
| その他一時金 |
なし |
|
|
| 間取り |
1SK(洋室13.6帖 ロフト7.0帖 K2.5帖) |
専有面積 |
40.00m²(壁芯) |
| 階建 / 階 |
地上31階地下2階建 / 20階 |
バルコニー |
5.63m² |
| 築年月 |
2006年10月(築19年6ヶ月)
|
建物構造 |
SRC |
| 駐車場 |
- |
総戸数 |
223戸 |
| 駐輪場 |
- |
バイク置き場 |
- |
| ペット |
相談 |
|
|
| 土地権利 |
所有権 |
敷地面積 |
- |
| 管理形態/管理員の勤務形態 |
全部委託/常駐 |
国土法届出 |
- |
| アピールポイント |
~現況引渡しの場合の特別価格です!~
☆専有面積40m2+約7.0帖のロフト付き
☆高層階20F!眺望良好なお部屋
☆バルコニーからレインボーブリッジが見えます
☆ペット飼育可能(制限有)
●24時間有人の管理体制(夜間警備員)
●ホテルライクな内廊下設計
●宅配ロッカー有
●制震構造を採用
●24時間ゴミ出し可能(各階にごみステーションあり)
●駐車場空きあり 2026/3現在(車種による)
●スカイビューラウンジ、ストゥーディオ使用可能 |
| 建物名・部屋番号 |
フェイバリッチタワー品川 |
| リフォーム履歴 |
- |
| リノベーション履歴 |
- |
| 瑕疵保証 |
- |
| 瑕疵保険 |
- |
| 評価・証明書 |
- |
| 備考 |
主要採光面:北向き
施工会社:(株)竹中工務店・木内建設(株) 共同企業体
用途地域:準工業
IT重説対応物件
~資料請求・内見希望など、お気軽にお問い合わせください~【MEIKO GROUP】創業30年以上の堅実で安定した経営基盤をもつ「正直不動産会社」。都心のブランドエリアをはじめ、東京23区・首都圏など、資産性の高い中古・新築マンションをご紹介しています。売主様から直接お預かり物件が多数。ぜひお気軽にご相談ください!
|
| エネルギー消費性能 |
- |
| 断熱性能 |
- |
| 目安光熱費 |
- |
| バス・トイレ |
浴室乾燥機、温水洗浄便座 |
| キッチン |
システムキッチン、3口以上コンロ |
| 設備・サービス |
モニター付オートロック、ウォークインクローゼット、室内洗濯機置場、クローゼット、オートロック、モニター付インターホン、防犯カメラ、給湯、エアコン、暖房、冷房、インターネット対応 |
| その他 |
宅配BOX、エレベーター |
| 条件等 |
- |
現況 |
空家 |
| 引渡可能時期 |
相談 |
物件番号 |
1195467024 |
| 仲介手数料 |
売買代金の3.3%+6.6万円 |
|
|
| 情報公開日 |
2026年3月22日 |
次回更新予定日 |
2026年4月5日 |
| ケータイ用バーコード |
- スマートフォンでこの物件を見る
- スマートフォンからもこの物件をご覧になれます。
|
※「-」と表示されている項目については、情報提供会社にご確認ください。
ここから簡単にお問い合わせをすることができます。
(SSLでの暗号化での送信を希望されるお客さまは
こちら
よりお問い合わせください)
お問い合わせを行う前に
「個人情報の取り扱いについて」を必ずお読みください。
「個人情報の取り扱いについて」に同意いただいた場合は「上記にご同意の上 確認画面へ進む」のボタンをクリックしてください。
個人情報の取り扱いについて
皆さまが送付された個人情報はアットホーム(株)のサーバを経由し、お問い合わせ先の不動産会社にメールまたはFAXにて転送されるためアットホーム(株)にも保管されます。アットホーム(株)で保管された個人情報の取り扱いについては、【こちら】をご覧ください。
また、本画面でご記入いただいた個人情報は、お問い合わせ先の不動産会社でも保管します。 お問い合わせ先の不動産会社が保管する個人情報の取り扱いについては、不動産会社に直接お問い合わせください。
東京都知事免許(1)第109182号 |
|---|
- 交通:
- JR山手線/恵比寿駅 徒歩3分
- 東京都渋谷区恵比寿4丁目17-3 カゲオカビルディング
- TEL:
- 0120-134-800
- 所属団体:
- (公社)全日本不動産協会会員(公社)首都圏不動産公正取引協議会加盟
取引態様:媒介  - 00281206
|
- スマートフォンで
この不動産会社を見る

|
- 提携サイト等より掲載されている物件情報につきましては、不動産会社詳細情報にリンクされていないものがあります。
- 物件に関するお問合せは、物件詳細ページの「情報提供会社」に表示されている不動産会社へ直接お願いいたします。
- 間取図は、現況を優先させていただきます。
- 映像は物件の一部を撮影したものです。物件の契約にあたっての最終判断はご自身の判断に基づいて行ってください。
- 仲介手数料について

アットホームは物件情報の適正化に努めております。
内容に誤りがある場合にはこちらへご連絡ください。