神奈川県座間市相模が丘1丁目(小田急相模原駅)の中古マンション・新築マンション・分譲マンション:物件詳細
交通 所在地 |
駅徒歩 |
価格 |
構造 階建/階 |
間取り 専有面積 |
物件種目 築年月 |
|
小田急小田原線/小田急相模原
神奈川県座間市相模が丘1丁目
|
2分
|
4,980万円
|
RC
20階建 / 15階
|
3SLDK
73.61m²
|
中古マンション
オーナーチェンジ
2019年1月(築7年2ヶ月)
|
|
管理人日勤、IT重説対応物件
|
|
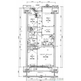
間取図
間取図
|
外観
外観
|
その他の画像
|
| 交通 | 小田急小田原線 小田急相模原駅 徒歩2分 |
|---|
| その他の交通 | 小田急江ノ島線 東林間駅 徒歩23分 小田急小田原線 相武台前駅 徒歩30分 |
| 所在地 |
神奈川県座間市相模が丘1丁目
|
| 物件種目 |
中古マンション |
| 価格 |
4,980万円 |
平米単価 |
67.66万円 |
| 管理費等 |
15,460円 |
修繕積立金 |
11,040円 |
| 借地期間・地代(月額) |
- |
権利金 |
- |
| 敷金または保証金 |
- / - |
維持費等 |
インターネット手数料:880円/月 |
| その他一時金 |
なし |
|
|
| 間取り |
3SLDK(LDK12.1帖 洋室7.0帖 洋室5.0帖 洋室4.7帖…) |
専有面積 |
73.61m²(壁芯) |
| 階建 / 階 |
20階建 / 15階 |
バルコニー |
11.80m² |
| 築年月 |
2019年1月(築7年2ヶ月)
|
建物構造 |
RC |
| 駐車場 |
有 10,000円/月 |
総戸数 |
154戸 |
| 駐輪場 |
有 |
バイク置き場 |
有 |
| ペット |
-
|
|
|
| 土地権利 |
所有権 |
敷地面積 |
- |
| 管理形態/管理員の勤務形態 |
全部委託/日勤 |
国土法届出 |
- |
| アピールポイント |
【KATO不動産町田駅前店の特徴】
(1)インターネット上に掲載されている物件は当社でもご紹介可能です!
(2)エリアに強い営業マンが対応します!
(3)スピーディーな対応を心掛けています!※ご来店当日に物件のご案内ご説明も可能です。要予約
(4)小田急線町田駅徒歩1分の1階路面店舗と分かりやすい立地!
(5)賃貸仲介・賃貸管理も対応しています。市場のニーズや成約に繋がる募集方法や借主様に目に留まる販売図面の作成方法等、購入後の客付けや管理も自信をもってご対応させて頂きます。
アットホームな雰囲気で分からない事は何でも何度でもご質問下さい。ご案内は車・電車・徒歩を使い状況やお客様のニーズにあわせて柔軟にご対応します。 |
| 建物名・部屋番号 |
リビオタワー小田急相模原レジデンス |
| リフォーム履歴 |
- |
| リノベーション履歴 |
- |
| 瑕疵保証 |
- |
| 瑕疵保険 |
- |
| 評価・証明書 |
- |
| 備考 |
主要採光面:南東向き
施工会社:株式会社長谷工コーポレーション
用途地域:商業地域
延べ面積:73.61m²
利回り:4.21%
年間予定賃料収入:210万円
IT重説対応物件
|
| エネルギー消費性能 |
- |
| 断熱性能 |
- |
| 目安光熱費 |
- |
| バス・トイレ |
浴室暖房、浴室乾燥機、オートバス、追焚機能、シャワー付洗面化粧台、温水洗浄便座 |
| キッチン |
カウンターキッチン、システムキッチン、3口以上コンロ |
| 設備・サービス |
モニター付オートロック、ウォークインクローゼット、床暖房、バイク置き場、収納スペース、室内洗濯機置場、シューズインクローゼット、クローゼット、オートロック、モニター付インターホン、ディンプルキー、給湯、都市ガス、暖房、駐輪場 |
| その他 |
宅配BOX |
| 条件等 |
オーナーチェンジ |
現況 |
所有者居住中 |
| 引渡可能時期 |
相談 |
物件番号 |
1198828919 |
| 情報公開日 |
2026年2月8日 |
次回更新予定日 |
2026年2月22日 |
| ケータイ用バーコード |
- スマートフォンでこの物件を見る
- スマートフォンからもこの物件をご覧になれます。
|
※「-」と表示されている項目については、情報提供会社にご確認ください。
| 周辺施設 |
小田急相模原駅(小田急 小田原線) |
| 距離 |
320m |
写真を見る |
| 周辺施設 |
ダイエー相武台店 |
| 距離 |
1040m |
写真を見る |
| 周辺施設 |
ファミリーマートよろづや相模台店 |
| 距離 |
430m |
写真を見る |
| 周辺施設 |
相模原市立もえぎ台小学校 |
| 距離 |
2010m |
写真を見る |
| 周辺施設 |
座間市役所 |
| 距離 |
3540m |
写真を見る |
| 周辺施設 |
OdakyuOX相模原店 |
| 距離 |
420m |
写真を見る |
ここから簡単にお問い合わせをすることができます。
(SSLでの暗号化での送信を希望されるお客さまは
こちら
よりお問い合わせください)
お問い合わせを行う前に
「個人情報の取り扱いについて」を必ずお読みください。
「個人情報の取り扱いについて」に同意いただいた場合は「上記にご同意の上 確認画面へ進む」のボタンをクリックしてください。
個人情報の取り扱いについて
皆さまが送付された個人情報はアットホーム(株)のサーバを経由し、お問い合わせ先の不動産会社にメールまたはFAXにて転送されるためアットホーム(株)にも保管されます。アットホーム(株)で保管された個人情報の取り扱いについては、【こちら】をご覧ください。
また、本画面でご記入いただいた個人情報は、お問い合わせ先の不動産会社でも保管します。 お問い合わせ先の不動産会社が保管する個人情報の取り扱いについては、不動産会社に直接お問い合わせください。
東京都知事免許(2)第104851号 |
|---|
- 交通:
- 小田急小田原線/町田駅 徒歩1分
- 東京都町田市中町1丁目1-3 ジョイビル1階
- TEL:
- 042-785-4112
- FAX:
- 042-862-2500
- 所属団体:
- (公社)東京都宅地建物取引業協会会員(公社)首都圏不動産公正取引協議会加盟
取引態様:専任媒介  - 00268453
|
- スマートフォンで
この不動産会社を見る

|
- 提携サイト等より掲載されている物件情報につきましては、不動産会社詳細情報にリンクされていないものがあります。
- 物件に関するお問合せは、物件詳細ページの「情報提供会社」に表示されている不動産会社へ直接お願いいたします。
- 間取図は、現況を優先させていただきます。
- 映像は物件の一部を撮影したものです。物件の契約にあたっての最終判断はご自身の判断に基づいて行ってください。
- 仲介手数料について

アットホームは物件情報の適正化に努めております。
内容に誤りがある場合にはこちらへご連絡ください。