神奈川県横浜市磯子区杉田6丁目(杉田駅)の中古マンション・新築マンション・分譲マンション:物件詳細
交通 所在地 |
駅徒歩 |
価格 |
構造 階建/階 |
間取り 専有面積 |
物件種目 築年月 |
|
京急本線/杉田
神奈川県横浜市磯子区杉田6丁目
|
11分
|
3,140万円
|
RC
8階建 / 4階
|
3LDK
76.13m²
|
中古マンション
2001年12月(築24年4ヶ月)
|
|
ペット相談、最上階、管理人日勤
|
|
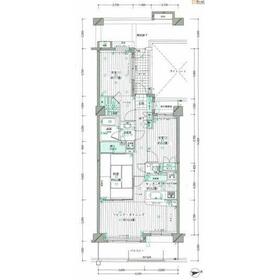
間取図
|
外観
|
<
その他の画像
>
|
| 交通 | 京急本線 杉田駅 徒歩11分 |
|---|
| その他の交通 | JR京浜東北線 新杉田駅 徒歩17分 JR京浜東北線 洋光台駅 【バス】 12分 上中里 停歩12分 |
| 所在地 |
神奈川県横浜市磯子区杉田6丁目
|
| 物件種目 |
中古マンション |
| 価格 |
3,140万円 |
平米単価 |
41.25万円 |
| 管理費等 |
9,600円 |
修繕積立金 |
20,600円 |
| 借地期間・地代(月額) |
- |
権利金 |
- |
| 敷金または保証金 |
- / - |
維持費等 |
- |
| その他一時金 |
なし |
|
|
| 間取り |
3LDK(LD12.4帖 K3.2帖 和室6.0帖 洋室7.7帖 洋…) |
専有面積 |
76.13m²(壁芯) |
| 階建 / 階 |
8階建 / 4階 |
バルコニー |
10.60m² |
| 築年月 |
2001年12月(築24年4ヶ月)
|
建物構造 |
RC |
| 駐車場 |
- |
総戸数 |
107戸 |
| 駐輪場 |
有 |
バイク置き場 |
有 |
| ペット |
相談 |
|
|
| 土地権利 |
所有権 |
敷地面積 |
- |
| 管理形態/管理員の勤務形態 |
全部委託/日勤 |
国土法届出 |
- |
| 建物名・部屋番号 |
サンクタス横浜南の丘 |
| リフォーム履歴 |
- |
| リノベーション履歴 |
- |
| 瑕疵保証 |
- |
| 瑕疵保険 |
- |
| 評価・証明書 |
- |
| 備考 |
主要採光面:東向き
法令等制限:日影制限有/高さ最高限度有
施工会社:株式会社錢高組
用途地域:1種低層
敷地面積最低限度有/高度利用地区/宅地造成工事規制区域
|
| エネルギー消費性能 |
- |
| 断熱性能 |
- |
| 目安光熱費 |
- |
| バス・トイレ |
- |
| キッチン |
カウンターキッチン |
| 設備・サービス |
全居室収納、ウォークインクローゼット、バイク置き場、クローゼット、都市ガス、駐輪場 |
| その他 |
- |
| 条件等 |
- |
現況 |
空家 |
| 引渡可能時期 |
相談 |
物件番号 |
1199784819 |
| 情報公開日 |
2026年3月6日 |
次回更新予定日 |
2026年3月20日 |
| ケータイ用バーコード |
- スマートフォンでこの物件を見る
- スマートフォンからもこの物件をご覧になれます。
|
※「-」と表示されている項目については、情報提供会社にご確認ください。
| 周辺施設 |
杉田駅(京急 本線) |
| 距離 |
1030m |
写真を見る |
| 周辺施設 |
ユーコープ杉田店 |
| 距離 |
430m |
写真を見る |
| 周辺施設 |
ファミリーマート金沢富岡店 |
| 距離 |
940m |
写真を見る |
| 周辺施設 |
横浜市立浜中学校 |
| 距離 |
1390m |
写真を見る |
| 周辺施設 |
横浜市立梅林小学校 |
| 距離 |
800m |
写真を見る |
ここから簡単にお問い合わせをすることができます。
(SSLでの暗号化での送信を希望されるお客さまは
こちら
よりお問い合わせください)
お問い合わせを行う前に
「個人情報の取り扱いについて」を必ずお読みください。
「個人情報の取り扱いについて」に同意いただいた場合は「上記にご同意の上 確認画面へ進む」のボタンをクリックしてください。
個人情報の取り扱いについて
皆さまが送付された個人情報はアットホーム(株)のサーバを経由し、お問い合わせ先の不動産会社にメールまたはFAXにて転送されるためアットホーム(株)にも保管されます。アットホーム(株)で保管された個人情報の取り扱いについては、【こちら】をご覧ください。
また、本画面でご記入いただいた個人情報は、お問い合わせ先の不動産会社でも保管します。 お問い合わせ先の不動産会社が保管する個人情報の取り扱いについては、不動産会社に直接お問い合わせください。
神奈川県知事免許(2)第29729号 |
|---|
- 交通:
- JR京浜東北線/桜木町駅 徒歩1分
- 神奈川県横浜市中区桜木町1丁目101-1 クロスゲート6F
- TEL:
- 045-227-3220
- FAX:
- 045-227-3221
- 所属団体:
- (公社)全日本不動産協会会員(公社)首都圏不動産公正取引協議会加盟
取引態様:媒介  - 00162968
|
- スマートフォンで
この不動産会社を見る

|
- 提携サイト等より掲載されている物件情報につきましては、不動産会社詳細情報にリンクされていないものがあります。
- 物件に関するお問合せは、物件詳細ページの「情報提供会社」に表示されている不動産会社へ直接お願いいたします。
- 間取図は、現況を優先させていただきます。
- 映像は物件の一部を撮影したものです。物件の契約にあたっての最終判断はご自身の判断に基づいて行ってください。
- 仲介手数料について

アットホームは物件情報の適正化に努めております。
内容に誤りがある場合にはこちらへご連絡ください。