神奈川県横浜市保土ケ谷区桜ケ丘2丁目(星川駅)の中古マンション・新築マンション・分譲マンション:物件詳細
交通 所在地 |
駅徒歩 |
価格 |
構造 階建/階 |
間取り 専有面積 |
物件種目 築年月 |
|
相鉄本線/星川 [バス利用可] バス 12分 桜ヶ丘二丁目 停歩1分
神奈川県横浜市保土ケ谷区桜ケ丘2丁目
|
14分
|
3,580万円
|
RC
地上6階地下1階建 / 2階
|
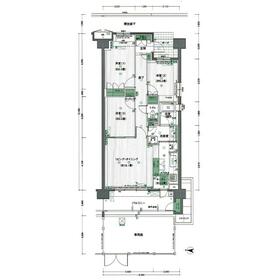
3LDK
69.39m²
|
中古マンション
2004年1月(築22年3ヶ月)
|
|
ペット相談、常時ゴミ出し可能、角部屋、24時間セキュリティー、二重床・二重天井、24時間換気システム、閑静な住宅街、管理人日勤
|
|
間取図
|
エントランス
|
その他の画像
|
| 交通 | 相鉄本線 星川駅 徒歩14分 [バス利用可] バス 12分 桜ヶ丘二丁目 停歩1分 |
|---|
| その他の交通 | JR横須賀線 保土ケ谷駅 徒歩17分 [バス利用可] バス 10分 桜ヶ丘二丁目 停歩1分 JR東海道本線 横浜駅 【バス】 36分 桜ヶ丘二丁目 停歩1分 |
| 所在地 |
神奈川県横浜市保土ケ谷区桜ケ丘2丁目
|
| 物件種目 |
中古マンション |
| 価格 |
3,580万円 |
平米単価 |
51.60万円 |
| 管理費等 |
12,730円 |
修繕積立金 |
17,350円 |
| 借地期間・地代(月額) |
- |
権利金 |
- |
| 敷金または保証金 |
- / - |
維持費等 |
その他費用:1,000円/月 |
| その他一時金 |
- |
|
|
| 間取り |
3LDK |
専有面積 |
69.39m²(壁芯) |
| 階建 / 階 |
地上6階地下1階建 / 2階 |
バルコニー |
11.20m² |
| 築年月 |
2004年1月(築22年3ヶ月)
|
建物構造 |
RC |
| 駐車場 |
有 7,000円/月 |
総戸数 |
70戸 |
| 駐輪場 |
有 無料 |
バイク置き場 |
空無 |
| ペット |
相談 |
|
|
| 土地権利 |
所有権 |
敷地面積 |
- |
| 管理形態/管理員の勤務形態 |
全部委託/日勤(㈱相鉄リビングサポート) |
国土法届出 |
- |
| アピールポイント |
◆二沿線利用可能「相鉄線星川駅徒歩14分、JR横須賀線保土ヶ谷駅徒歩17分」
◆バス停徒歩1分「横浜駅、保土ヶ谷駅、星川駅までバス一本の好立地」
※マンション前からイオン天王町ショッピングセンターお買い物バス利用可能
◆ペット飼育可能
◆専用庭付きのお部屋
◆子育て世代に嬉しい学校近隣「小学校徒歩1分、中学校徒歩5分」 |
| 建物名・部屋番号 |
グレーシアヒルズ横濱桜ヶ丘 |
| リフォーム履歴 |
- |
| リノベーション履歴 |
- |
| 瑕疵保証 |
- |
| 瑕疵保険 |
- |
| 評価・証明書 |
- |
| 備考 |
施工会社:㈱長谷工コーポレーション・相鉄建設㈱共同企業体
用途地域:1種中高
|
| エネルギー消費性能 |
- |
| 断熱性能 |
- |
| 目安光熱費 |
- |
| バス・トイレ |
浴室暖房、浴室乾燥機、オートバス、追焚機能、温水洗浄便座 |
| キッチン |
カウンターキッチン、ディスポーザー、3口以上コンロ |
| 設備・サービス |
モニター付オートロック、全居室収納、バイク置き場、室内洗濯機置場、トランクルーム、床下収納、オートロック、モニター付インターホン、ディンプルキー、防犯カメラ、出窓、全居室フローリング、アルコーブ、都市ガス、専用庭、駐輪場、火災警報器(報知機)、インターネット対応、ケーブルTV |
| その他 |
宅配BOX、敷地内AED有、エレベーター |
| 条件等 |
- |
現況 |
所有者居住中 |
| 引渡可能時期 |
相談 |
物件番号 |
6976958538 |
| 情報公開日 |
2026年2月4日 |
次回更新予定日 |
2026年3月4日 |
| ケータイ用バーコード |
- スマートフォンでこの物件を見る
- スマートフォンからもこの物件をご覧になれます。
|
※「-」と表示されている項目については、情報提供会社にご確認ください。
| 周辺施設 |
いなげや横浜星川駅前店 |
| 距離 |
1333m |
| 周辺施設 |
セブンイレブン横浜桜ヶ丘1丁目店 |
| 距離 |
281m |
| 周辺施設 |
スターバックスコーヒー横浜ビジネスパーク店 |
| 距離 |
995m |
ここから簡単にお問い合わせをすることができます。
(SSLでの暗号化での送信を希望されるお客さまは
こちら
よりお問い合わせください)
お問い合わせを行う前に
「個人情報の取り扱いについて」を必ずお読みください。
「個人情報の取り扱いについて」に同意いただいた場合は「上記にご同意の上 確認画面へ進む」のボタンをクリックしてください。
個人情報の取り扱いについて
皆さまが送付された個人情報はアットホーム(株)のサーバを経由し、お問い合わせ先の不動産会社にメールまたはFAXにて転送されるためアットホーム(株)にも保管されます。アットホーム(株)で保管された個人情報の取り扱いについては、【こちら】をご覧ください。
また、本画面でご記入いただいた個人情報は、お問い合わせ先の不動産会社でも保管します。 お問い合わせ先の不動産会社が保管する個人情報の取り扱いについては、不動産会社に直接お問い合わせください。
神奈川県知事免許(1)第31674号 |
|---|
- 交通:
- JR横須賀線/保土ケ谷駅 【バス】10分 花見台 停歩3分
- 神奈川県横浜市保土ケ谷区仏向町1310番地 パークサイド保土ヶ谷302
- TEL:
- 045-900-0924
- FAX:
- 045-900-0925
- 所属団体:
- (公社)神奈川県宅地建物取引業協会会員(公社)首都圏不動産公正取引協議会加盟
取引態様:媒介  - 00272912
|
- スマートフォンで
この不動産会社を見る

|
- 提携サイト等より掲載されている物件情報につきましては、不動産会社詳細情報にリンクされていないものがあります。
- 物件に関するお問合せは、物件詳細ページの「情報提供会社」に表示されている不動産会社へ直接お願いいたします。
- 間取図は、現況を優先させていただきます。
- 映像は物件の一部を撮影したものです。物件の契約にあたっての最終判断はご自身の判断に基づいて行ってください。
- 仲介手数料について

アットホームは物件情報の適正化に努めております。
内容に誤りがある場合にはこちらへご連絡ください。