宮城県仙台市青葉区上杉5丁目(北四番丁駅)の中古マンション・新築マンション・分譲マンション:物件詳細
交通 所在地 |
駅徒歩 |
価格 |
構造 階建/階 |
間取り 専有面積 |
物件種目 築年月 |
|
仙台市南北線/北四番丁
宮城県仙台市青葉区上杉5丁目
|
12分
|
1,480万円
|
RC
7階建 / 5階
|
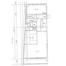
2LDK
75.81m²
|
中古マンション
1975年2月(築50年11ヶ月)
|
|
角部屋、南向き、2面採光
|
|
間取図
|
外観
|
<
その他の画像
>
|
| 交通 | 仙台市南北線 北四番丁駅 徒歩12分 |
| 所在地 |
宮城県仙台市青葉区上杉5丁目
|
| 物件種目 |
中古マンション |
| 価格 |
1,480万円 |
平米単価 |
19.53万円 |
| 管理費等 |
11,300円 |
修繕積立金 |
10,800円 |
| 借地期間・地代(月額) |
- |
権利金 |
- |
| 敷金または保証金 |
- / - |
維持費等 |
- |
| その他一時金 |
- |
|
|
| 間取り |
2LDK(和 6 洋 8) |
専有面積 |
75.81m²(内法) |
| 階建 / 階 |
7階建 / 5階 |
バルコニー |
12.57m² |
| 築年月 |
1975年2月(築50年11ヶ月)
|
建物構造 |
RC |
| 駐車場 |
空無 |
総戸数 |
31戸 |
| 駐輪場 |
- |
バイク置き場 |
- |
| ペット |
-
|
|
|
| 土地権利 |
所有権 |
敷地面積 |
- |
| 管理形態/管理員の勤務形態 |
全部委託/不在(ビイエムケイセイ) |
国土法届出 |
- |
| アピールポイント |
●角部屋×南向きで、一日中お部屋の中は明るく、心地よい陽当たり♪
●うれしいリフォーム済みマンション そのまま気持ちよくご入居いただけます
【こんな方におすすめ】
●明るく風通しの良い住まいで、のんびりとくつろぐ時間を大切にしたい方
●通勤・通学のしやすさと、落ち着いた住環境のどちらも妥協したくない方
【生活環境も良好】
◆仙台上杉六郵便局 徒歩2分
◆ツルハドラッグ・やまや 徒歩2分
◆西友上杉店 徒歩6分
◆七十七銀行上杉支店 徒歩6分
◆イオンモール上杉店 徒歩5分
◆上杉山通小学校 徒歩13分
◆上杉山中学校 徒歩13分
【この部屋の“暮らしのイメージ”】
★南向き×角部屋ののびやかな開放感★
・休日は、陽だまりのリビングでコーヒーを飲みながらゆったり読書♪
・日々のお買い物は徒歩圏で完結し、荷物を抱えて長く歩くストレスも軽減
・落ち着いた上杉エリアの街並みの中で、穏やかな時間が流れる日常
★写真や図面だけでは伝わらない★
上杉ならではの落ち着いた街の雰囲気と、南向き角部屋の心地よさを
ぜひ一度、現地でご体感ください。 |
| 建物名・部屋番号 |
セントラルコーポ上杉 507 |
| リフォーム履歴 |
■水回り:2023年4月 キッチン ■内装:2023年4月 全室クロス張替え、床(フローリング等) 間取り変更4DK⇒2LDK ※実施年月は最も古い履歴を表示 |
| リノベーション履歴 |
- |
| 瑕疵保証 |
- |
| 瑕疵保険 |
- |
| 評価・証明書 |
- |
| 備考 |
主要採光面:南向き
面積概算:壁芯面積81㎡・バルコニー面積15㎡です。
指定仲介業者あり。
|
| エネルギー消費性能 |
- |
| 断熱性能 |
- |
| 目安光熱費 |
- |
| バス・トイレ |
追焚機能、シャワー付洗面化粧台、温水洗浄便座 |
| キッチン |
システムキッチン、3口以上コンロ、グリル |
| 設備・サービス |
収納スペース、室内洗濯機置場、クローゼット、モニター付インターホン、給湯、都市ガス |
| その他 |
エレベーター |
| 条件等 |
- |
現況 |
空家 |
| 引渡可能時期 |
相談 |
物件番号 |
6980863049 |
| 情報公開日 |
2025年2月28日 |
次回更新予定日 |
2025年12月31日 |
| ケータイ用バーコード |
- スマートフォンでこの物件を見る
- スマートフォンからもこの物件をご覧になれます。
|
※「-」と表示されている項目については、情報提供会社にご確認ください。
| 周辺施設 |
ローソン仙台上杉五丁目店 |
| 距離 |
498m |
写真を見る |
| 周辺施設 |
ツルハドラッグ仙台上杉店 |
| 距離 |
139m |
写真を見る |
| 周辺施設 |
仙台上杉六郵便局 |
| 距離 |
151m |
写真を見る |
ここから簡単にお問い合わせをすることができます。
(SSLでの暗号化での送信を希望されるお客さまは
こちら
よりお問い合わせください)
お問い合わせを行う前に
「個人情報の取り扱いについて」を必ずお読みください。
「個人情報の取り扱いについて」に同意いただいた場合は「上記にご同意の上 確認画面へ進む」のボタンをクリックしてください。
個人情報の取り扱いについて
皆さまが送付された個人情報はアットホーム(株)のサーバを経由し、お問い合わせ先の不動産会社にメールまたはFAXにて転送されるためアットホーム(株)にも保管されます。アットホーム(株)で保管された個人情報の取り扱いについては、【こちら】をご覧ください。
また、本画面でご記入いただいた個人情報は、お問い合わせ先の不動産会社でも保管します。 お問い合わせ先の不動産会社が保管する個人情報の取り扱いについては、不動産会社に直接お問い合わせください。
宮城県知事免許(14)第1114号 |
|---|
- 交通:
- 仙台市南北線/広瀬通駅 徒歩12分
- 宮城県仙台市青葉区立町2-11
- TEL:
- 022-223-3456
- FAX:
- 022-211-5727
- 所属団体:
- (公社)宮城県宅地建物取引業協会会員東北地区不動産公正取引協議会加盟
取引態様:売主  - 20000740
|
- スマートフォンで
この不動産会社を見る

|
- 提携サイト等より掲載されている物件情報につきましては、不動産会社詳細情報にリンクされていないものがあります。
- 物件に関するお問合せは、物件詳細ページの「情報提供会社」に表示されている不動産会社へ直接お願いいたします。
- 間取図は、現況を優先させていただきます。
- 映像は物件の一部を撮影したものです。物件の契約にあたっての最終判断はご自身の判断に基づいて行ってください。
- 仲介手数料について

アットホームは物件情報の適正化に努めております。
内容に誤りがある場合にはこちらへご連絡ください。