山梨県笛吹市石和町川中島(石和温泉駅)の中古マンション・新築マンション・分譲マンション:物件詳細
交通 所在地 |
駅徒歩 |
価格 |
構造 階建/階 |
間取り 専有面積 |
物件種目 築年月 |
|
JR中央線/石和温泉
山梨県笛吹市石和町川中島
|
25分
|
650万円
|
SRC
10階建 / 4階
|
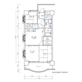
3DK
61.08m²
|
中古マンション
1988年6月(築37年7ヶ月)
|
|
南向き、外観タイル張り、管理人日勤
|
|
間取図
|
|
その他の画像
|
| 交通 | JR中央線 石和温泉駅 徒歩25分 |
|---|
| その他の交通 | JR中央線 春日居町駅 徒歩28分 |
| 所在地 |
山梨県笛吹市石和町川中島
|
| 物件種目 |
中古マンション |
| 価格 |
650万円 |
平米単価 |
10.65万円 |
| 管理費等 |
21,400円 |
修繕積立金 |
3,700円 |
| 借地期間・地代(月額) |
- |
権利金 |
- |
| 敷金または保証金 |
- / - |
維持費等 |
- |
| その他一時金 |
- |
|
|
| 間取り |
3DK(和 6 洋 6.5・4.5 DK 8.8) |
専有面積 |
61.08m²(壁芯) |
| 階建 / 階 |
10階建 / 4階 |
バルコニー |
9.82m² |
| 築年月 |
1988年6月(築37年7ヶ月)
|
建物構造 |
SRC |
| 駐車場 |
有 4,500円/月 |
総戸数 |
80戸 |
| 駐輪場 |
- |
バイク置き場 |
- |
| ペット |
-
|
|
|
| 土地権利 |
所有権 |
敷地面積 |
1,896.00m² |
| 管理形態/管理員の勤務形態 |
全部委託/日勤(日本ハウスィング) |
国土法届出 |
- |
| アピールポイント |
家族が帰宅を焦がれる3DK。是非その目でお確かめください。 |
| 建物名・部屋番号 |
リーヴル石和 |
| リフォーム履歴 |
- |
| リノベーション履歴 |
- |
| 瑕疵保証 |
- |
| 瑕疵保険 |
- |
| 評価・証明書 |
- |
| 備考 |
主要採光面:南向き
施工会社:長田土木株式会社
用途地域:商業地域
男女温泉大浴場あり
|
| エネルギー消費性能 |
- |
| 断熱性能 |
- |
| 目安光熱費 |
- |
| バス・トイレ |
- |
| キッチン |
- |
| 設備・サービス |
給湯、プロパンガス、ケーブルTV |
| その他 |
エレベーター2基以上 |
| 条件等 |
- |
現況 |
所有者居住中 |
| 引渡可能時期 |
相談 |
物件番号 |
6981298133 |
| 情報公開日 |
2025年10月18日 |
次回更新予定日 |
2025年12月18日 |
| ケータイ用バーコード |
- スマートフォンでこの物件を見る
- スマートフォンからもこの物件をご覧になれます。
|
※「-」と表示されている項目については、情報提供会社にご確認ください。
| 周辺施設 |
医療法人景雲会春日居総合リハビリテーション病院 |
| 距離 |
510m |
| 周辺施設 |
セブンイレブン笛吹春日居町小松店 |
| 距離 |
640m |
| 周辺施設 |
社会医療法人加納岩山梨リハビリテーション病院 |
| 距離 |
700m |
| 周辺施設 |
ツルハドラッグ笛吹春日居店 |
| 距離 |
829m |
| 周辺施設 |
セブンイレブン春日居温泉郷店 |
| 距離 |
823m |
ここから簡単にお問い合わせをすることができます。
(SSLでの暗号化での送信を希望されるお客さまは
こちら
よりお問い合わせください)
お問い合わせを行う前に
「個人情報の取り扱いについて」を必ずお読みください。
「個人情報の取り扱いについて」に同意いただいた場合は「上記にご同意の上 確認画面へ進む」のボタンをクリックしてください。
個人情報の取り扱いについて
皆さまが送付された個人情報はアットホーム(株)のサーバを経由し、お問い合わせ先の不動産会社にメールまたはFAXにて転送されるためアットホーム(株)にも保管されます。アットホーム(株)で保管された個人情報の取り扱いについては、【こちら】をご覧ください。
また、本画面でご記入いただいた個人情報は、お問い合わせ先の不動産会社でも保管します。 お問い合わせ先の不動産会社が保管する個人情報の取り扱いについては、不動産会社に直接お問い合わせください。
山梨県知事免許(17)第24号 |
|---|
- 交通:
- JR中央線/石和温泉駅 徒歩1分
- 山梨県笛吹市石和町駅前3-2
- TEL:
- 055-262-2222
- FAX:
- 055-263-0400
- 所属団体:
- (公社)山梨県宅地建物取引業協会会員(一社)全国賃貸不動産管理業協会会員(公社)首都圏不動産公正取引協議会加盟
取引態様:媒介  - 00110982
|
- スマートフォンで
この不動産会社を見る

|
- 提携サイト等より掲載されている物件情報につきましては、不動産会社詳細情報にリンクされていないものがあります。
- 物件に関するお問合せは、物件詳細ページの「情報提供会社」に表示されている不動産会社へ直接お願いいたします。
- 間取図は、現況を優先させていただきます。
- 映像は物件の一部を撮影したものです。物件の契約にあたっての最終判断はご自身の判断に基づいて行ってください。
- 仲介手数料について

アットホームは物件情報の適正化に努めております。
内容に誤りがある場合にはこちらへご連絡ください。