北海道札幌市豊平区月寒東一条10丁目(月寒中央駅)の中古マンション・新築マンション・分譲マンション:物件詳細
交通 所在地 |
駅徒歩 |
価格 |
構造 階建/階 |
間取り 専有面積 |
物件種目 築年月 |
|
札幌市東豊線/月寒中央
北海道札幌市豊平区月寒東一条10丁目
|
5分
|
3,880万円
|
RC
10階建 / 5階
|
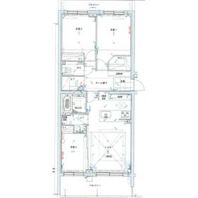
3LDK
69.06m²
|
中古マンション
オーナーチェンジ
2023年2月(築3年2ヶ月)
|
|
ペット相談、24時間換気システム、管理人日勤
|
|
間取図
|
|
<
その他の画像
>
|
| 交通 | 札幌市東豊線 月寒中央駅 徒歩5分 |
| 所在地 |
北海道札幌市豊平区月寒東一条10丁目
|
| 物件種目 |
中古マンション |
| 価格 |
3,880万円 |
平米単価 |
56.19万円 |
| 管理費等 |
12,420円 |
修繕積立金 |
4,310円 |
| 借地期間・地代(月額) |
- |
権利金 |
- |
| 敷金または保証金 |
- / - |
維持費等 |
- |
| その他一時金 |
- |
|
|
| 間取り |
3LDK |
専有面積 |
69.06m²(壁芯) |
| 階建 / 階 |
10階建 / 5階 |
バルコニー |
- |
| 築年月 |
2023年2月(築3年2ヶ月)
|
建物構造 |
RC |
| 駐車場 |
- |
総戸数 |
- |
| 駐輪場 |
有 |
バイク置き場 |
- |
| ペット |
規約あり |
|
|
| 土地権利 |
所有権 |
敷地面積 |
- |
| 管理形態/管理員の勤務形態 |
全部委託/日勤 |
国土法届出 |
- |
| アピールポイント |
開放的な気分に浸れる屋上庭園付、更にわざわざジムに通わなくても済むフィットネス施設完備だから、健康作りに一役買います。また初々しさが残る築2年以内の建物で、その上受け取りに心配なしの宅配BOX付なので、ネット通販大好き派にはお勧めです。ちなみに自宅とは気分を変えてワイワイ楽しめる共用パーティルーム完備です。家族が帰宅を焦がれる3LDK。実際の空間をご自身で体感ください。 |
| 建物名・部屋番号 |
グランファーレ月寒中央ロワイヤル |
| リフォーム履歴 |
- |
| リノベーション履歴 |
- |
| 瑕疵保証 |
- |
| 瑕疵保険 |
- |
| 評価・証明書 |
- |
| 備考 |
主要採光面:南東向き
利回り:5.25%
年間予定賃料収入:204万円
設備:上下水道、電気、プロパンガス
モニター付きインターホン、エレベーター、
オートロック、宅配BOX、24時間換気システム
浴室暖房乾燥機、食洗器付システムキッチン、リビング床暖房
|
| エネルギー消費性能 |
- |
| 断熱性能 |
- |
| 目安光熱費 |
- |
| バス・トイレ |
浴室乾燥機、シャワー付洗面化粧台、タンクレストイレ |
| キッチン |
カウンターキッチン、システムキッチン、食器洗浄乾燥機、3口以上コンロ |
| 設備・サービス |
床暖房、収納スペース、室内洗濯機置場、オートロック、モニター付インターホン、全居室フローリング、プロパンガス、エアコン、駐輪場 |
| その他 |
宅配BOX、ペット用施設、フィットネス施設、共用パーティルーム、屋上庭園、エレベーター |
| 条件等 |
オーナーチェンジ |
現況 |
賃貸中 |
| 引渡可能時期 |
相談 |
物件番号 |
6983160432 |
| 情報公開日 |
2025年9月10日 |
次回更新予定日 |
2026年3月30日 |
| ケータイ用バーコード |
- スマートフォンでこの物件を見る
- スマートフォンからもこの物件をご覧になれます。
|
※「-」と表示されている項目については、情報提供会社にご確認ください。
| 周辺施設 |
フードセンター月寒中央店 |
| 距離 |
399m |
| 周辺施設 |
セブンイレブン札幌月寒中央通店 |
| 距離 |
88m |
| 周辺施設 |
ローソン札幌月寒中央十一丁目店 |
| 距離 |
272m |
| 周辺施設 |
札幌市立あやめ野中学校 |
| 距離 |
1516m |
ここから簡単にお問い合わせをすることができます。
(SSLでの暗号化での送信を希望されるお客さまは
こちら
よりお問い合わせください)
お問い合わせを行う前に
「個人情報の取り扱いについて」を必ずお読みください。
「個人情報の取り扱いについて」に同意いただいた場合は「上記にご同意の上 確認画面へ進む」のボタンをクリックしてください。
個人情報の取り扱いについて
皆さまが送付された個人情報はアットホーム(株)のサーバを経由し、お問い合わせ先の不動産会社にメールまたはFAXにて転送されるためアットホーム(株)にも保管されます。アットホーム(株)で保管された個人情報の取り扱いについては、【こちら】をご覧ください。
また、本画面でご記入いただいた個人情報は、お問い合わせ先の不動産会社でも保管します。 お問い合わせ先の不動産会社が保管する個人情報の取り扱いについては、不動産会社に直接お問い合わせください。
北海道知事免許 石狩(4)第7777号 |
|---|
- 交通:
- JR函館本線/手稲駅 徒歩15分
- 北海道札幌市手稲区前田四条10丁目2-13
- TEL:
- 011-699-3232
- FAX:
- 011-695-9527
- 所属団体:
- (公社)全日本不動産協会会員(一社)北海道不動産公正取引協議会加盟
取引態様:一般媒介  - 10005151
|
- スマートフォンで
この不動産会社を見る

|
- 提携サイト等より掲載されている物件情報につきましては、不動産会社詳細情報にリンクされていないものがあります。
- 物件に関するお問合せは、物件詳細ページの「情報提供会社」に表示されている不動産会社へ直接お願いいたします。
- 間取図は、現況を優先させていただきます。
- 映像は物件の一部を撮影したものです。物件の契約にあたっての最終判断はご自身の判断に基づいて行ってください。
- 仲介手数料について

アットホームは物件情報の適正化に努めております。
内容に誤りがある場合にはこちらへご連絡ください。