愛知県名古屋市北区成願寺1丁目(黒川駅)の中古マンション・新築マンション・分譲マンション:物件詳細
交通 所在地 |
駅徒歩 |
価格 |
構造 階建/階 |
間取り 専有面積 |
物件種目 築年月 |
|
名古屋市名城線/黒川 [バス利用可] バス 市営バス「中切町4丁目」 停歩4分
愛知県名古屋市北区成願寺1丁目
|
32分
|
5,290万円
|
RC
43階建 / 42階
|
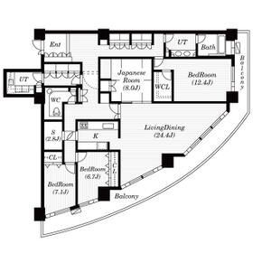
4SLDK
196.85m²
|
中古マンション
1996年3月(築30年)
|
|
ペット相談、フロントサービス、常時ゴミ出し可能、駐車場2台分、角部屋、南向き、バス1坪以上、2面採光、オール電化、前面棟無、隣接建物距離2m以上、管理人常駐
|
|
間取図
|
外観
|
<
その他の画像
>
|
| 交通 | 名古屋市名城線 黒川駅 徒歩32分 [バス利用可] バス 市営バス「中切町4丁目」 停歩4分 |
| 所在地 |
愛知県名古屋市北区成願寺1丁目
|
| 物件種目 |
中古マンション |
| 価格 |
5,290万円 |
平米単価 |
26.88万円 |
| 管理費等 |
31,300円 |
修繕積立金 |
13,900円 |
| 借地期間・地代(月額) |
- |
権利金 |
- |
| 敷金または保証金 |
- / - |
維持費等 |
町内会費:2,400円/年 |
| その他一時金 |
- |
|
|
| 間取り |
4SLDK(和 8 洋 7.1・6.7・12.4 LDK 24.4 S 2.8) |
専有面積 |
196.85m²(壁芯) |
| 階建 / 階 |
43階建 / 42階 |
バルコニー |
40.00m² |
| 築年月 |
1996年3月(築30年)
|
建物構造 |
RC |
| 駐車場 |
有 30,000円/月 |
総戸数 |
381戸 |
| 駐輪場 |
- |
バイク置き場 |
- |
| ペット |
相談 |
|
|
| 土地権利 |
所有権 |
敷地面積 |
- |
| 管理形態/管理員の勤務形態 |
全部委託/常駐(積村ビル管理株式会社) |
国土法届出 |
- |
| アピールポイント |
43階建て42階部分になります。東南角部屋のため、陽当り眺望良好です。名古屋市内が一望できます。敷地内地下に専用駐車場2台分あり、雨の日も濡れずにお部屋への行き来ができます。お部屋は196㎡あり、収納も十分の広さがございます。また、一部リフォーム済みですので、すぐにお住まいいただけます。ぜひ一度内覧ください。 |
| 建物名・部屋番号 |
ザ・シーン城北アストロタワー |
| リフォーム履歴 |
- |
| リノベーション履歴 |
- |
| 瑕疵保証 |
- |
| 瑕疵保険 |
- |
| 評価・証明書 |
- |
| 備考 |
主要採光面:南向き
用途地域:準工業
|
| エネルギー消費性能 |
- |
| 断熱性能 |
- |
| 目安光熱費 |
- |
| バス・トイレ |
浴室乾燥機、追焚機能、温水洗浄便座、浴室に窓あり |
| キッチン |
システムキッチン、食器洗浄乾燥機、IHクッキングヒーター |
| 設備・サービス |
モニター付オートロック、全居室収納、オートロック、モニター付インターホン、二面バルコニー |
| その他 |
宅配BOX、敷地内公園、エレベーター2基以上、内廊下 |
| 条件等 |
- |
現況 |
空家 |
| 引渡可能時期 |
即時 |
物件番号 |
6983166605 |
| 情報公開日 |
2026年1月20日 |
次回更新予定日 |
2026年2月17日 |
| ケータイ用バーコード |
- スマートフォンでこの物件を見る
- スマートフォンからもこの物件をご覧になれます。
|
※「-」と表示されている項目については、情報提供会社にご確認ください。
| 周辺施設 |
ファミリーマートZENT名古屋北店 |
| 距離 |
585m |
ここから簡単にお問い合わせをすることができます。
(SSLでの暗号化での送信を希望されるお客さまは
こちら
よりお問い合わせください)
お問い合わせを行う前に
「個人情報の取り扱いについて」を必ずお読みください。
「個人情報の取り扱いについて」に同意いただいた場合は「上記にご同意の上 確認画面へ進む」のボタンをクリックしてください。
個人情報の取り扱いについて
皆さまが送付された個人情報はアットホーム(株)のサーバを経由し、お問い合わせ先の不動産会社にメールまたはFAXにて転送されるためアットホーム(株)にも保管されます。アットホーム(株)で保管された個人情報の取り扱いについては、【こちら】をご覧ください。
また、本画面でご記入いただいた個人情報は、お問い合わせ先の不動産会社でも保管します。 お問い合わせ先の不動産会社が保管する個人情報の取り扱いについては、不動産会社に直接お問い合わせください。
愛知県知事免許(3)第22490号 |
|---|
- 交通:
- 名古屋市東山線/新栄町駅 徒歩13分
- 愛知県名古屋市中区新栄1丁目38-17
- TEL:
- 052-262-6662
- FAX:
- 052-262-6663
- 所属団体:
- (公社)全日本不動産協会会員東海不動産公正取引協議会加盟
取引態様:媒介  - 40411627
|
- スマートフォンで
この不動産会社を見る

|
- 提携サイト等より掲載されている物件情報につきましては、不動産会社詳細情報にリンクされていないものがあります。
- 物件に関するお問合せは、物件詳細ページの「情報提供会社」に表示されている不動産会社へ直接お願いいたします。
- 間取図は、現況を優先させていただきます。
- 映像は物件の一部を撮影したものです。物件の契約にあたっての最終判断はご自身の判断に基づいて行ってください。
- 仲介手数料について

アットホームは物件情報の適正化に努めております。
内容に誤りがある場合にはこちらへご連絡ください。