埼玉県川口市戸塚南4丁目(戸塚安行駅)の中古マンション・新築マンション・分譲マンション:物件詳細
交通 所在地 |
駅徒歩 |
価格 |
構造 階建/階 |
間取り 専有面積 |
物件種目 築年月 |
|
埼玉高速鉄道/戸塚安行
埼玉県川口市戸塚南4丁目
|
13分
|
3,280万円
|
RC
5階建 / 4階
|
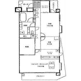
3LDK
92.30m²
|
中古マンション
2001年4月(築24年11ヶ月)
|
|
楽器相談、角部屋、バス1坪以上、2面採光、閑静な住宅街、外観タイル張り、前面棟無、管理人巡回、置き配スペース
|
|
間取図
|
外観
前面道路が10m以上で車の出し入れもしやすく、見晴らしの良い快適な環境です
|
<
その他の画像
>
|
| 交通 | 埼玉高速鉄道 戸塚安行駅 徒歩13分 |
|---|
| その他の交通 | JR武蔵野線 東川口駅 徒歩20分 |
| 所在地 |
埼玉県川口市戸塚南4丁目
|
| 物件種目 |
中古マンション |
| 価格 |
3,280万円 |
平米単価 |
35.54万円 |
| 管理費等 |
16,600円 |
修繕積立金 |
35,350円 |
| 借地期間・地代(月額) |
- |
権利金 |
- |
| 敷金または保証金 |
- / - |
維持費等 |
町内会費:400円/月 |
| その他一時金 |
なし |
|
|
| 間取り |
3LDK(和 6 洋 10・5) |
専有面積 |
92.30m²(壁芯) |
| 階建 / 階 |
5階建 / 4階 |
バルコニー |
22.95m² |
| 築年月 |
2001年4月(築24年11ヶ月)
|
建物構造 |
RC |
| 駐車場 |
有 8,000円/月 |
総戸数 |
- |
| 駐輪場 |
有 無料 |
バイク置き場 |
有 無料 |
| ペット |
-
|
|
|
| 土地権利 |
所有権 |
敷地面積 |
- |
| 管理形態/管理員の勤務形態 |
全部委託/巡回(株式会社レーベンコミュニティ) |
国土法届出 |
- |
| アピールポイント |
《仲介手数料無料、即入居可新規リフォーム物件》
オートロック、モニター付きインターホンなので防犯面も安心◎
。・renovation・。
キッチン、床材、ユニットバス、洗面化粧台、トイレ、収納
。・space・。
各部屋の収納スペースはもちろん、廊下収納や、洗面室にも収納あり。WICにはエコカラットを使用しています。充分な広さのある玄関前ポーチも魅力です。
。・room・。
■アクセントタイルを採用した広いリビング
□和室は快適性とデザイン性を兼ね備えた琉球畳を使用
■マンションには珍しい、10帖の広さがある寝室。間仕切り等の取り付けで4LDKへの間取り変更可能です。お気軽にご相談ください。
□風通し、日当たり共に◎
■奥行1.8mの広々としたバルコニーには多目的に使用できるスロップシンク
。・location・。
閑静な住宅街にあり、周辺道路も広く安心。
埼玉高速鉄道利用可能なので、都心へのアクセスも快適。通勤、通学もしやすく、
近隣にはスポーツセンターや、保育園、病院もあり、子育てのしやすい住環境です。
是非一度ご内覧にお越しください。お問い合わせお待ちしております。 |
| 建物名・部屋番号 |
レーベンリヴァーレ東川口 |
| リフォーム履歴 |
■水回り:2024年9月 キッチン、浴室、トイレ、洗面所、給湯器 ■内装:2024年9月 全室クロス張替え、床(フローリング等)、壁・天井(クロス・塗装等) ユニットバス交換、キッチン、給湯器、洗面化粧台、床フロアータイル、内装、タイル工事、その他 ※実施年月は最も古い履歴を表示 |
| リノベーション履歴 |
- |
| 瑕疵保証 |
- |
| 瑕疵保険 |
- |
| 評価・証明書 |
- |
| 備考 |
主要採光面:東向き
施工会社:埼玉健興株式会社
用途地域:1種中高、1種低層
修繕・点検の記録あり
|
| エネルギー消費性能 |
- |
| 断熱性能 |
- |
| 目安光熱費 |
- |
| バス・トイレ |
浴室乾燥機、オートバス、追焚機能、シャワー付洗面化粧台、温水洗浄便座、浴室に窓あり |
| キッチン |
カウンターキッチン、システムキッチン、食器洗浄乾燥機、浄水器、3口以上コンロ |
| 設備・サービス |
モニター付オートロック、全居室収納、ウォークインクローゼット、バイク置き場、三面バルコニー、収納スペース、室内洗濯機置場、クローゼット、オートロック、モニター付インターホン、ディンプルキー、洗濯機置場、給湯、出窓、都市ガス、駐輪場、ダウンライト、照明器具、火災警報器(報知機) |
| その他 |
宅配BOX、エレベーター |
| 条件等 |
- |
現況 |
完成済 |
| 引渡可能時期 |
即時 |
物件番号 |
6983329829 |
| 仲介手数料 |
不要 |
|
|
| 情報公開日 |
2025年10月13日 |
次回更新予定日 |
2026年2月12日 |
| ケータイ用バーコード |
- スマートフォンでこの物件を見る
- スマートフォンからもこの物件をご覧になれます。
|
※「-」と表示されている項目については、情報提供会社にご確認ください。
| 周辺施設 |
戸塚スポーツセンター |
| 距離 |
200m |
写真を見る |
| 周辺施設 |
オリンピック |
| 距離 |
700m |
写真を見る |
| 周辺施設 |
戸塚南小学校 |
| 距離 |
400m |
写真を見る |
| 周辺施設 |
ドラックセイムス |
| 距離 |
750m |
写真を見る |
ここから簡単にお問い合わせをすることができます。
(SSLでの暗号化での送信を希望されるお客さまは
こちら
よりお問い合わせください)
お問い合わせを行う前に
「個人情報の取り扱いについて」を必ずお読みください。
「個人情報の取り扱いについて」に同意いただいた場合は「上記にご同意の上 確認画面へ進む」のボタンをクリックしてください。
個人情報の取り扱いについて
皆さまが送付された個人情報はアットホーム(株)のサーバを経由し、お問い合わせ先の不動産会社にメールまたはFAXにて転送されるためアットホーム(株)にも保管されます。アットホーム(株)で保管された個人情報の取り扱いについては、【こちら】をご覧ください。
また、本画面でご記入いただいた個人情報は、お問い合わせ先の不動産会社でも保管します。 お問い合わせ先の不動産会社が保管する個人情報の取り扱いについては、不動産会社に直接お問い合わせください。
埼玉県知事免許(7)第17350号 |
|---|
- 交通:
- JR武蔵野線/東浦和駅 徒歩1分
- 埼玉県さいたま市緑区東浦和1丁目14-8 フォレナ東浦和103
- TEL:
- 048-711-4550
- FAX:
- 048-711-4550
- 所属団体:
- (公社)埼玉県宅地建物取引業協会会員(公社)首都圏不動産公正取引協議会加盟
取引態様:売主  - 00277902
|
- スマートフォンで
この不動産会社を見る

|
- 提携サイト等より掲載されている物件情報につきましては、不動産会社詳細情報にリンクされていないものがあります。
- 物件に関するお問合せは、物件詳細ページの「情報提供会社」に表示されている不動産会社へ直接お願いいたします。
- 間取図は、現況を優先させていただきます。
- 映像は物件の一部を撮影したものです。物件の契約にあたっての最終判断はご自身の判断に基づいて行ってください。
- 仲介手数料について

アットホームは物件情報の適正化に努めております。
内容に誤りがある場合にはこちらへご連絡ください。