長崎県佐世保市栄町(佐世保中央駅)の中古マンション・新築マンション・分譲マンション:物件詳細
交通 所在地 |
駅徒歩 |
価格 |
構造 階建/階 |
間取り 専有面積 |
物件種目 築年月 |
|
松浦鉄道西九州線/佐世保中央
長崎県佐世保市栄町
|
4分
|
4,900万円
|
RC
16階建 / 13階
|
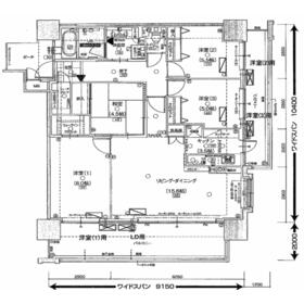
3LDK
91.70m²
|
中古マンション
2013年5月(築12年6ヶ月)
|
|
バス1坪以上、外観タイル張り、管理人日勤
|
|
間取図
|
|
<
その他の画像
>
|
| 交通 | 松浦鉄道西九州線 佐世保中央駅 徒歩4分 |
| 所在地 |
長崎県佐世保市栄町
|
| 物件種目 |
中古マンション |
| 価格 |
4,900万円 |
平米単価 |
53.44万円 |
| 管理費等 |
14,900円 |
修繕積立金 |
17,600円 |
| 借地期間・地代(月額) |
- |
権利金 |
- |
| 敷金または保証金 |
- / - |
維持費等 |
- |
| その他一時金 |
町費:500円 |
|
|
| 間取り |
3LDK(和 4.5 洋 5.5・5 LDK 27.1) |
専有面積 |
91.70m²(壁芯) |
| 階建 / 階 |
16階建 / 13階 |
バルコニー |
25.40m² |
| 築年月 |
2013年5月(築12年6ヶ月)
|
建物構造 |
RC |
| 駐車場 |
有 9,000円/月 |
総戸数 |
70戸 |
| 駐輪場 |
- |
バイク置き場 |
- |
| ペット |
-
|
|
|
| 土地権利 |
所有権 |
敷地面積 |
- |
| 管理形態/管理員の勤務形態 |
全部委託/日勤(総合システム管理株式会社) |
国土法届出 |
- |
| アピールポイント |
防犯カメラ設置済、更に耐久性が美観を維持する外観タイル張りなので、風合いが色褪せません。また広々とした延床面積91.7㎡の居室空間で、その上不在時の受け取りも楽々の宅配BOX付なので、ネット通販大好き派にはお勧めです。ちなみに配膳がラクなカウンターキッチン付です。自然に団らんが生まれる3LDK。是非見学にお越しください。※只今商談中 |
| 建物名・部屋番号 |
|
| リフォーム履歴 |
- |
| リノベーション履歴 |
- |
| 瑕疵保証 |
- |
| 瑕疵保険 |
- |
| 評価・証明書 |
- |
| 備考 |
主要採光面:南西向き
用途地域:商業地域
佐世保三ヶ町アーケードに隣接する高層マンション登場!買物・交通・病院・医療・文教全てがココにあります!子育て世代から高齢者まであらゆるニーズにお応えできるマンション!またバルコニーからの眺望は自然豊かな佐世保の街を一望できます。まずはご予約の上ご内見下さい!※管理費・修繕積立金の合計は33,000円/月額(内訳詳細)①全体(管理費6,400円/修繕積立金7,200円)②住宅(管理費8,500円/修繕積立金10,400円)③町費500円※只今商談中
|
| エネルギー消費性能 |
- |
| 断熱性能 |
- |
| 目安光熱費 |
- |
| バス・トイレ |
浴室乾燥機、追焚機能、シャワー付洗面化粧台 |
| キッチン |
カウンターキッチン、3口以上コンロ |
| 設備・サービス |
室内洗濯機置場、オートロック、モニター付インターホン、防犯カメラ、都市ガス、エアコン、二面バルコニー |
| その他 |
宅配BOX、エレベーター2基以上 |
| 条件等 |
- |
現況 |
所有者居住中 |
| 引渡可能時期 |
相談 |
物件番号 |
6983669326 |
| 情報公開日 |
2025年8月22日 |
次回更新予定日 |
2025年10月31日 |
| ケータイ用バーコード |
- スマートフォンでこの物件を見る
- スマートフォンからもこの物件をご覧になれます。
|
※「-」と表示されている項目については、情報提供会社にご確認ください。
| 周辺施設 |
トラストパーク |
| 距離 |
10m |
写真を見る |
| 周辺施設 |
三ヶ町アーケード |
| 距離 |
10m |
写真を見る |
| 周辺施設 |
三ヶ町アーケード |
| 距離 |
10m |
写真を見る |
| 周辺施設 |
三ヶ町アーケード |
| 距離 |
10m |
写真を見る |
| 周辺施設 |
佐世保市役所 |
| 距離 |
780m |
写真を見る |
ここから簡単にお問い合わせをすることができます。
(SSLでの暗号化での送信を希望されるお客さまは
こちら
よりお問い合わせください)
お問い合わせを行う前に
「個人情報の取り扱いについて」を必ずお読みください。
「個人情報の取り扱いについて」に同意いただいた場合は「上記にご同意の上 確認画面へ進む」のボタンをクリックしてください。
個人情報の取り扱いについて
皆さまが送付された個人情報はアットホーム(株)のサーバを経由し、お問い合わせ先の不動産会社にメールまたはFAXにて転送されるためアットホーム(株)にも保管されます。アットホーム(株)で保管された個人情報の取り扱いについては、【こちら】をご覧ください。
また、本画面でご記入いただいた個人情報は、お問い合わせ先の不動産会社でも保管します。 お問い合わせ先の不動産会社が保管する個人情報の取り扱いについては、不動産会社に直接お問い合わせください。
長崎県知事免許(6)第2978号 |
|---|
- 交通:
- JR佐世保線/佐世保駅 徒歩2分
- 長崎県佐世保市三浦町1-12 ボヌール・シャンスⅢ1F
- TEL:
- 0956-24-7110
- FAX:
- 0956-24-7151
- 所属団体:
- (公社)長崎県宅地建物取引業協会会員(一社)九州不動産公正取引協議会加盟
取引態様:専任媒介  - 80500278
|
- スマートフォンで
この不動産会社を見る

|
- 提携サイト等より掲載されている物件情報につきましては、不動産会社詳細情報にリンクされていないものがあります。
- 物件に関するお問合せは、物件詳細ページの「情報提供会社」に表示されている不動産会社へ直接お願いいたします。
- 間取図は、現況を優先させていただきます。
- 映像は物件の一部を撮影したものです。物件の契約にあたっての最終判断はご自身の判断に基づいて行ってください。
- 仲介手数料について

アットホームは物件情報の適正化に努めております。
内容に誤りがある場合にはこちらへご連絡ください。