長崎県長崎市錦1丁目(西浦上駅)の中古マンション・新築マンション・分譲マンション:物件詳細
交通 所在地 |
駅徒歩 |
価格 |
構造 階建/階 |
間取り 専有面積 |
物件種目 築年月 |
|
JR長崎本線/西浦上 [バス利用可] バス 南柳谷 停歩5分
長崎県長崎市錦1丁目
|
9分
|
1,080万円
|
RC
5階建 / 3階
|
4LDK
85.00m²
|
中古マンション
1997年9月(築28年9ヶ月)
|
|
角部屋、3面採光、閑静な住宅街、外観タイル張り、管理人日勤
|
|
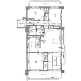
間取図
スタンダードで使いやすい、採光・風通しもよい間取りです
|
外観
新生活のステージ。幕開けはここから
|
<
その他の画像
>
|
| 交通 | JR長崎本線 西浦上駅 徒歩9分 [バス利用可] バス 南柳谷 停歩5分 |
| 所在地 |
長崎県長崎市錦1丁目
|
| 物件種目 |
中古マンション |
| 価格 |
1,080万円 |
平米単価 |
12.71万円 |
| 管理費等 |
16,200円 |
修繕積立金 |
22,800円 |
| 借地期間・地代(月額) |
- |
権利金 |
- |
| 敷金または保証金 |
- / - |
維持費等 |
- |
| その他一時金 |
- |
|
|
| 間取り |
4LDK(和 6 洋 7・5.4・5.2 LDK 16.5) |
専有面積 |
85.00m²(壁芯) |
| 階建 / 階 |
5階建 / 3階 |
バルコニー |
18.47m² |
| 築年月 |
1997年9月(築28年9ヶ月)
|
建物構造 |
RC |
| 駐車場 |
有 5,000円/月 |
総戸数 |
19戸 |
| 駐輪場 |
有 無料 |
バイク置き場 |
有 無料 |
| ペット |
-
|
|
|
| 土地権利 |
所有権 |
敷地面積 |
982.15m² |
| 管理形態/管理員の勤務形態 |
全部委託/日勤(株式会社パートナーズ) |
国土法届出 |
- |
| アピールポイント |
閑静な住宅街の住戸、更に太陽光を招き入れる3面採光のとれる住戸です。また広々とした延床面積85.0㎡の居室空間で、その上食後お皿を下げるのもスムーズなカウンターキッチン仕様なので、食後の片付けも楽ちんです。ちなみに一度に複数のおかず作りを同時進行できるコンロ3口以上付です。家族みんなのワガママにも応える4LDK。実際の空間をご自身で体感ください。 |
| 建物名・部屋番号 |
コアマンション住吉グランヒルズ |
| リフォーム履歴 |
- |
| リノベーション履歴 |
- |
| 瑕疵保証 |
- |
| 瑕疵保険 |
- |
| 評価・証明書 |
- |
| 備考 |
主要採光面:南東向き
施工会社:九鉄工業
用途地域:1種中高
|
| エネルギー消費性能 |
- |
| 断熱性能 |
- |
| 目安光熱費 |
- |
| バス・トイレ |
高温差湯式、温水洗浄便座 |
| キッチン |
カウンターキッチン、システムキッチン、3口以上コンロ |
| 設備・サービス |
全居室収納、バイク置き場、室内洗濯機置場、クローゼット、モニター付インターホン、都市ガス、二面バルコニー、駐輪場、人感センサー付照明、照明器具、火災警報器(報知機)、ケーブルTV |
| その他 |
エレベーター |
| 条件等 |
- |
現況 |
空家 |
| 引渡可能時期 |
即時 |
物件番号 |
6983701139 |
| 仲介手数料 |
売買代金の3.3%+6.6万円 |
|
|
| 情報公開日 |
2026年5月11日 |
次回更新予定日 |
2026年5月25日 |
| ケータイ用バーコード |
- スマートフォンでこの物件を見る
- スマートフォンからもこの物件をご覧になれます。
|
※「-」と表示されている項目については、情報提供会社にご確認ください。
| 周辺施設 |
ファミリーマート長崎清水町店 |
| 距離 |
783m |
| 周辺施設 |
長崎市チトセピアホール |
| 距離 |
1021m |
ここから簡単にお問い合わせをすることができます。
(SSLでの暗号化での送信を希望されるお客さまは
こちら
よりお問い合わせください)
お問い合わせを行う前に
「個人情報の取り扱いについて」を必ずお読みください。
「個人情報の取り扱いについて」に同意いただいた場合は「上記にご同意の上 確認画面へ進む」のボタンをクリックしてください。
個人情報の取り扱いについて
皆さまが送付された個人情報はアットホーム(株)のサーバを経由し、お問い合わせ先の不動産会社にメールまたはFAXにて転送されるためアットホーム(株)にも保管されます。アットホーム(株)で保管された個人情報の取り扱いについては、【こちら】をご覧ください。
また、本画面でご記入いただいた個人情報は、お問い合わせ先の不動産会社でも保管します。 お問い合わせ先の不動産会社が保管する個人情報の取り扱いについては、不動産会社に直接お問い合わせください。
長崎県知事免許(3)第3795号 |
|---|
- 交通:
- 【バス】 城栄町 停歩1分
- 長崎県長崎市城栄町12-11
- TEL:
- 095-865-7581
- FAX:
- 095-865-7582
- 所属団体:
- (公社)長崎県宅地建物取引業協会会員(一社)九州不動産公正取引協議会加盟
取引態様:一般媒介  - 80501237
|
- スマートフォンで
この不動産会社を見る

|
- 提携サイト等より掲載されている物件情報につきましては、不動産会社詳細情報にリンクされていないものがあります。
- 物件に関するお問合せは、物件詳細ページの「情報提供会社」に表示されている不動産会社へ直接お願いいたします。
- 間取図は、現況を優先させていただきます。
- 映像は物件の一部を撮影したものです。物件の契約にあたっての最終判断はご自身の判断に基づいて行ってください。
- 仲介手数料について

アットホームは物件情報の適正化に努めております。
内容に誤りがある場合にはこちらへご連絡ください。