栃木県小山市駅東通り1丁目(小山駅)の中古マンション・新築マンション・分譲マンション:物件詳細
交通 所在地 |
駅徒歩 |
価格 |
構造 階建/階 |
間取り 専有面積 |
物件種目 築年月 |
|
湘南新宿ライン(宇都宮〜逗子)/小山
栃木県小山市駅東通り1丁目
|
5分
|
2,100万円
|
RC
14階建 / 11階
|
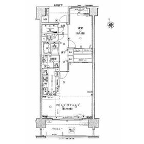
1LDK
65.02m²
|
中古マンション
オーナーチェンジ
2007年8月(築18年10ヶ月)
|
|
駐車場2台分、南向き、管理人常駐
|
|
間取図
|
外観
|
その他の画像
|
| 交通 | 湘南新宿ライン(宇都宮〜逗子) 小山駅 徒歩5分 |
| 所在地 |
栃木県小山市駅東通り1丁目
|
| 物件種目 |
中古マンション |
| 価格 |
2,100万円 |
平米単価 |
32.30万円 |
| 管理費等 |
10,000円 |
修繕積立金 |
9,110円 |
| 借地期間・地代(月額) |
- |
権利金 |
- |
| 敷金または保証金 |
- / - |
維持費等 |
- |
| その他一時金 |
- |
|
|
| 間取り |
1LDK(洋 7) |
専有面積 |
65.02m²(壁芯) |
| 階建 / 階 |
14階建 / 11階 |
バルコニー |
- |
| 築年月 |
2007年8月(築18年10ヶ月)
|
建物構造 |
RC |
| 駐車場 |
有 4,000円/月 |
総戸数 |
- |
| 駐輪場 |
- |
バイク置き場 |
- |
| ペット |
-
|
|
|
| 土地権利 |
所有権 |
敷地面積 |
1,609.00m² |
| 管理形態/管理員の勤務形態 |
全部委託/常駐(日本ハウズィング株式会社) |
国土法届出 |
- |
| アピールポイント |
オーナーチェンジ売マンションで、現在賃貸中です。南向きLDK広々とした20畳、バルコニーも広く、11階なので陽当り・眺望とも良好です!小山駅徒歩5分と通勤通学に便利、おススメです! |
| 建物名・部屋番号 |
アンビックス小山グランテムスクエア11階 |
| リフォーム履歴 |
■その他:2011年8月 東日本大震災による外壁補修工事(13階~14階) ※実施年月は最も古い履歴を表示 |
| リノベーション履歴 |
- |
| 瑕疵保証 |
- |
| 瑕疵保険 |
- |
| 評価・証明書 |
- |
| 備考 |
他所在地:栃木県小山市駅東り1丁目72番地2
主要採光面:南向き
施工会社:風越建設株式会社
用途地域:商業地域
利回り:6.60%
年間予定賃料収入:130.8万円
現在、駐車場2000円×2台賃貸中。
|
| エネルギー消費性能 |
- |
| 断熱性能 |
- |
| 目安光熱費 |
- |
| バス・トイレ |
浴室乾燥機、追焚機能、シャワー付洗面化粧台、シャワールーム、温水洗浄便座 |
| キッチン |
食器洗浄乾燥機、3口以上コンロ |
| 設備・サービス |
室内洗濯機置場、オートロック、防犯カメラ、都市ガス、CATVインターネット、ケーブルTV、CS、BS端子 |
| その他 |
宅配BOX、ペット用施設、敷地内AED有、エレベーター |
| 条件等 |
オーナーチェンジ |
現況 |
賃貸中 |
| 引渡可能時期 |
即時 |
物件番号 |
6984641396 |
| 仲介手数料 |
売買代金の3%+6万円 |
|
|
| 情報公開日 |
2025年1月14日 |
次回更新予定日 |
2026年6月12日 |
| ケータイ用バーコード |
- スマートフォンでこの物件を見る
- スマートフォンからもこの物件をご覧になれます。
|
※「-」と表示されている項目については、情報提供会社にご確認ください。
| 周辺施設 |
セブンイレブン白鴎大学本キャンパス店 |
| 距離 |
382m |
| 周辺施設 |
中華食堂日高屋バル小山店 |
| 距離 |
382m |
| 周辺施設 |
スターバックスコーヒーヴァル小山店 |
| 距離 |
382m |
| 周辺施設 |
ニコニコレンタカー小山駅前店 |
| 距離 |
146m |
| 周辺施設 |
私立白鴎大学本キャンパス |
| 距離 |
380m |
ここから簡単にお問い合わせをすることができます。
(SSLでの暗号化での送信を希望されるお客さまは
こちら
よりお問い合わせください)
お問い合わせを行う前に
「個人情報の取り扱いについて」を必ずお読みください。
「個人情報の取り扱いについて」に同意いただいた場合は「上記にご同意の上 確認画面へ進む」のボタンをクリックしてください。
個人情報の取り扱いについて
皆さまが送付された個人情報はアットホーム(株)のサーバを経由し、お問い合わせ先の不動産会社にメールまたはFAXにて転送されるためアットホーム(株)にも保管されます。アットホーム(株)で保管された個人情報の取り扱いについては、【こちら】をご覧ください。
また、本画面でご記入いただいた個人情報は、お問い合わせ先の不動産会社でも保管します。 お問い合わせ先の不動産会社が保管する個人情報の取り扱いについては、不動産会社に直接お問い合わせください。
栃木県知事免許(1)第5437号 |
|---|
- 交通:
- 湘南新宿ライン(宇都宮〜逗子)/小山駅 徒歩60分
- 栃木県小山市大字横倉新田309-4
- TEL:
- 0285-37-9403
- FAX:
- 0285-37-9404
- 所属団体:
- (公社)栃木県宅地建物取引業協会会員(公社)首都圏不動産公正取引協議会加盟
取引態様:専任媒介  - 00278283
|
- スマートフォンで
この不動産会社を見る

|
- 提携サイト等より掲載されている物件情報につきましては、不動産会社詳細情報にリンクされていないものがあります。
- 物件に関するお問合せは、物件詳細ページの「情報提供会社」に表示されている不動産会社へ直接お願いいたします。
- 間取図は、現況を優先させていただきます。
- 映像は物件の一部を撮影したものです。物件の契約にあたっての最終判断はご自身の判断に基づいて行ってください。
- 仲介手数料について

アットホームは物件情報の適正化に努めております。
内容に誤りがある場合にはこちらへご連絡ください。