大阪府大阪市中央区南船場1丁目(長堀橋駅)の中古マンション・新築マンション・分譲マンション:物件詳細
交通 所在地 |
駅徒歩 |
価格 |
構造 階建/階 |
間取り 専有面積 |
物件種目 築年月 |
|
地下鉄堺筋線/長堀橋
大阪府大阪市中央区南船場1丁目
|
5分
|
2,980万円
|
RC
15階建 / 10階
|
1K
30.67m²
|
中古マンション
オーナーチェンジ
2019年6月(築6年5ヶ月)
|
|
ペット相談、事務所使用可、バリアフリー、外観タイル張り、管理人巡回
|
|
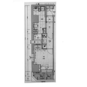
間取図
|
|
その他の画像
|
| 交通 | 地下鉄堺筋線 長堀橋駅 徒歩5分 |
|---|
| その他の交通 | 地下鉄長堀鶴見緑地線 長堀橋駅 徒歩5分 |
| 所在地 |
大阪府大阪市中央区南船場1丁目
|
| 物件種目 |
中古マンション |
| 価格 |
2,980万円 |
平米単価 |
97.17万円 |
| 管理費等 |
11,030円 |
修繕積立金 |
3,070円 |
| 借地期間・地代(月額) |
- |
権利金 |
- |
| 敷金または保証金 |
- / - |
維持費等 |
- |
| その他一時金 |
- |
|
|
| 間取り |
1K |
専有面積 |
30.67m²(壁芯) |
| 階建 / 階 |
15階建 / 10階 |
バルコニー |
4.26m² |
| 築年月 |
2019年6月(築6年5ヶ月)
|
建物構造 |
RC |
| 駐車場 |
- |
総戸数 |
42戸 |
| 駐輪場 |
- |
バイク置き場 |
- |
| ペット |
小型犬可・ 猫可 |
|
|
| 土地権利 |
所有権 |
敷地面積 |
- |
| 管理形態/管理員の勤務形態 |
全部委託/巡回 |
国土法届出 |
- |
| 建物名・部屋番号 |
リーガル南船場Ⅲ |
| リフォーム履歴 |
- |
| リノベーション履歴 |
- |
| 瑕疵保証 |
- |
| 瑕疵保険 |
- |
| 評価・証明書 |
- |
| 備考 |
主要採光面:西向き
施工会社:株式会社かねわ工務店
利回り:2.94%
年間予定賃料収入:87.63万円
|
| エネルギー消費性能 |
- |
| 断熱性能 |
- |
| 目安光熱費 |
- |
| バス・トイレ |
TV付浴室、ミストサウナ、浴室暖房、浴室乾燥機、オートバス、追焚機能、シャワー付洗面化粧台、温水洗浄便座、浴室に窓あり |
| キッチン |
システムキッチン、2口コンロ |
| 設備・サービス |
モニター付オートロック、全居室収納、収納スペース、室内洗濯機置場、シューズインクローゼット、クローゼット、オートロック、モニター付インターホン、ディンプルキー、ダブルロックドア、都市ガス、エアコン、インターネット対応、光ファイバー |
| その他 |
宅配BOX、エレベーター |
| 条件等 |
オーナーチェンジ |
現況 |
賃貸中 |
| 引渡可能時期 |
相談 |
物件番号 |
6984861592 |
| 情報公開日 |
2025年10月3日 |
次回更新予定日 |
2025年10月24日 |
| ケータイ用バーコード |
- スマートフォンでこの物件を見る
- スマートフォンからもこの物件をご覧になれます。
|
※「-」と表示されている項目については、情報提供会社にご確認ください。
| 周辺施設 |
大阪市立中央スポーツセンター |
| 距離 |
600m |
ここから簡単にお問い合わせをすることができます。
(SSLでの暗号化での送信を希望されるお客さまは
こちら
よりお問い合わせください)
お問い合わせを行う前に
「個人情報の取り扱いについて」を必ずお読みください。
「個人情報の取り扱いについて」に同意いただいた場合は「上記にご同意の上 確認画面へ進む」のボタンをクリックしてください。
個人情報の取り扱いについて
皆さまが送付された個人情報はアットホーム(株)のサーバを経由し、お問い合わせ先の不動産会社にメールまたはFAXにて転送されるためアットホーム(株)にも保管されます。アットホーム(株)で保管された個人情報の取り扱いについては、【こちら】をご覧ください。
また、本画面でご記入いただいた個人情報は、お問い合わせ先の不動産会社でも保管します。 お問い合わせ先の不動産会社が保管する個人情報の取り扱いについては、不動産会社に直接お問い合わせください。
大阪府知事免許(4)第53498号 |
|---|
- 交通:
- 地下鉄四つ橋線/肥後橋駅 徒歩3分
- 大阪府大阪市西区京町堀1丁目10-21 ハート京町堀1F
- TEL:
- 06-6444-1280
- FAX:
- 06-6444-1286
- 所属団体:
- (一社)大阪府宅地建物取引業協会会員(公社)近畿地区不動産公正取引協議会加盟
取引態様:媒介  - 50019538
|
- スマートフォンで
この不動産会社を見る

|
- 提携サイト等より掲載されている物件情報につきましては、不動産会社詳細情報にリンクされていないものがあります。
- 物件に関するお問合せは、物件詳細ページの「情報提供会社」に表示されている不動産会社へ直接お願いいたします。
- 間取図は、現況を優先させていただきます。
- 映像は物件の一部を撮影したものです。物件の契約にあたっての最終判断はご自身の判断に基づいて行ってください。
- 仲介手数料について

アットホームは物件情報の適正化に努めております。
内容に誤りがある場合にはこちらへご連絡ください。