東京都文京区白山1丁目(春日駅)の中古マンション・新築マンション・分譲マンション:物件詳細
交通 所在地 |
駅徒歩 |
価格 |
構造 階建/階 |
間取り 専有面積 |
物件種目 築年月 |
|
都営三田線/春日
東京都文京区白山1丁目
|
5分
|
4,080万円
|
RC
5階建 / 4階
|
1LDK
38.46m²
|
中古マンション
1982年4月(築43年7ヶ月)
|
|
常時ゴミ出し可能、角部屋、2面採光、閑静な住宅街、管理人巡回
|
|
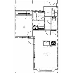
間取図
使いやすい1LDKの間取り
|
外観
タイル貼りの外観
|
<
その他の画像
>
|
| 交通 | 都営三田線 春日駅 徒歩5分 |
|---|
| その他の交通 | 東京メトロ丸ノ内線 後楽園駅 徒歩10分 都営大江戸線 春日駅 徒歩9分 |
| 所在地 |
東京都文京区白山1丁目
|
| 物件種目 |
中古マンション |
| 価格 |
4,080万円 |
平米単価 |
106.09万円 |
| 管理費等 |
10,400円 |
修繕積立金 |
9,400円 |
| 借地期間・地代(月額) |
- |
権利金 |
- |
| 敷金または保証金 |
- / - |
維持費等 |
- |
| その他一時金 |
- |
|
|
| 間取り |
1LDK |
専有面積 |
38.46m²(壁芯) |
| 階建 / 階 |
5階建 / 4階 |
バルコニー |
3.28m² |
| 築年月 |
1982年4月(築43年7ヶ月)
|
建物構造 |
RC |
| 駐車場 |
- |
総戸数 |
24戸 |
| 駐輪場 |
- |
バイク置き場 |
- |
| ペット |
-
|
|
|
| 土地権利 |
所有権 |
敷地面積 |
- |
| 管理形態/管理員の勤務形態 |
全部委託/巡回(キャニオンサービス株式会社) |
国土法届出 |
- |
| アピールポイント |
■人気の文京区白山1丁目エリア
■再開発が進む都営三田線「春日」駅 徒歩5分の好立地
■4駅4路線が全て徒歩圏の好アクセス
■白山通りより少し奥まってるので閑静な住環境を保てる好立地
■安心安全の新耐震基準
■北西角部屋で日当たり良好
■2面採光のため風通しも良好な室内
■フルリノベーション完成(2025年7月)
空室のためいつでも内見可能です
不動産全般のご質問・ご不安な点もサポートさせていただきます。
お気軽に担当【高垣】までお問い合わせください。 |
| 建物名・部屋番号 |
キャニオンマンション文京西片 |
| リフォーム履歴 |
- |
| リノベーション履歴 |
- |
| 瑕疵保証 |
- |
| 瑕疵保険 |
- |
| 評価・証明書 |
- |
| 備考 |
主要採光面:北西向き
間取り図はリノベーション完成後の間取り図です。
|
| エネルギー消費性能 |
- |
| 断熱性能 |
- |
| 目安光熱費 |
- |
| バス・トイレ |
- |
| キッチン |
- |
| 設備・サービス |
- |
| その他 |
エレベーター |
| 条件等 |
- |
現況 |
空家 |
| 引渡可能時期 |
相談 |
物件番号 |
6984922289 |
| 情報公開日 |
2025年10月23日 |
次回更新予定日 |
2025年11月6日 |
| ケータイ用バーコード |
- スマートフォンでこの物件を見る
- スマートフォンからもこの物件をご覧になれます。
|
※「-」と表示されている項目については、情報提供会社にご確認ください。
| 周辺施設 |
クイーンズ伊勢丹小石川店 |
| 距離 |
273m |
| 周辺施設 |
まいばすけっと西片1丁目店 |
| 距離 |
250m |
| 周辺施設 |
セブンイレブン小石川白山通り店 |
| 距離 |
186m |
| 周辺施設 |
一般財団法人慈愛会慈愛病院 |
| 距離 |
482m |
ここから簡単にお問い合わせをすることができます。
(SSLでの暗号化での送信を希望されるお客さまは
こちら
よりお問い合わせください)
お問い合わせを行う前に
「個人情報の取り扱いについて」を必ずお読みください。
「個人情報の取り扱いについて」に同意いただいた場合は「上記にご同意の上 確認画面へ進む」のボタンをクリックしてください。
個人情報の取り扱いについて
皆さまが送付された個人情報はアットホーム(株)のサーバを経由し、お問い合わせ先の不動産会社にメールまたはFAXにて転送されるためアットホーム(株)にも保管されます。アットホーム(株)で保管された個人情報の取り扱いについては、【こちら】をご覧ください。
また、本画面でご記入いただいた個人情報は、お問い合わせ先の不動産会社でも保管します。 お問い合わせ先の不動産会社が保管する個人情報の取り扱いについては、不動産会社に直接お問い合わせください。
神奈川県知事免許(2)第30887号 |
|---|
- 交通:
- 横浜高速鉄道みなとみらい線/日本大通り駅 徒歩3分
- 神奈川県横浜市中区日本大通52番地
- TEL:
- 045-226-3025
- 所属団体:
- (公社)神奈川県宅地建物取引業協会会員(公社)首都圏不動産公正取引協議会加盟
取引態様:専任媒介  - 00275290
|
- スマートフォンで
この不動産会社を見る

|
- 提携サイト等より掲載されている物件情報につきましては、不動産会社詳細情報にリンクされていないものがあります。
- 物件に関するお問合せは、物件詳細ページの「情報提供会社」に表示されている不動産会社へ直接お願いいたします。
- 間取図は、現況を優先させていただきます。
- 映像は物件の一部を撮影したものです。物件の契約にあたっての最終判断はご自身の判断に基づいて行ってください。
- 仲介手数料について

アットホームは物件情報の適正化に努めております。
内容に誤りがある場合にはこちらへご連絡ください。