埼玉県富士見市大字鶴馬(鶴瀬駅)の中古マンション・新築マンション・分譲マンション:物件詳細
交通 所在地 |
駅徒歩 |
価格 |
構造 階建/階 |
間取り 専有面積 |
物件種目 築年月 |
|
東武東上線/鶴瀬
埼玉県富士見市大字鶴馬
|
5分
|
700万円
|
RC
5階建 / 4階
|
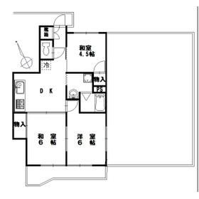
3DK
46.80m²
|
中古マンション
1979年4月(築47年)
|
|
間取図
|
外観
|
<
その他の画像
>
|
| 交通 | 東武東上線 鶴瀬駅 徒歩5分 |
| 所在地 |
埼玉県富士見市大字鶴馬
|
| 物件種目 |
中古マンション |
| 価格 |
700万円 |
平米単価 |
14.96万円 |
| 管理費等 |
5,000円 |
修繕積立金 |
15,000円 |
| 借地期間・地代(月額) |
- |
権利金 |
- |
| 敷金または保証金 |
- / - |
維持費等 |
- |
| その他一時金 |
- |
|
|
| 間取り |
3DK(和 6・4.5 洋 6) |
専有面積 |
46.80m²(内法) |
| 階建 / 階 |
5階建 / 4階 |
バルコニー |
- |
| 築年月 |
1979年4月(築47年)
|
建物構造 |
RC |
| 駐車場 |
無 |
総戸数 |
34戸 |
| 駐輪場 |
有 無料 |
バイク置き場 |
無 |
| ペット |
-
|
|
|
| 土地権利 |
所有権 |
敷地面積 |
965.00m² |
| 管理形態/管理員の勤務形態 |
自主管理/不在 |
国土法届出 |
- |
| 建物名・部屋番号 |
サンファイン鶴瀬 |
| リフォーム履歴 |
■共用部の大規模修繕工事:2025年9月 給湯給水排水工事 ※実施年月は最も古い履歴を表示 |
| リノベーション履歴 |
- |
| 瑕疵保証 |
- |
| 瑕疵保険 |
- |
| 評価・証明書 |
- |
| 備考 |
主要採光面:南西向き
用途地域:近隣商業、1種住居
大規模修繕工事予定有り、時期、施工会社未定。
鶴瀬駅西口土地区画整理事業。施工中
|
| エネルギー消費性能 |
- |
| 断熱性能 |
- |
| 目安光熱費 |
- |
| バス・トイレ |
- |
| キッチン |
- |
| 設備・サービス |
室内洗濯機置場、モニター付インターホン、駐輪場、ケーブルTV |
| その他 |
- |
| 条件等 |
- |
現況 |
空家 |
| 引渡可能時期 |
即時 |
物件番号 |
6985054767 |
| 情報公開日 |
2025年2月2日 |
次回更新予定日 |
2026年3月13日 |
| ケータイ用バーコード |
- スマートフォンでこの物件を見る
- スマートフォンからもこの物件をご覧になれます。
|
※「-」と表示されている項目については、情報提供会社にご確認ください。
| 周辺施設 |
カスミフードスクエア |
| 距離 |
264m |
写真を見る |
| 周辺施設 |
ベルク藤久保店 |
| 距離 |
724m |
写真を見る |
| 周辺施設 |
ファッションセンターしまむら藤久保店 |
| 距離 |
815m |
写真を見る |
| 周辺施設 |
富士見市立つるせ台小学校 |
| 距離 |
785m |
写真を見る |
| 周辺施設 |
富士見台幼稚園 |
| 距離 |
232m |
写真を見る |
| 周辺施設 |
銀の鈴幼稚園 |
| 距離 |
460m |
写真を見る |
| 周辺施設 |
セブンイレブン富士見鶴馬西店 |
| 距離 |
109m |
写真を見る |
| 周辺施設 |
ウエルシア富士見鶴瀬駅西口店 |
| 距離 |
134m |
写真を見る |
ここから簡単にお問い合わせをすることができます。
(SSLでの暗号化での送信を希望されるお客さまは
こちら
よりお問い合わせください)
お問い合わせを行う前に
「個人情報の取り扱いについて」を必ずお読みください。
「個人情報の取り扱いについて」に同意いただいた場合は「上記にご同意の上 確認画面へ進む」のボタンをクリックしてください。
個人情報の取り扱いについて
皆さまが送付された個人情報はアットホーム(株)のサーバを経由し、お問い合わせ先の不動産会社にメールまたはFAXにて転送されるためアットホーム(株)にも保管されます。アットホーム(株)で保管された個人情報の取り扱いについては、【こちら】をご覧ください。
また、本画面でご記入いただいた個人情報は、お問い合わせ先の不動産会社でも保管します。 お問い合わせ先の不動産会社が保管する個人情報の取り扱いについては、不動産会社に直接お問い合わせください。
埼玉県知事免許(5)第19700号 |
|---|
- 交通:
- 東武東上線/鶴瀬駅 徒歩2分
- 埼玉県富士見市大字鶴馬2615-20
- TEL:
- 049-268-7751
- FAX:
- 049-268-7752
- 所属団体:
- (公社)全日本不動産協会会員(公社)首都圏不動産公正取引協議会加盟
取引態様:専任媒介  - 00980319
|
- スマートフォンで
この不動産会社を見る

|
- 提携サイト等より掲載されている物件情報につきましては、不動産会社詳細情報にリンクされていないものがあります。
- 物件に関するお問合せは、物件詳細ページの「情報提供会社」に表示されている不動産会社へ直接お願いいたします。
- 間取図は、現況を優先させていただきます。
- 映像は物件の一部を撮影したものです。物件の契約にあたっての最終判断はご自身の判断に基づいて行ってください。
- 仲介手数料について

アットホームは物件情報の適正化に努めております。
内容に誤りがある場合にはこちらへご連絡ください。