福岡県北九州市八幡西区岸の浦2丁目(黒崎駅)の中古マンション・新築マンション・分譲マンション:物件詳細
交通 所在地 |
駅徒歩 |
価格 |
構造 階建/階 |
間取り 専有面積 |
物件種目 築年月 |
|
JR鹿児島本線/黒崎 [バス利用可] バス 西鉄クランウンパレス前 停歩4分
福岡県北九州市八幡西区岸の浦2丁目
|
14分
|
2,590万円
|
RC
14階建 / 3階
|
3LDK
69.98m²
|
中古マンション
2009年10月(築16年1ヶ月)
|
|
ペット相談、楽器相談、デザイナーズ、常時ゴミ出し可能、24時間セキュリティー、天井高2.5M以上、逆梁工法、ノンホルムアルデヒド、バス1坪以上、24時間換気システム、バリアフリー、外観タイル張り、前面棟無、隣接建物距離2m以上、管理人常駐、置き配スペース
|
|
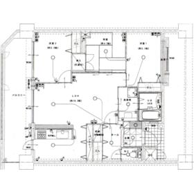
間取図
|
外観
|
<
その他の画像
>
|
| 交通 | JR鹿児島本線 黒崎駅 徒歩14分 [バス利用可] バス 西鉄クランウンパレス前 停歩4分 |
| 所在地 |
福岡県北九州市八幡西区岸の浦2丁目
|
| 物件種目 |
中古マンション |
| 価格 |
2,590万円 |
平米単価 |
37.02万円 |
| 管理費等 |
5,400円 |
修繕積立金 |
9,000円 |
| 借地期間・地代(月額) |
- |
権利金 |
- |
| 敷金または保証金 |
- / - |
維持費等 |
- |
| その他一時金 |
なし |
|
|
| 間取り |
3LDK(洋 5.3・5.1・4.5 LDK 16.3) |
専有面積 |
69.98m²(内法) |
| 階建 / 階 |
14階建 / 3階 |
バルコニー |
16.70m² |
| 築年月 |
2009年10月(築16年1ヶ月)
|
建物構造 |
RC |
| 駐車場 |
有 7,000円/月 |
総戸数 |
69戸 |
| 駐輪場 |
有 無料 |
バイク置き場 |
有 300円/月 |
| ペット |
小型犬可・ 猫可 |
|
|
| 土地権利 |
所有権 |
敷地面積 |
- |
| 管理形態/管理員の勤務形態 |
全部委託/常駐(株式会社合人社計画研究所) |
国土法届出 |
- |
| アピールポイント |
留守番いらずの宅配BOX付、更に出張時や旅行前でも収集日にしばられることがない常時ゴミ出し可の住戸だから、ゴミ収集の時間や曜日に縛られません。また閑静な住宅街の住戸で、その上スタイリッシュなデザイナーズ住居だから、こだわりのテイストとシンクロする方にはぴったり。ちなみに奥行き(出幅)を一般的なバルコニーより広めにとったワイドバルコニー付です。お探しの方には嬉しいペット(小型犬)相談可。自然に団らんが生まれる3LDK。実際の空間をご自身で体感ください。 |
| 建物名・部屋番号 |
アースコートジュエラ黒崎 |
| リフォーム履歴 |
■水回り:2025年8月 キッチン、浴室、トイレ、洗面所 水回りの備品は全て新品に変更、給湯器は2024年11月に新品に交換済みです。 ■内装:2025年8月 全室クロス張替え、床(フローリング等)、壁・天井(クロス・塗装等)、建具(室内ドア等) 畳のお部屋は洋室に変更、押し入れはクローゼットに変更、既存のクローゼットとシューズクロークも新しくなります。 ※実施年月は最も古い履歴を表示 |
| リノベーション履歴 |
- |
| 瑕疵保証 |
- |
| 瑕疵保険 |
- |
| 評価・証明書 |
- |
| 備考 |
主要採光面:南東向き
工事完了予定日:2025年8月
施工会社:福屋建設株式会社
用途地域:1種住居
延べ面積:6,356.99m²
※現在は内装工事中で8月下旬に工事が完成の予定ですが、事前に見学の予約はお受けいたします。
|
| エネルギー消費性能 |
- |
| 断熱性能 |
- |
| 目安光熱費 |
- |
| バス・トイレ |
浴室暖房、浴室乾燥機、追焚機能、シャワー付洗面化粧台、温水洗浄便座 |
| キッチン |
カウンターキッチン、システムキッチン、浄水器、3口以上コンロ、グリル |
| 設備・サービス |
モニター付オートロック、全居室収納、バイク置き場、シューズインクローゼット、クローゼット、オートロック、モニター付インターホン、ディンプルキー、ダブルロックドア、防犯カメラ、省エネ給湯器、給湯、出窓、アルコーブ、都市ガス、ワイドバルコニー、駐輪場、人感センサー付照明、間接照明、火災警報器(報知機)、インターネット対応、光ファイバー、BS端子、マルチメディアコンセント |
| その他 |
宅配BOX、エレベーター |
| 条件等 |
- |
現況 |
空家 |
| 引渡可能時期 |
相談 |
物件番号 |
6985087956 |
| 仲介手数料 |
売買代金の3%+6万円 |
|
|
| 情報公開日 |
2025年7月4日 |
次回更新予定日 |
2025年10月25日 |
| ケータイ用バーコード |
- スマートフォンでこの物件を見る
- スマートフォンからもこの物件をご覧になれます。
|
※「-」と表示されている項目については、情報提供会社にご確認ください。
| 周辺施設 |
マックスバリュ黒崎店 |
| 距離 |
651m |
写真を見る |
| 周辺施設 |
ハローデイ黒崎店 |
| 距離 |
508m |
写真を見る |
| 周辺施設 |
セブンイレブン八幡西曲里町店 |
| 距離 |
416m |
写真を見る |
| 周辺施設 |
北九州市立熊西中学校 |
| 距離 |
1091m |
写真を見る |
| 周辺施設 |
北九州市立熊西小学校 |
| 距離 |
445m |
写真を見る |
| 周辺施設 |
独立行政法人地域医療機能推進機構九州病院 |
| 距離 |
343m |
写真を見る |
ここから簡単にお問い合わせをすることができます。
(SSLでの暗号化での送信を希望されるお客さまは
こちら
よりお問い合わせください)
お問い合わせを行う前に
「個人情報の取り扱いについて」を必ずお読みください。
「個人情報の取り扱いについて」に同意いただいた場合は「上記にご同意の上 確認画面へ進む」のボタンをクリックしてください。
個人情報の取り扱いについて
皆さまが送付された個人情報はアットホーム(株)のサーバを経由し、お問い合わせ先の不動産会社にメールまたはFAXにて転送されるためアットホーム(株)にも保管されます。アットホーム(株)で保管された個人情報の取り扱いについては、【こちら】をご覧ください。
また、本画面でご記入いただいた個人情報は、お問い合わせ先の不動産会社でも保管します。 お問い合わせ先の不動産会社が保管する個人情報の取り扱いについては、不動産会社に直接お問い合わせください。
福岡県知事免許(2)第17989号 |
|---|
- 交通:
- JR日田彦山線/石田駅 徒歩8分
- 福岡県北九州市小倉南区横代北町5丁目1-12
- TEL:
- 093-967-9628
- FAX:
- 093-967-9629
- 所属団体:
- (公社)福岡県宅地建物取引業協会会員不動産公正取引協議会加盟
取引態様:媒介  - 80502446
|
- スマートフォンで
この不動産会社を見る

|
- 提携サイト等より掲載されている物件情報につきましては、不動産会社詳細情報にリンクされていないものがあります。
- 物件に関するお問合せは、物件詳細ページの「情報提供会社」に表示されている不動産会社へ直接お願いいたします。
- 間取図は、現況を優先させていただきます。
- 映像は物件の一部を撮影したものです。物件の契約にあたっての最終判断はご自身の判断に基づいて行ってください。
- 仲介手数料について

アットホームは物件情報の適正化に努めております。
内容に誤りがある場合にはこちらへご連絡ください。