東京都豊島区南池袋2丁目(東池袋駅)の中古マンション・新築マンション・分譲マンション:物件詳細
交通 所在地 |
駅徒歩 |
価格 |
構造 階建/階 |
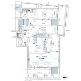
間取り 専有面積 |
物件種目 築年月 |
|
東京メトロ有楽町線/東池袋
東京都豊島区南池袋2丁目
|
1分
|
24,880万円
|
SRC
地上49階地下3階建 / 33階
|
3LDK
78.06m²
|
中古マンション
オーナーチェンジ
2015年3月(築10年10ヶ月)
|
|
フロントサービス、常時ゴミ出し可能、24時間セキュリティー、免震構造、2面採光、24時間換気システム、管理人日勤
|
|
間取図
|
|
その他の画像
|
| 交通 | 東京メトロ有楽町線 東池袋駅 徒歩1分 |
| 所在地 |
東京都豊島区南池袋2丁目
|
| 物件種目 |
中古マンション |
| 価格 |
24,880万円 |
平米単価 |
318.73万円 |
| 管理費等 |
26,540円 |
修繕積立金 |
29,660円 |
| 借地期間・地代(月額) |
- |
権利金 |
- |
| 敷金または保証金 |
- / - |
維持費等 |
管理費:26,540円/月、修繕積立金:29,660円/月、CATV設備、インターネット、町会費:1,410円/月 |
| その他一時金 |
- |
|
|
| 間取り |
3LDK |
専有面積 |
78.06m²(壁芯) |
| 階建 / 階 |
地上49階地下3階建 / 33階 |
バルコニー |
19.33m² |
| 築年月 |
2015年3月(築10年10ヶ月)
|
建物構造 |
SRC |
| 駐車場 |
有 30,000円/月 |
総戸数 |
- |
| 駐輪場 |
有 |
バイク置き場 |
有 |
| ペット |
-
|
|
|
| 土地権利 |
所有権 |
敷地面積 |
- |
| 管理形態/管理員の勤務形態 |
全部委託/日勤(東京建物アメニティサポート) |
国土法届出 |
- |
| 建物名・部屋番号 |
Brillia Tower 池袋 3310 |
| リフォーム履歴 |
- |
| リノベーション履歴 |
- |
| 瑕疵保証 |
- |
| 瑕疵保険 |
- |
| 評価・証明書 |
- |
| 備考 |
主要採光面:東向き
施工会社:大成建設株式会社
用途地域:1種住居
利回り:1.59%
年間予定賃料収入:396万円
|
| エネルギー消費性能 |
- |
| 断熱性能 |
- |
| 目安光熱費 |
- |
| バス・トイレ |
浴室暖房、浴室乾燥機、オートバス、追焚機能、温水洗浄便座 |
| キッチン |
システムキッチン、食器洗浄乾燥機、浄水器、ディスポーザー、3口以上コンロ |
| 設備・サービス |
モニター付オートロック、床暖房、バイク置き場、収納スペース、室内洗濯機置場、シューズインクローゼット、クローゼット、オートロック、ディンプルキー、ダブルロックドア、防犯カメラ、全居室フローリング、都市ガス、ビルトインエアコン、駐輪場、フットライト、火災警報器(報知機)、光ファイバー、ケーブルTV |
| その他 |
宅配BOX、フィットネス施設、敷地内AED有、エレベーター2基以上、共用ゲストルーム、共用パーティルーム、エレベーター |
| 条件等 |
オーナーチェンジ |
現況 |
賃貸中 |
| 引渡可能時期 |
相談 |
物件番号 |
6985168013 |
| 情報公開日 |
2025年8月8日 |
次回更新予定日 |
2025年12月27日 |
| ケータイ用バーコード |
- スマートフォンでこの物件を見る
- スマートフォンからもこの物件をご覧になれます。
|
※「-」と表示されている項目については、情報提供会社にご確認ください。
ここから簡単にお問い合わせをすることができます。
(SSLでの暗号化での送信を希望されるお客さまは
こちら
よりお問い合わせください)
お問い合わせを行う前に
「個人情報の取り扱いについて」を必ずお読みください。
「個人情報の取り扱いについて」に同意いただいた場合は「上記にご同意の上 確認画面へ進む」のボタンをクリックしてください。
個人情報の取り扱いについて
皆さまが送付された個人情報はアットホーム(株)のサーバを経由し、お問い合わせ先の不動産会社にメールまたはFAXにて転送されるためアットホーム(株)にも保管されます。アットホーム(株)で保管された個人情報の取り扱いについては、【こちら】をご覧ください。
また、本画面でご記入いただいた個人情報は、お問い合わせ先の不動産会社でも保管します。 お問い合わせ先の不動産会社が保管する個人情報の取り扱いについては、不動産会社に直接お問い合わせください。
東京都知事免許(14)第27035号 |
|---|
- 交通:
- JR千代田・常磐緩行線/金町駅 徒歩1分
- 東京都葛飾区東金町1丁目43-9
- TEL:
- 03-3609-3251
- FAX:
- 03-3609-3261
- 所属団体:
- (公社)東京都宅地建物取引業協会会員(公社)首都圏不動産公正取引協議会加盟
取引態様:専任媒介  - 00510189
|
- スマートフォンで
この不動産会社を見る

|
- 提携サイト等より掲載されている物件情報につきましては、不動産会社詳細情報にリンクされていないものがあります。
- 物件に関するお問合せは、物件詳細ページの「情報提供会社」に表示されている不動産会社へ直接お願いいたします。
- 間取図は、現況を優先させていただきます。
- 映像は物件の一部を撮影したものです。物件の契約にあたっての最終判断はご自身の判断に基づいて行ってください。
- 仲介手数料について

アットホームは物件情報の適正化に努めております。
内容に誤りがある場合にはこちらへご連絡ください。