福岡県福岡市中央区小笹4丁目(六本松駅)の中古マンション・新築マンション・分譲マンション:物件詳細
交通 所在地 |
駅徒歩 |
価格 |
構造 階建/階 |
間取り 専有面積 |
物件種目 築年月 |
|
地下鉄七隈線/六本松 [バス利用可] バス 西鉄バス 笹丘2丁目 停歩2分
福岡県福岡市中央区小笹4丁目
|
19分
|
5,770万円
|
RC/木造 混構造
3階建 / 1階
|
4LDK
130.92m²
|
中古タウンハウス
2025年1月(築1年5ヶ月)
|
|
ペット相談、南向き、24時間セキュリティー、バス1坪以上、24時間換気システム、オール電化、設計住宅性能評価書あり、建設住宅性能評価書あり
|
|
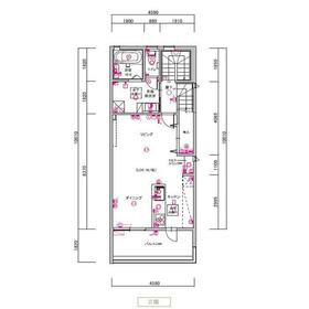
間取図
103号 1F
|
間取図
103号 2F
|
その他の画像
|
| 交通 | 地下鉄七隈線 六本松駅 徒歩19分 [バス利用可] バス 西鉄バス 笹丘2丁目 停歩2分 |
|---|
| その他の交通 | 西鉄天神大牟田線 西鉄平尾駅 徒歩30分 |
| 所在地 |
福岡県福岡市中央区小笹4丁目
|
| 物件種目 |
中古タウンハウス |
| 価格 |
5,770万円 |
平米単価 |
44.08万円 |
| 管理費等 |
7,100円 |
修繕積立金 |
3,300円 |
| 借地期間・地代(月額) |
- |
権利金 |
- |
| 敷金または保証金 |
- / - |
維持費等 |
- |
| その他一時金 |
修繕積立基金:390,800円、管理一時金:10,000円 |
|
|
| 間取り |
4LDK(洋 7.7・6.6・5.4・5.4 LDK 16.1) |
専有面積 |
130.92m²(壁芯) |
| 階建 / 階 |
3階建 / 1階 |
バルコニー |
14.96m² |
| 築年月 |
2025年1月(築1年5ヶ月)
|
建物構造 |
RC/木造 混構造 |
| 駐車場 |
有 無料 |
総戸数 |
4戸 |
| 駐輪場 |
- |
バイク置き場 |
- |
| ペット |
小型犬可・ 猫可 |
|
|
| 土地権利 |
所有権 |
敷地面積 |
- |
| 管理形態/管理員の勤務形態 |
一部委託/-(株式会社ジェント) |
国土法届出 |
- |
| アピールポイント |
オール電化住宅。IHキッチンでお掃除のラクラク! 忙しいご家庭に嬉しい食器洗い乾燥機付き。手荒れが軽減されます。忙しい朝もトイレが二か所あるので便利。 |
| 建物名・部屋番号 |
サンレジア小笹ヒルズ 103 |
| リフォーム履歴 |
- |
| リノベーション履歴 |
- |
| 瑕疵保証 |
- |
| 瑕疵保険 |
- |
| 評価・証明書 |
- |
| 備考 |
主要採光面:南向き
施工会社:株式会社オークス
用途地域:2種住居
建築確認番号:第BVJ-FUK23-10-0002号
BELS/省エネ基準適合認定
|
| エネルギー消費性能 |
- |
| 断熱性能 |
- |
| 目安光熱費 |
- |
| バス・トイレ |
浴室暖房、浴室乾燥機、オートバス、追焚機能、シャワー付洗面化粧台、温水洗浄便座、トイレ2ヶ所、浴室に窓あり |
| キッチン |
カウンターキッチン、システムキッチン、食器洗浄乾燥機、浄水器、IHクッキングヒーター、3口以上コンロ |
| 設備・サービス |
全居室収納、ウォークインクローゼット、EV車充電設備、室内洗濯機置場、モニター付インターホン、ディンプルキー、省エネ給湯器、全居室フローリング、二面バルコニー、人感センサー付照明、火災警報器(報知機)、複層ガラス |
| その他 |
- |
| 条件等 |
- |
現況 |
空家 |
| 引渡可能時期 |
即時 |
物件番号 |
6985252681 |
| 情報公開日 |
2025年2月18日 |
次回更新予定日 |
2026年5月21日 |
| ケータイ用バーコード |
- スマートフォンでこの物件を見る
- スマートフォンからもこの物件をご覧になれます。
|
※「-」と表示されている項目については、情報提供会社にご確認ください。
| 周辺施設 |
笹丘小学校 徒歩6分 |
| 距離 |
480m |
写真を見る |
| 周辺施設 |
友泉中学校 徒歩15分 |
| 距離 |
1200m |
写真を見る |
| 周辺施設 |
サニー小笹店 徒歩6分 |
| 距離 |
450m |
写真を見る |
| 周辺施設 |
福岡笹丘郵便局 徒歩10分 |
| 距離 |
750m |
写真を見る |
| 周辺施設 |
イオンスタイル笹丘 徒歩14分 |
| 距離 |
1100m |
写真を見る |
ここから簡単にお問い合わせをすることができます。
(SSLでの暗号化での送信を希望されるお客さまは
こちら
よりお問い合わせください)
お問い合わせを行う前に
「個人情報の取り扱いについて」を必ずお読みください。
「個人情報の取り扱いについて」に同意いただいた場合は「上記にご同意の上 確認画面へ進む」のボタンをクリックしてください。
個人情報の取り扱いについて
皆さまが送付された個人情報はアットホーム(株)のサーバを経由し、お問い合わせ先の不動産会社にメールまたはFAXにて転送されるためアットホーム(株)にも保管されます。アットホーム(株)で保管された個人情報の取り扱いについては、【こちら】をご覧ください。
また、本画面でご記入いただいた個人情報は、お問い合わせ先の不動産会社でも保管します。 お問い合わせ先の不動産会社が保管する個人情報の取り扱いについては、不動産会社に直接お問い合わせください。
福岡県知事免許(4)第15865号 |
|---|
- 交通:
- 【バス】 南庄二丁目 停歩1分
- 福岡県福岡市早良区南庄2丁目21-24
- TEL:
- 092-400-3008
- FAX:
- 092-400-6097
- 所属団体:
- (公社)福岡県宅地建物取引業協会会員(一社)九州不動産公正取引協議会加盟
取引態様:売主  - 80004997
|
- スマートフォンで
この不動産会社を見る

|
- 提携サイト等より掲載されている物件情報につきましては、不動産会社詳細情報にリンクされていないものがあります。
- 物件に関するお問合せは、物件詳細ページの「情報提供会社」に表示されている不動産会社へ直接お願いいたします。
- 間取図は、現況を優先させていただきます。
- 映像は物件の一部を撮影したものです。物件の契約にあたっての最終判断はご自身の判断に基づいて行ってください。
- 仲介手数料について

アットホームは物件情報の適正化に努めております。
内容に誤りがある場合にはこちらへご連絡ください。