福岡県筑紫野市石崎1丁目(天拝山駅)の中古マンション・新築マンション・分譲マンション:物件詳細
交通 所在地 |
駅徒歩 |
価格 |
構造 階建/階 |
間取り 専有面積 |
物件種目 築年月 |
|
JR鹿児島本線/天拝山
福岡県筑紫野市石崎1丁目
|
4分
|
730万円
|
RC
4階建 / 2階
|
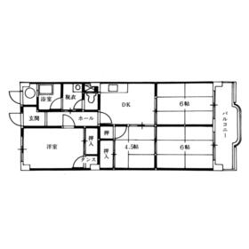
4DK
60.51m²
|
中古マンション
1980年12月(築44年11ヶ月)
|
|
角部屋、管理人巡回
|
|
間取図
|
外観
|
<
その他の画像
>
|
| 交通 | JR鹿児島本線 天拝山駅 徒歩4分 |
|---|
| その他の交通 | 西鉄天神大牟田線 朝倉街道駅 徒歩5分 |
| 所在地 |
福岡県筑紫野市石崎1丁目
|
| 物件種目 |
中古マンション |
| 価格 |
730万円 |
平米単価 |
12.07万円 |
| 管理費等 |
7,000円 |
修繕積立金 |
20,000円 |
| 借地期間・地代(月額) |
- |
権利金 |
- |
| 敷金または保証金 |
- / - |
維持費等 |
- |
| その他一時金 |
- |
|
|
| 間取り |
4DK |
専有面積 |
60.51m²(内法) |
| 階建 / 階 |
4階建 / 2階 |
バルコニー |
5.40m² |
| 築年月 |
1980年12月(築44年11ヶ月)
|
建物構造 |
RC |
| 駐車場 |
- |
総戸数 |
20戸 |
| 駐輪場 |
- |
バイク置き場 |
- |
| ペット |
-
|
|
|
| 土地権利 |
所有権 |
敷地面積 |
- |
| 管理形態/管理員の勤務形態 |
全部委託/巡回 |
国土法届出 |
- |
| アピールポイント |
◆内装リフォーム予定(全室クロス張替え、畳表替え、一部フロアタイル張替え、CFシート張替え、トイレ新設、補修、ハウスクリーニング)◆角部屋◆西鉄朝倉街道駅・JR天拝山駅徒歩5分圏内のWアクセス可♪◆「イオンモール筑紫野」徒歩圏内◆2階部分のお部屋です。◆角部屋◆西鉄朝倉街道駅・JR天拝山駅徒歩5分圏内のWアクセス可♪◆「イオンモール筑紫野」徒歩圏内◆2階部分のお部屋です。 |
| 建物名・部屋番号 |
朝倉街道ハイツ |
| リフォーム履歴 |
- |
| リノベーション履歴 |
- |
| 瑕疵保証 |
- |
| 瑕疵保険 |
- |
| 評価・証明書 |
- |
| 備考 |
用途地域:準工業
◆内装リフォーム予定(全室クロス張替え、畳表替え、一部フロアタイル張替え、CFシート張替え、トイレ新設、補修、ハウスクリーニング)◆角部屋◆西鉄朝倉街道駅・JR天拝山駅徒歩5分圏内のWアクセス可♪◆「イオンモール筑紫野」徒歩圏内◆2階部分のお部屋です。◆角部屋◆令和7年10月上旬退去予定◆西鉄朝倉街道駅・JR天拝山駅徒歩5分圏内のWアクセス可♪◆「イオンモール筑紫野」徒歩圏内◆2階部分のお部屋です。
|
| エネルギー消費性能 |
- |
| 断熱性能 |
- |
| 目安光熱費 |
- |
| バス・トイレ |
- |
| キッチン |
- |
| 設備・サービス |
収納スペース、給湯、都市ガス、プロパンガス |
| その他 |
- |
| 条件等 |
- |
現況 |
空家 |
| 引渡可能時期 |
相談 |
物件番号 |
6985380426 |
| 仲介手数料 |
不要 |
|
|
| 情報公開日 |
2025年2月27日 |
次回更新予定日 |
2025年11月7日 |
| ケータイ用バーコード |
- スマートフォンでこの物件を見る
- スマートフォンからもこの物件をご覧になれます。
|
※「-」と表示されている項目については、情報提供会社にご確認ください。
| 周辺施設 |
にしてつストアレガネット朝倉街道 |
| 距離 |
597m |
写真を見る |
| 周辺施設 |
靴下屋イオンモール筑紫野店 |
| 距離 |
740m |
写真を見る |
| 周辺施設 |
ローソン筑紫野石崎一丁目店 |
| 距離 |
114m |
写真を見る |
| 周辺施設 |
筑紫野市立二日市東小学校 |
| 距離 |
848m |
| 周辺施設 |
筑紫野太宰府消防組合消防本部筑紫野消防署 |
| 距離 |
78m |
ここから簡単にお問い合わせをすることができます。
(SSLでの暗号化での送信を希望されるお客さまは
こちら
よりお問い合わせください)
お問い合わせを行う前に
「個人情報の取り扱いについて」を必ずお読みください。
「個人情報の取り扱いについて」に同意いただいた場合は「上記にご同意の上 確認画面へ進む」のボタンをクリックしてください。
個人情報の取り扱いについて
皆さまが送付された個人情報はアットホーム(株)のサーバを経由し、お問い合わせ先の不動産会社にメールまたはFAXにて転送されるためアットホーム(株)にも保管されます。アットホーム(株)で保管された個人情報の取り扱いについては、【こちら】をご覧ください。
また、本画面でご記入いただいた個人情報は、お問い合わせ先の不動産会社でも保管します。 お問い合わせ先の不動産会社が保管する個人情報の取り扱いについては、不動産会社に直接お問い合わせください。
福岡県知事免許(5)第14872号 |
|---|
- 交通:
- 西鉄天神大牟田線/朝倉街道駅 徒歩1分
- 福岡県筑紫野市針摺中央2丁目17-3
- TEL:
- 092-922-5643
- FAX:
- 092-922-5644
- 所属団体:
- (公社)福岡県宅地建物取引業協会会員(一社)九州不動産公正取引協議会加盟
取引態様:売主  - 80002682
|
- スマートフォンで
この不動産会社を見る

|
- 提携サイト等より掲載されている物件情報につきましては、不動産会社詳細情報にリンクされていないものがあります。
- 物件に関するお問合せは、物件詳細ページの「情報提供会社」に表示されている不動産会社へ直接お願いいたします。
- 間取図は、現況を優先させていただきます。
- 映像は物件の一部を撮影したものです。物件の契約にあたっての最終判断はご自身の判断に基づいて行ってください。
- 仲介手数料について

アットホームは物件情報の適正化に努めております。
内容に誤りがある場合にはこちらへご連絡ください。