愛知県名古屋市中川区荒子1丁目(高畑駅)の中古マンション・新築マンション・分譲マンション:物件詳細
交通 所在地 |
駅徒歩 |
価格 |
構造 階建/階 |
間取り 専有面積 |
物件種目 築年月 |
名古屋市東山線/高畑
愛知県名古屋市中川区荒子1丁目
|
6分
|
2,780万円
|
RC
7階建 / 4階
|
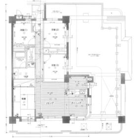
4LDK
88.40m²
|
中古マンション
1996年3月(築29年8ヶ月)
|
角部屋、南向き、3面採光、管理人巡回
|
間取図
|
外観
|
<
その他の画像
>
|
交通 | 名古屋市東山線 高畑駅 徒歩6分 |
---|
その他の交通 | あおなみ線 荒子駅 徒歩7分 |
所在地 |
愛知県名古屋市中川区荒子1丁目
|
物件種目 |
中古マンション |
価格 |
2,780万円 |
平米単価 |
31.45万円 |
管理費等 |
18,600円 |
修繕積立金 |
25,720円 |
借地期間・地代(月額) |
- |
権利金 |
- |
敷金または保証金 |
- / - |
維持費等 |
- |
その他一時金 |
- |
|
|
間取り |
4LDK(和 6 洋 6・6・4.7) |
専有面積 |
88.40m²(壁芯) |
階建 / 階 |
7階建 / 4階 |
バルコニー |
36.12m² |
築年月 |
1996年3月(築29年8ヶ月)
|
建物構造 |
RC |
駐車場 |
- |
総戸数 |
25戸 |
駐輪場 |
有 2,400円/月 |
バイク置き場 |
有 4,800円/月 |
ペット |
-
|
|
|
土地権利 |
所有権 |
敷地面積 |
1,076.00m² |
管理形態/管理員の勤務形態 |
全部委託/巡回(株式会社大京アステージ) |
国土法届出 |
- |
アピールポイント |
広々とした延床面積88.4㎡の居室空間、更に頭上を遮るものがなく開放感が魅力のルーフバルコニー付なので、夜空を独り占めすることもできます。また換気時や外の空気が吸いたいときにありがたい3面バルコニーのある住戸で、その上南向なので、1日を通して日が当たりやすく冬場もあったか。ちなみに1日を通して常に自然光を室内に取り入れられる3面採光の住戸です。家族というコミュニティを支える4LDK。是非その目でお確かめください。
室内あちこちから外へ出られる3面バルコニーは、方角にあわせて鉢植えに、洗濯にと使い分けができて便利です。またフットワークが軽くなる高畑駅徒歩6分ロケーションで、その上眼下を見渡せるルーフバルコニー付なので、ビーチチェアひとつでリゾート気分を夢想できます。ちなみに南向の住居です。家族というコミュニティを支える4LDK。是非その目でお確かめください。 |
建物名・部屋番号 |
ライオンズマンション高畑 |
リフォーム履歴 |
- |
リノベーション履歴 |
- |
瑕疵保証 |
- |
瑕疵保険 |
- |
評価・証明書 |
- |
備考 |
主要採光面:南向き
施工会社:安藤建設株式会社名古屋支店
用途地域:1種住居
延べ面積:2,027.23m²
ルーフバルコニー 1,060円/月
|
エネルギー消費性能 |
- |
断熱性能 |
- |
目安光熱費 |
- |
バス・トイレ |
- |
キッチン |
- |
設備・サービス |
バイク置き場、三面バルコニー、アルコーブ、ルーフバルコニー、駐輪場 |
その他 |
エレベーター |
条件等 |
- |
現況 |
空家 |
引渡可能時期 |
相談 |
物件番号 |
6985380475 |
仲介手数料 |
売買代金の3%+6万円 |
|
|
情報公開日 |
2025年2月27日 |
次回更新予定日 |
2025年10月27日 |
ケータイ用バーコード |
- スマートフォンでこの物件を見る
- スマートフォンからもこの物件をご覧になれます。
|
※「-」と表示されている項目については、情報提供会社にご確認ください。
ここから簡単にお問い合わせをすることができます。
(SSLでの暗号化での送信を希望されるお客さまは
こちら
よりお問い合わせください)
お問い合わせを行う前に
「個人情報の取り扱いについて」を必ずお読みください。
「個人情報の取り扱いについて」に同意いただいた場合は「上記にご同意の上 確認画面へ進む」のボタンをクリックしてください。
個人情報の取り扱いについて
皆さまが送付された個人情報はアットホーム(株)のサーバを経由し、お問い合わせ先の不動産会社にメールまたはFAXにて転送されるためアットホーム(株)にも保管されます。アットホーム(株)で保管された個人情報の取り扱いについては、【こちら】をご覧ください。
また、本画面でご記入いただいた個人情報は、お問い合わせ先の不動産会社でも保管します。 お問い合わせ先の不動産会社が保管する個人情報の取り扱いについては、不動産会社に直接お問い合わせください。
愛知県知事免許(6)第18120号 |
---|
- 交通:
- 名古屋市東山線/藤が丘駅
- 愛知県名古屋市名東区宝が丘294
- TEL:
- 052-775-7887
- FAX:
- 052-775-7337
- 所属団体:
- (公社)愛知県宅地建物取引業協会会員東海不動産公正取引協議会加盟
取引態様:媒介  - 40412125
|
- スマートフォンで
この不動産会社を見る

|
- 提携サイト等より掲載されている物件情報につきましては、不動産会社詳細情報にリンクされていないものがあります。
- 物件に関するお問合せは、物件詳細ページの「情報提供会社」に表示されている不動産会社へ直接お願いいたします。
- 間取図は、現況を優先させていただきます。
- 映像は物件の一部を撮影したものです。物件の契約にあたっての最終判断はご自身の判断に基づいて行ってください。
- 仲介手数料について

アットホームは物件情報の適正化に努めております。
内容に誤りがある場合にはこちらへご連絡ください。