埼玉県草加市住吉1丁目(草加駅)の中古マンション・新築マンション・分譲マンション:物件詳細
交通 所在地 |
駅徒歩 |
価格 |
構造 階建/階 |
間取り 専有面積 |
物件種目 築年月 |
|
東武伊勢崎線/草加
埼玉県草加市住吉1丁目
|
5分
|
460万円
|
RC
地上4階地下1階建 / 1階
|
ワンルーム
17.66m²
|
中古マンション
オーナーチェンジ
1988年9月(築37年4ヶ月)
|
|
管理人巡回
|
|
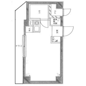
間取図
|
外観
|
その他の画像
|
| 交通 | 東武伊勢崎線 草加駅 徒歩5分 |
| 所在地 |
埼玉県草加市住吉1丁目
|
| 物件種目 |
中古マンション |
| 価格 |
460万円 |
平米単価 |
26.05万円 |
| 管理費等 |
5,690円 |
修繕積立金 |
6,970円 |
| 借地期間・地代(月額) |
- |
権利金 |
- |
| 敷金または保証金 |
- / - |
維持費等 |
- |
| その他一時金 |
- |
|
|
| 間取り |
ワンルーム(洋 7.7) |
専有面積 |
17.66m²(壁芯) |
| 階建 / 階 |
地上4階地下1階建 / 1階 |
バルコニー |
- |
| 築年月 |
1988年9月(築37年4ヶ月)
|
建物構造 |
RC |
| 駐車場 |
無 |
総戸数 |
- |
| 駐輪場 |
- |
バイク置き場 |
無 |
| ペット |
-
|
|
|
| 土地権利 |
所有権 |
敷地面積 |
- |
| 管理形態/管理員の勤務形態 |
全部委託/巡回(クラシテ株式会社) |
国土法届出 |
- |
| アピールポイント |
アクセスのいい草加駅徒歩5分だから、日用品の買い出しが楽チン。またセキュリティ面では欠かせないオートロック完備で、その上居住スペースにゆとりが生まれる収納スペース付だから、物をすぐ収納できて整理整頓が習慣化します。ちなみに洗濯機が長持ちする室内洗濯機置場有です。単身のシンプルライフに最適のワンルーム。実際の空間をご自身で体感ください。 |
| 建物名・部屋番号 |
|
| リフォーム履歴 |
- |
| リノベーション履歴 |
- |
| 瑕疵保証 |
- |
| 瑕疵保険 |
- |
| 評価・証明書 |
- |
| 備考 |
利回り:9.60%
年間予定賃料収入:48万円
|
| エネルギー消費性能 |
- |
| 断熱性能 |
- |
| 目安光熱費 |
- |
| バス・トイレ |
- |
| キッチン |
- |
| 設備・サービス |
収納スペース、室内洗濯機置場、オートロック、給湯、都市ガス |
| その他 |
- |
| 条件等 |
オーナーチェンジ |
現況 |
賃貸中 |
| 引渡可能時期 |
相談 |
物件番号 |
6985436080 |
| 情報公開日 |
2025年3月3日 |
次回更新予定日 |
2025年12月21日 |
| ケータイ用バーコード |
- スマートフォンでこの物件を見る
- スマートフォンからもこの物件をご覧になれます。
|
※「-」と表示されている項目については、情報提供会社にご確認ください。
| 周辺施設 |
セブンイレブン草加住吉店 |
| 距離 |
311m |
| 周辺施設 |
デイリーヤマザキ草加氷川町店 |
| 距離 |
291m |
| 周辺施設 |
三菱UFJ銀行草加駅前支店 |
| 距離 |
504m |
ここから簡単にお問い合わせをすることができます。
(SSLでの暗号化での送信を希望されるお客さまは
こちら
よりお問い合わせください)
お問い合わせを行う前に
「個人情報の取り扱いについて」を必ずお読みください。
「個人情報の取り扱いについて」に同意いただいた場合は「上記にご同意の上 確認画面へ進む」のボタンをクリックしてください。
個人情報の取り扱いについて
皆さまが送付された個人情報はアットホーム(株)のサーバを経由し、お問い合わせ先の不動産会社にメールまたはFAXにて転送されるためアットホーム(株)にも保管されます。アットホーム(株)で保管された個人情報の取り扱いについては、【こちら】をご覧ください。
また、本画面でご記入いただいた個人情報は、お問い合わせ先の不動産会社でも保管します。 お問い合わせ先の不動産会社が保管する個人情報の取り扱いについては、不動産会社に直接お問い合わせください。
埼玉県知事免許(6)第18689号 |
|---|
- 交通:
- 東武伊勢崎線/越谷駅 徒歩1分
- 埼玉県越谷市弥生町16番1号 越谷ツインシティBシティ402
- TEL:
- 048-940-8825
- FAX:
- 048-940-8835
- 所属団体:
- (公社)埼玉県宅地建物取引業協会会員(公社)首都圏不動産公正取引協議会加盟
取引態様:専任媒介  - 00051337
|
- スマートフォンで
この不動産会社を見る

|
- 提携サイト等より掲載されている物件情報につきましては、不動産会社詳細情報にリンクされていないものがあります。
- 物件に関するお問合せは、物件詳細ページの「情報提供会社」に表示されている不動産会社へ直接お願いいたします。
- 間取図は、現況を優先させていただきます。
- 映像は物件の一部を撮影したものです。物件の契約にあたっての最終判断はご自身の判断に基づいて行ってください。
- 仲介手数料について

アットホームは物件情報の適正化に努めております。
内容に誤りがある場合にはこちらへご連絡ください。