兵庫県神戸市北区緑町8丁目(山の街駅)の中古マンション・新築マンション・分譲マンション:物件詳細
交通 所在地 |
駅徒歩 |
価格 |
構造 階建/階 |
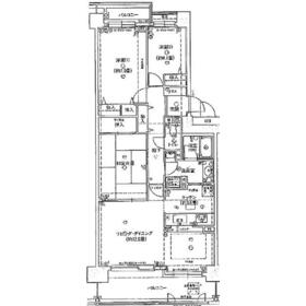
間取り 専有面積 |
物件種目 築年月 |
|
神戸電鉄有馬線/山の街
兵庫県神戸市北区緑町8丁目
|
12分
|
880万円
|
SRC
地上13階地下1階建 / 6階
|
3LDK
75.53m²
|
中古マンション
1996年8月(築29年5ヶ月)
|
|
ペット相談、管理人常駐
|
|
間取図
|
外観
|
<
その他の画像
>
|
| 交通 | 神戸電鉄有馬線 山の街駅 徒歩12分 |
|---|
| その他の交通 | 神戸電鉄有馬線 箕谷駅 徒歩16分 |
| 所在地 |
兵庫県神戸市北区緑町8丁目
|
| 物件種目 |
中古マンション |
| 価格 |
880万円 |
平米単価 |
11.66万円 |
| 管理費等 |
8,300円 |
修繕積立金 |
11,170円 |
| 借地期間・地代(月額) |
- |
権利金 |
- |
| 敷金または保証金 |
- / - |
維持費等 |
- |
| その他一時金 |
なし |
|
|
| 間取り |
3LDK |
専有面積 |
75.53m²(壁芯) |
| 階建 / 階 |
地上13階地下1階建 / 6階 |
バルコニー |
14.44m² |
| 築年月 |
1996年8月(築29年5ヶ月)
|
建物構造 |
SRC |
| 駐車場 |
有 10,000円/月 |
総戸数 |
95戸 |
| 駐輪場 |
有 無料 |
バイク置き場 |
有 無料 |
| ペット |
小型犬可・ 猫可・ 犬猫1匹まで飼育可能 |
|
|
| 土地権利 |
所有権 |
敷地面積 |
38,268.36m² |
| 管理形態/管理員の勤務形態 |
全部委託/常駐(住友不動産建物サービス株式会社) |
国土法届出 |
- |
| アピールポイント |
本年4月3日にインスペクションを実施しました。瑕疵保険に加入ができるため安心安全なお取引が可能となります。お探しの方には嬉しいペット(小型犬)相談可。ちょっとしたお出かけや近所の買い物など自転車生活には必須の駐輪場付だから、自転車を使った買い物も楽になります。またゆったりめの延床面積75.53㎡で空間のゆとりが魅力です。家族が帰宅を焦がれる3LDK。実際の空間をご自身で体感ください。 |
| 建物名・部屋番号 |
ライブシティ緑園都市2号棟 606 |
| リフォーム履歴 |
■共用部の大規模修繕工事:2024年8月 大規模修繕工事を実施済みです ※実施年月は最も古い履歴を表示 |
| リノベーション履歴 |
- |
| 瑕疵保証 |
- |
| 瑕疵保険 |
- |
| 評価・証明書 |
- |
| 備考 |
主要採光面:南東向き
施工会社:清水建設株式会社
用途地域:1種中高
R7年4月3日にインスペクションを実施し瑕疵保険の加入が可能です。ハウスクリーニング済みです。室内はとても良い状態をキープしていますので、少額のリフォーム費用で快適な新生活が待っています。販売図面は反転タイプです。
弊社の預かり物件を売却いただく際の条件として、客付業者様には重要事項説明書の作成の補助をお願いしております。ご不明な点がございましたら、事前にお問い合わせください。
|
| エネルギー消費性能 |
- |
| 断熱性能 |
- |
| 目安光熱費 |
- |
| バス・トイレ |
- |
| キッチン |
- |
| 設備・サービス |
バイク置き場、駐輪場 |
| その他 |
- |
| 条件等 |
- |
現況 |
空家 |
| 引渡可能時期 |
即時 |
物件番号 |
6985508945 |
| 情報公開日 |
2025年3月8日 |
次回更新予定日 |
2025年12月8日 |
| ケータイ用バーコード |
- スマートフォンでこの物件を見る
- スマートフォンからもこの物件をご覧になれます。
|
※「-」と表示されている項目については、情報提供会社にご確認ください。
| 周辺施設 |
コープミニ山の街 |
| 距離 |
742m |
写真を見る |
| 周辺施設 |
ローソン神戸山田町下谷上店 |
| 距離 |
240m |
写真を見る |
| 周辺施設 |
コメダ珈琲店鈴蘭台店 |
| 距離 |
1333m |
写真を見る |
| 周辺施設 |
アルカドラッグ北町店 |
| 距離 |
1814m |
写真を見る |
| 周辺施設 |
神戸市立甲緑小学校 |
| 距離 |
1258m |
写真を見る |
| 周辺施設 |
幼保連携型認定こども園山のまち |
| 距離 |
737m |
写真を見る |
| 周辺施設 |
医療法人社団健心会神戸ほくと病院 |
| 距離 |
428m |
写真を見る |
| 周辺施設 |
神戸山の街郵便局 |
| 距離 |
680m |
写真を見る |
ここから簡単にお問い合わせをすることができます。
(SSLでの暗号化での送信を希望されるお客さまは
こちら
よりお問い合わせください)
お問い合わせを行う前に
「個人情報の取り扱いについて」を必ずお読みください。
「個人情報の取り扱いについて」に同意いただいた場合は「上記にご同意の上 確認画面へ進む」のボタンをクリックしてください。
個人情報の取り扱いについて
皆さまが送付された個人情報はアットホーム(株)のサーバを経由し、お問い合わせ先の不動産会社にメールまたはFAXにて転送されるためアットホーム(株)にも保管されます。アットホーム(株)で保管された個人情報の取り扱いについては、【こちら】をご覧ください。
また、本画面でご記入いただいた個人情報は、お問い合わせ先の不動産会社でも保管します。 お問い合わせ先の不動産会社が保管する個人情報の取り扱いについては、不動産会社に直接お問い合わせください。
兵庫県知事免許(1)第12565号 |
|---|
- 交通:
- 神戸電鉄粟生線/鈴蘭台西口駅 徒歩5分
- 兵庫県神戸市北区鈴蘭台西町1丁目19-9 サングレイ西鈴101
- TEL:
- 078-982-4311
- 所属団体:
- (公社)全日本不動産協会会員(公社)近畿地区不動産公正取引協議会加盟
取引態様:専任媒介  - 50110743
|
- スマートフォンで
この不動産会社を見る

|
- 提携サイト等より掲載されている物件情報につきましては、不動産会社詳細情報にリンクされていないものがあります。
- 物件に関するお問合せは、物件詳細ページの「情報提供会社」に表示されている不動産会社へ直接お願いいたします。
- 間取図は、現況を優先させていただきます。
- 映像は物件の一部を撮影したものです。物件の契約にあたっての最終判断はご自身の判断に基づいて行ってください。
- 仲介手数料について

アットホームは物件情報の適正化に努めております。
内容に誤りがある場合にはこちらへご連絡ください。