長野県長野市大字鶴賀南千歳町(長野駅)の中古マンション・新築マンション・分譲マンション:物件詳細
交通 所在地 |
駅徒歩 |
価格 |
構造 階建/階 |
間取り 専有面積 |
物件種目 築年月 |
|
長野電鉄長野線/長野
長野県長野市大字鶴賀南千歳町
|
5分
|
2,980万円
|
SRC
10階建 / 9階
|
2LDK
59.55m²
|
中古マンション
オーナーチェンジ
1997年2月(築28年11ヶ月)
|
|
ペット相談、角部屋、南向き、管理人日勤
|
|
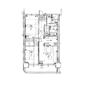
間取図
|
外観
|
<
その他の画像
>
|
| 交通 | 長野電鉄長野線 長野駅 徒歩5分 |
| 所在地 |
長野県長野市大字鶴賀南千歳町
|
| 物件種目 |
中古マンション |
| 価格 |
2,980万円 |
平米単価 |
50.05万円 |
| 管理費等 |
7,800円 |
修繕積立金 |
14,600円 |
| 借地期間・地代(月額) |
- |
権利金 |
- |
| 敷金または保証金 |
- / - |
維持費等 |
- |
| その他一時金 |
- |
|
|
| 間取り |
2LDK(和 6 洋 7.5 LDK 11.5) |
専有面積 |
59.55m²(内法) |
| 階建 / 階 |
10階建 / 9階 |
バルコニー |
9.65m² |
| 築年月 |
1997年2月(築28年11ヶ月)
|
建物構造 |
SRC |
| 駐車場 |
- |
総戸数 |
- |
| 駐輪場 |
- |
バイク置き場 |
- |
| ペット |
小型犬可・ 猫可 |
|
|
| 土地権利 |
所有権 |
敷地面積 |
- |
| 管理形態/管理員の勤務形態 |
全部委託/日勤((株)リアルエステートナガノ) |
国土法届出 |
- |
| アピールポイント |
お探しの方には嬉しいペット(小型犬)相談可。フットワークが軽くなる長野駅徒歩5分だから、日用品の買い出しが楽チン。また食後お皿を下げるのもスムーズなカウンターキッチンで、その上夕食を作りながら翌日のお弁当も作れるコンロ3口以上の仕様なので、進行ペースがスピードアップ。ちなみに洗面ボウルが大きなシャンプードレッサー付です。家族が帰宅を焦がれる2LDK。是非見学にお越しください。 |
| 建物名・部屋番号 |
グランヴィル南千歳一番館 901 |
| リフォーム履歴 |
■水回り:2025年3月 キッチン、浴室、トイレ、洗面所 ■内装:2025年3月 内装全面(床・壁・天井・建具) ※実施年月は最も古い履歴を表示 |
| リノベーション履歴 |
- |
| 瑕疵保証 |
- |
| 瑕疵保険 |
- |
| 評価・証明書 |
- |
| 備考 |
主要採光面:南向き
用途地域:商業地域
利回り:5.43%
年間予定賃料収入:162万円
|
| エネルギー消費性能 |
- |
| 断熱性能 |
- |
| 目安光熱費 |
- |
| バス・トイレ |
追焚機能、シャワー付洗面化粧台、温水洗浄便座 |
| キッチン |
カウンターキッチン、3口以上コンロ |
| 設備・サービス |
モニター付オートロック、全居室エアコン、室内洗濯機置場、防犯カメラ、都市ガス、人感センサー付照明、ダウンライト |
| その他 |
エレベーター |
| 条件等 |
オーナーチェンジ |
現況 |
空家 |
| 引渡可能時期 |
即時 |
物件番号 |
6985594824 |
| 情報公開日 |
2025年12月15日 |
次回更新予定日 |
2025年12月29日 |
| ケータイ用バーコード |
- スマートフォンでこの物件を見る
- スマートフォンからもこの物件をご覧になれます。
|
※「-」と表示されている項目については、情報提供会社にご確認ください。
| 周辺施設 |
セブンイレブン長野千歳町通り店 |
| 距離 |
144m |
| 周辺施設 |
デイリーヤマザキ上千歳町通り店 |
| 距離 |
177m |
| 周辺施設 |
タリーズコーヒー長野アイビースクエア店 |
| 距離 |
144m |
| 周辺施設 |
スターバックスコーヒー長野駅前店 |
| 距離 |
349m |
| 周辺施設 |
快活CLUB長野昭和通り店 |
| 距離 |
250m |
ここから簡単にお問い合わせをすることができます。
(SSLでの暗号化での送信を希望されるお客さまは
こちら
よりお問い合わせください)
お問い合わせを行う前に
「個人情報の取り扱いについて」を必ずお読みください。
「個人情報の取り扱いについて」に同意いただいた場合は「上記にご同意の上 確認画面へ進む」のボタンをクリックしてください。
個人情報の取り扱いについて
皆さまが送付された個人情報はアットホーム(株)のサーバを経由し、お問い合わせ先の不動産会社にメールまたはFAXにて転送されるためアットホーム(株)にも保管されます。アットホーム(株)で保管された個人情報の取り扱いについては、【こちら】をご覧ください。
また、本画面でご記入いただいた個人情報は、お問い合わせ先の不動産会社でも保管します。 お問い合わせ先の不動産会社が保管する個人情報の取り扱いについては、不動産会社に直接お問い合わせください。
城東土地(株)長野県知事免許(4)第5102号 |
|---|
- 交通:
- 長野電鉄長野線/権堂駅 徒歩8分
- 長野県長野市大字鶴賀2133-4
- TEL:
- 026-219-5522
- FAX:
- 026-219-5523
- 所属団体:
- (公社)長野県宅地建物取引業協会会員(公社)首都圏不動産公正取引協議会加盟
取引態様:一般媒介 |
- 提携サイト等より掲載されている物件情報につきましては、不動産会社詳細情報にリンクされていないものがあります。
- 物件に関するお問合せは、物件詳細ページの「情報提供会社」に表示されている不動産会社へ直接お願いいたします。
- 間取図は、現況を優先させていただきます。
- 映像は物件の一部を撮影したものです。物件の契約にあたっての最終判断はご自身の判断に基づいて行ってください。
- 仲介手数料について

アットホームは物件情報の適正化に努めております。
内容に誤りがある場合にはこちらへご連絡ください。