東京都北区上十条2丁目(十条駅)の中古マンション・新築マンション・分譲マンション:物件詳細
交通 所在地 |
駅徒歩 |
価格 |
構造 階建/階 |
間取り 専有面積 |
物件種目 築年月 |
|
JR埼京線/十条
東京都北区上十条2丁目
|
1分
|
14,500万円
|
RC
地上39階地下2階建 / 25階
|
3LDK
77.49m²
|
中古マンション
2024年9月(築1年4ヶ月)
|
|
ペット相談、フロントサービス、常時ゴミ出し可能、南向き、免震構造、天井高2.5M以上、二重床・二重天井、24時間換気システム、設計住宅性能評価書あり、建設住宅性能評価書あり、管理人日勤、置き配スペース
|
|
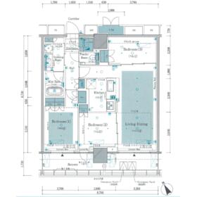
間取図
|
外観
|
<
その他の画像
>
|
| 交通 | JR埼京線 十条駅 徒歩1分 |
|---|
| その他の交通 | JR京浜東北線 東十条駅 徒歩10分 |
| 所在地 |
東京都北区上十条2丁目
|
| 物件種目 |
中古マンション |
| 価格 |
14,500万円 |
平米単価 |
187.13万円 |
| 管理費等 |
27,810円 |
修繕積立金 |
7,730円 |
| 借地期間・地代(月額) |
- |
権利金 |
- |
| 敷金または保証金 |
- / - |
維持費等 |
コミュニティー活動費:300円/月、インタネット使用料:550円/月 |
| その他一時金 |
- |
|
|
| 間取り |
3LDK(洋 6.6・5.1・5.2 LDK 14.5) |
専有面積 |
77.49m²(壁芯) |
| 階建 / 階 |
地上39階地下2階建 / 25階 |
バルコニー |
14.69m² |
| 築年月 |
2024年9月(築1年4ヶ月)
|
建物構造 |
RC |
| 駐車場 |
- |
総戸数 |
578戸 |
| 駐輪場 |
- |
バイク置き場 |
- |
| ペット |
小型犬可 |
|
|
| 土地権利 |
所有権 |
敷地面積 |
7,071.32m² |
| 管理形態/管理員の勤務形態 |
全部委託/日勤(株式会社日鉄コミュニティ) |
国土法届出 |
- |
| アピールポイント |
・25階部分、南向き!
・キッチンは瀟洒なオープン型カウンター付キッチン
・エコカラット配したリビング・主寝室は約6.6帖
・浴室はゆとりある1317サイズ、浴室換気乾燥機付 |
| 建物名・部屋番号 |
ザ・タワー十条 |
| リフォーム履歴 |
- |
| リノベーション履歴 |
- |
| 瑕疵保証 |
- |
| 瑕疵保険 |
- |
| 評価・証明書 |
- |
| 備考 |
主要採光面:南向き
施工会社:前田建設工業(株)東京建築支店
用途地域:商業地域
延べ面積:81,128.80m²
|
| エネルギー消費性能 |
- |
| 断熱性能 |
- |
| 目安光熱費 |
- |
| バス・トイレ |
ミストサウナ、浴室暖房、浴室乾燥機、追焚機能、シャワー付洗面化粧台、温水洗浄便座 |
| キッチン |
食器洗浄乾燥機、浄水器、ディスポーザー、3口以上コンロ、グリル |
| 設備・サービス |
モニター付オートロック、全居室収納、EV車充電設備、床暖房、収納スペース、室内洗濯機置場、トランクルーム、防犯カメラ、全居室フローリング、都市ガス、エアコン、インターネット対応 |
| その他 |
宅配BOX、ペット用施設、エレベーター2基以上、共用ゲストルーム、共用パーティルーム、車寄せスペース、各フロアゴミ捨て場所あり |
| 条件等 |
- |
現況 |
空家 |
| 引渡可能時期 |
相談 |
物件番号 |
6985677742 |
| 仲介手数料 |
売買代金の1.5% |
|
|
| 情報公開日 |
2025年12月19日 |
次回更新予定日 |
2026年1月2日 |
| ケータイ用バーコード |
- スマートフォンでこの物件を見る
- スマートフォンからもこの物件をご覧になれます。
|
※「-」と表示されている項目については、情報提供会社にご確認ください。
| 周辺施設 |
医療法人社団寿廣記念会岸病院 |
| 距離 |
84m |
ここから簡単にお問い合わせをすることができます。
(SSLでの暗号化での送信を希望されるお客さまは
こちら
よりお問い合わせください)
お問い合わせを行う前に
「個人情報の取り扱いについて」を必ずお読みください。
「個人情報の取り扱いについて」に同意いただいた場合は「上記にご同意の上 確認画面へ進む」のボタンをクリックしてください。
個人情報の取り扱いについて
皆さまが送付された個人情報はアットホーム(株)のサーバを経由し、お問い合わせ先の不動産会社にメールまたはFAXにて転送されるためアットホーム(株)にも保管されます。アットホーム(株)で保管された個人情報の取り扱いについては、【こちら】をご覧ください。
また、本画面でご記入いただいた個人情報は、お問い合わせ先の不動産会社でも保管します。 お問い合わせ先の不動産会社が保管する個人情報の取り扱いについては、不動産会社に直接お問い合わせください。
翔辰(株) 本店東京都知事免許(1)第107971号 |
|---|
- 交通:
- JR山手線/池袋駅 徒歩3分
- 東京都豊島区西池袋1丁目43-7 福住ビル702
- TEL:
- 03-5962-0588
- FAX:
- 03-5962-0585
- 所属団体:
- (公社)東京都宅地建物取引業協会会員(公社)首都圏不動産公正取引協議会加盟
取引態様:一般媒介 |
- 提携サイト等より掲載されている物件情報につきましては、不動産会社詳細情報にリンクされていないものがあります。
- 物件に関するお問合せは、物件詳細ページの「情報提供会社」に表示されている不動産会社へ直接お願いいたします。
- 間取図は、現況を優先させていただきます。
- 映像は物件の一部を撮影したものです。物件の契約にあたっての最終判断はご自身の判断に基づいて行ってください。
- 仲介手数料について

アットホームは物件情報の適正化に努めております。
内容に誤りがある場合にはこちらへご連絡ください。