千葉県八千代市緑が丘1丁目(八千代緑が丘駅)の中古マンション・新築マンション・分譲マンション:物件詳細
交通 所在地 |
駅徒歩 |
価格 |
構造 階建/階 |
間取り 専有面積 |
物件種目 築年月 |
東葉高速鉄道/八千代緑が丘
千葉県八千代市緑が丘1丁目
|
1分
|
2,799万円
|
SRC
20階建 / 13階
|
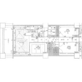
3LDK
79.20m²
|
中古マンション
2004年1月(築21年10ヶ月)
|
管理人日勤
|
交通 | 東葉高速鉄道 八千代緑が丘駅 徒歩1分 |
所在地 |
千葉県八千代市緑が丘1丁目
|
物件種目 |
中古マンション |
価格 |
2,799万円 |
平米単価 |
35.35万円 |
管理費等 |
11,600円 |
修繕積立金 |
11,880円 |
借地期間・地代(月額) |
- |
権利金 |
- |
敷金または保証金 |
- / - |
維持費等 |
- |
その他一時金 |
- |
|
|
間取り |
3LDK(和 6 洋 6.5・5.5) |
専有面積 |
79.20m²(壁芯) |
階建 / 階 |
20階建 / 13階 |
バルコニー |
12.00m² |
築年月 |
2004年1月(築21年10ヶ月)
|
建物構造 |
SRC |
駐車場 |
有 無料 |
総戸数 |
346戸 |
駐輪場 |
有 100円/月 |
バイク置き場 |
有 1,500円/月 |
ペット |
-
|
|
|
土地権利 |
所有権 |
敷地面積 |
- |
管理形態/管理員の勤務形態 |
全部委託/日勤(日本管財住宅管理株式会社) |
国土法届出 |
- |
建物名・部屋番号 |
|
リフォーム履歴 |
- |
リノベーション履歴 |
- |
瑕疵保証 |
- |
瑕疵保険 |
- |
評価・証明書 |
- |
備考 |
主要採光面:西向き
用途地域:商業地域
|
エネルギー消費性能 |
- |
断熱性能 |
- |
目安光熱費 |
- |
バス・トイレ |
TV付浴室、浴室暖房、浴室乾燥機、追焚機能、シャワー付洗面化粧台 |
キッチン |
システムキッチン、3口以上コンロ、キッチン床暖房 |
設備・サービス |
モニター付オートロック、全居室収納、床暖房、バイク置き場、モニター付インターホン、ディンプルキー、都市ガス、駐輪場 |
その他 |
宅配BOX、キッズルーム、エレベーター2基以上、共用ゲストルーム、共用パーティルーム、来客用駐車場 |
条件等 |
- |
現況 |
空家 |
引渡可能時期 |
即時 |
物件番号 |
6985702327 |
情報公開日 |
2025年10月16日 |
次回更新予定日 |
2025年10月30日 |
ケータイ用バーコード |
- スマートフォンでこの物件を見る
- スマートフォンからもこの物件をご覧になれます。
|
※「-」と表示されている項目については、情報提供会社にご確認ください。
ここから簡単にお問い合わせをすることができます。
(SSLでの暗号化での送信を希望されるお客さまは
こちら
よりお問い合わせください)
お問い合わせを行う前に
「個人情報の取り扱いについて」を必ずお読みください。
「個人情報の取り扱いについて」に同意いただいた場合は「上記にご同意の上 確認画面へ進む」のボタンをクリックしてください。
個人情報の取り扱いについて
皆さまが送付された個人情報はアットホーム(株)のサーバを経由し、お問い合わせ先の不動産会社にメールまたはFAXにて転送されるためアットホーム(株)にも保管されます。アットホーム(株)で保管された個人情報の取り扱いについては、【こちら】をご覧ください。
また、本画面でご記入いただいた個人情報は、お問い合わせ先の不動産会社でも保管します。 お問い合わせ先の不動産会社が保管する個人情報の取り扱いについては、不動産会社に直接お問い合わせください。
東京都知事免許(5)第82200号 |
---|
- 交通:
- 都営新宿線/瑞江駅 徒歩2分
- 東京都江戸川区南篠崎町3丁目1-1
- TEL:
- 03-3698-6630
- FAX:
- 03-3698-6631
- 所属団体:
- (公社)全日本不動産協会会員(公社)首都圏不動産公正取引協議会加盟
取引態様:専任媒介  - 00223721
|
- スマートフォンで
この不動産会社を見る

|
- 提携サイト等より掲載されている物件情報につきましては、不動産会社詳細情報にリンクされていないものがあります。
- 物件に関するお問合せは、物件詳細ページの「情報提供会社」に表示されている不動産会社へ直接お願いいたします。
- 間取図は、現況を優先させていただきます。
- 映像は物件の一部を撮影したものです。物件の契約にあたっての最終判断はご自身の判断に基づいて行ってください。
- 仲介手数料について

アットホームは物件情報の適正化に努めております。
内容に誤りがある場合にはこちらへご連絡ください。