群馬県桐生市本町5丁目(桐生駅)の中古マンション・新築マンション・分譲マンション:物件詳細
交通 所在地 |
駅徒歩 |
価格 |
構造 階建/階 |
間取り 専有面積 |
物件種目 築年月 |
|
JR両毛線/桐生
群馬県桐生市本町5丁目
|
7分
|
1,630万円
|
RC
14階建 / 8階
|
2LDK
56.46m²
|
中古マンション
2008年2月(築17年10ヶ月)
|
|
ペット相談、南向き、オール電化、管理人日勤
|
|
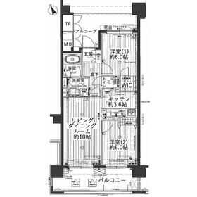
間取図
|
外観
「趣」や「風情」が安心感をマイホームにプラス
|
<
その他の画像
>
|
| 交通 | JR両毛線 桐生駅 徒歩7分 |
|---|
| その他の交通 | わたらせ渓谷鉄道 桐生駅 徒歩7分 上毛電鉄 西桐生駅 徒歩10分 |
| 所在地 |
群馬県桐生市本町5丁目
|
| 物件種目 |
中古マンション |
| 価格 |
1,630万円 |
平米単価 |
28.87万円 |
| 管理費等 |
9,690円 |
修繕積立金 |
8,020円 |
| 借地期間・地代(月額) |
- |
権利金 |
- |
| 敷金または保証金 |
- / - |
維持費等 |
インターネット使用料:1,680円/月、自治会費:600円/月 |
| その他一時金 |
- |
|
|
| 間取り |
2LDK(洋 6・6 LDK 13.6) |
専有面積 |
56.46m²(壁芯) |
| 階建 / 階 |
14階建 / 8階 |
バルコニー |
13.05m² |
| 築年月 |
2008年2月(築17年10ヶ月)
|
建物構造 |
RC |
| 駐車場 |
有 5,000円/月 |
総戸数 |
- |
| 駐輪場 |
有 200円/月 |
バイク置き場 |
有 1,000円/月 |
| ペット |
相談 |
|
|
| 土地権利 |
所有権 |
敷地面積 |
- |
| 管理形態/管理員の勤務形態 |
全部委託/日勤(ライフポート西洋) |
国土法届出 |
- |
| アピールポイント |
お探しの方には嬉しいペット相談可。不審者の侵入に目を光らせる防犯カメラ完備、更にガスにありがちな付けっぱなしや閉め忘れなどの心配がないオール電化仕様なので、ガス漏れの心配がありません。また広々とした専有面積56.46㎡の居室空間で、その上不在時の受け取りも楽々の宅配BOX付なので、ネット通販大好き派にはお勧めです。ちなみに食後お皿を下げるのもスムーズなカウンターキッチンです。家族の安心拠点になる2LDK。ご案内いたしますのでお気軽にご連絡ください。 |
| 建物名・部屋番号 |
シーズガーデン桐生本町 |
| リフォーム履歴 |
- |
| リノベーション履歴 |
- |
| 瑕疵保証 |
- |
| 瑕疵保険 |
- |
| 評価・証明書 |
- |
| 備考 |
主要採光面:南向き
用途地域:商業地域
|
| エネルギー消費性能 |
- |
| 断熱性能 |
- |
| 目安光熱費 |
- |
| バス・トイレ |
オートバス、追焚機能、シャワー付洗面化粧台、温水洗浄便座 |
| キッチン |
カウンターキッチン、浄水器 |
| 設備・サービス |
ウォークインクローゼット、床暖房、バイク置き場、クローゼット、オートロック、モニター付インターホン、防犯カメラ、駐輪場 |
| その他 |
宅配BOX、エレベーター |
| 条件等 |
- |
現況 |
空家 |
| 引渡可能時期 |
相談 |
物件番号 |
6985718126 |
| 情報公開日 |
2025年4月1日 |
次回更新予定日 |
2025年11月15日 |
| ケータイ用バーコード |
- スマートフォンでこの物件を見る
- スマートフォンからもこの物件をご覧になれます。
|
※「-」と表示されている項目については、情報提供会社にご確認ください。
| 周辺施設 |
ファミリーマート桐生末広町店 |
| 距離 |
311m |
| 周辺施設 |
セブンイレブン桐生東小前店 |
| 距離 |
579m |
ここから簡単にお問い合わせをすることができます。
(SSLでの暗号化での送信を希望されるお客さまは
こちら
よりお問い合わせください)
お問い合わせを行う前に
「個人情報の取り扱いについて」を必ずお読みください。
「個人情報の取り扱いについて」に同意いただいた場合は「上記にご同意の上 確認画面へ進む」のボタンをクリックしてください。
個人情報の取り扱いについて
皆さまが送付された個人情報はアットホーム(株)のサーバを経由し、お問い合わせ先の不動産会社にメールまたはFAXにて転送されるためアットホーム(株)にも保管されます。アットホーム(株)で保管された個人情報の取り扱いについては、【こちら】をご覧ください。
また、本画面でご記入いただいた個人情報は、お問い合わせ先の不動産会社でも保管します。 お問い合わせ先の不動産会社が保管する個人情報の取り扱いについては、不動産会社に直接お問い合わせください。
国土交通大臣免許(6)第5655号 |
|---|
- 交通:
- JR両毛線/前橋駅 徒歩14分 【バス】 停歩10分
- 群馬県前橋市本町2丁目3-1
- TEL:
- 027-243-8811
- FAX:
- 027-243-1001
- 所属団体:
- (一社)群馬県宅地建物取引業協会会員不動産公正取引協議会加盟
取引態様:専任媒介  - 00130794
|
- スマートフォンで
この不動産会社を見る

|
- 提携サイト等より掲載されている物件情報につきましては、不動産会社詳細情報にリンクされていないものがあります。
- 物件に関するお問合せは、物件詳細ページの「情報提供会社」に表示されている不動産会社へ直接お願いいたします。
- 間取図は、現況を優先させていただきます。
- 映像は物件の一部を撮影したものです。物件の契約にあたっての最終判断はご自身の判断に基づいて行ってください。
- 仲介手数料について

アットホームは物件情報の適正化に努めております。
内容に誤りがある場合にはこちらへご連絡ください。