広島県広島市東区中山南1丁目(矢賀駅)の中古マンション・新築マンション・分譲マンション:物件詳細
交通 所在地 |
駅徒歩 |
価格 |
構造 階建/階 |
間取り 専有面積 |
物件種目 築年月 |
芸備線/矢賀
広島県広島市東区中山南1丁目
|
16分
|
1,300万円
|
SRC
14階建 / 7階
|
3LDK
68.27m²
|
中古マンション
1995年5月(築30年6ヶ月)
|
閑静な住宅街、管理人日勤、IT重説対応物件
|
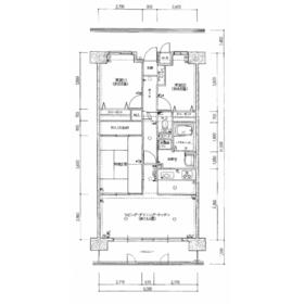
間取図
|
外観
|
その他の画像
|
交通 | 芸備線 矢賀駅 徒歩16分 |
所在地 |
広島県広島市東区中山南1丁目
|
物件種目 |
中古マンション |
価格 |
1,300万円 |
平米単価 |
19.05万円 |
管理費等 |
5,100円 |
修繕積立金 |
6,140円 |
借地期間・地代(月額) |
- |
権利金 |
- |
敷金または保証金 |
- / - |
維持費等 |
- |
その他一時金 |
- |
|
|
間取り |
3LDK(和 6 洋 5.6・4.6) |
専有面積 |
68.27m²(壁芯) |
階建 / 階 |
14階建 / 7階 |
バルコニー |
9.00m² |
築年月 |
1995年5月(築30年6ヶ月)
|
建物構造 |
SRC |
駐車場 |
有 9,000円/月 |
総戸数 |
56戸 |
駐輪場 |
- |
バイク置き場 |
- |
ペット |
-
|
|
|
土地権利 |
所有権 |
敷地面積 |
- |
管理形態/管理員の勤務形態 |
全部委託/日勤(ロウジュウコミュニティー) |
国土法届出 |
- |
アピールポイント |
閑静な住宅街の住戸、更に上下の行き来がストレスにならないエレベーター2基以上敷設なので、待ち時間のストレスから開放されます。また受け取りに心配なしの宅配BOX付で、その上お鍋とフライパンを使いながらヤカンもおけるコンロ3口以上の仕様なので、晩ごはんの支度と翌日の弁当準備ができます。ちなみに不審者の侵入に目を光らせる防犯カメラ完備です。自然に団らんが生まれる3LDK。ご案内いたしますのでお気軽にご連絡ください。 |
建物名・部屋番号 |
ペルル中山南参番館 704 |
リフォーム履歴 |
■内装:2025年4月 床(フローリング等) 洋室をフローリングへ変更 ※実施年月は最も古い履歴を表示 |
リノベーション履歴 |
- |
瑕疵保証 |
- |
瑕疵保険 |
- |
評価・証明書 |
- |
備考 |
主要採光面:東向き
IT重説対応物件
|
エネルギー消費性能 |
- |
断熱性能 |
- |
目安光熱費 |
- |
バス・トイレ |
- |
キッチン |
3口以上コンロ |
設備・サービス |
全居室収納、収納スペース、室内洗濯機置場、クローゼット、防犯カメラ、照明器具 |
その他 |
宅配BOX、エレベーター2基以上 |
条件等 |
- |
現況 |
空家 |
引渡可能時期 |
即時 |
物件番号 |
6985805758 |
情報公開日 |
2025年6月11日 |
次回更新予定日 |
2025年10月28日 |
ケータイ用バーコード |
- スマートフォンでこの物件を見る
- スマートフォンからもこの物件をご覧になれます。
|
※「-」と表示されている項目については、情報提供会社にご確認ください。
周辺施設 |
マックスバリュフォレオ広島東店 |
距離 |
1146m |
ここから簡単にお問い合わせをすることができます。
(SSLでの暗号化での送信を希望されるお客さまは
こちら
よりお問い合わせください)
お問い合わせを行う前に
「個人情報の取り扱いについて」を必ずお読みください。
「個人情報の取り扱いについて」に同意いただいた場合は「上記にご同意の上 確認画面へ進む」のボタンをクリックしてください。
個人情報の取り扱いについて
皆さまが送付された個人情報はアットホーム(株)のサーバを経由し、お問い合わせ先の不動産会社にメールまたはFAXにて転送されるためアットホーム(株)にも保管されます。アットホーム(株)で保管された個人情報の取り扱いについては、【こちら】をご覧ください。
また、本画面でご記入いただいた個人情報は、お問い合わせ先の不動産会社でも保管します。 お問い合わせ先の不動産会社が保管する個人情報の取り扱いについては、不動産会社に直接お問い合わせください。
国土交通大臣免許(2)第9748号 |
---|
- 広島県広島市安佐南区山本新町5丁目1-10
- TEL:
- 082-533-6368
- FAX:
- 082-533-6369
- 所属団体:
- (公社)広島県宅地建物取引業協会会員中国地区不動産公正取引協議会加盟
取引態様:媒介  - 50108989
|
- スマートフォンで
この不動産会社を見る

|
- 提携サイト等より掲載されている物件情報につきましては、不動産会社詳細情報にリンクされていないものがあります。
- 物件に関するお問合せは、物件詳細ページの「情報提供会社」に表示されている不動産会社へ直接お願いいたします。
- 間取図は、現況を優先させていただきます。
- 映像は物件の一部を撮影したものです。物件の契約にあたっての最終判断はご自身の判断に基づいて行ってください。
- 仲介手数料について

アットホームは物件情報の適正化に努めております。
内容に誤りがある場合にはこちらへご連絡ください。