大阪府大阪市中央区久太郎町2丁目(堺筋本町駅)の中古マンション・新築マンション・分譲マンション:物件詳細
交通 所在地 |
駅徒歩 |
価格 |
構造 階建/階 |
間取り 専有面積 |
物件種目 築年月 |
|
地下鉄堺筋線/堺筋本町
大阪府大阪市中央区久太郎町2丁目
|
1分
|
10,980万円
|
RC
地上44階地下1階建 / 13階
|
2LDK
63.52m²
|
中古マンション
オーナーチェンジ
2024年1月(築2年)
|
|
角部屋、24時間セキュリティー、バス1坪以上、2面採光、管理人日勤
|
|
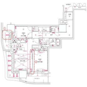
間取図
|
外観
|
<
その他の画像
>
|
| 交通 | 地下鉄堺筋線 堺筋本町駅 徒歩1分 |
|---|
| その他の交通 | 地下鉄中央線 堺筋本町駅 徒歩4分 地下鉄御堂筋線 本町駅 徒歩9分 |
| 所在地 |
大阪府大阪市中央区久太郎町2丁目
|
| 物件種目 |
中古マンション |
| 価格 |
10,980万円 |
平米単価 |
172.86万円 |
| 管理費等 |
17,620円 |
修繕積立金 |
5,480円 |
| 借地期間・地代(月額) |
- |
権利金 |
- |
| 敷金または保証金 |
- / - |
維持費等 |
ホームセキュリティー:990円/月、インターネット:1,100円/月、プロバイダー:330円/月 |
| その他一時金 |
- |
|
|
| 間取り |
2LDK(洋 6・4.5 LDK 12.6) |
専有面積 |
63.52m²(壁芯) |
| 階建 / 階 |
地上44階地下1階建 / 13階 |
バルコニー |
12.13m² |
| 築年月 |
2024年1月(築2年)
|
建物構造 |
RC |
| 駐車場 |
- |
総戸数 |
511戸 |
| 駐輪場 |
- |
バイク置き場 |
- |
| ペット |
-
|
|
|
| 土地権利 |
所有権 |
敷地面積 |
- |
| 管理形態/管理員の勤務形態 |
全部委託/日勤(近鉄住宅管理(株)) |
国土法届出 |
- |
| アピールポイント |
◇「庭」を愉しむタワーレジデンス
ゲーテッドガーデン
都心の森が実感できます
◇ホテルライクな内廊下仕様
抗菌・抗ウイルスタイルカーペットを採用
◇エントランスオートロックは
安心の顔認証セキュリティを導入
◇各階ゴミ回収サービス
24時間使えます
◇タワーレジデンスならではの贅なる日常を叶える、
多彩な共用スペース
・B1階
ゴルフレンジ
・1階
エントランスホール、ラウンジ、コミュニティテラス、
グランドアトリウム、コーチエントランス
・2階
ゲストスイート(NORTH SOUTH)、
アカデミースペース、フォーカスルーム
・35階
フィットネスルーム、スカイラウンジ、
クラブラウンジ |
| 建物名・部屋番号 |
ローレルタワー堺筋本町 |
| リフォーム履歴 |
- |
| リノベーション履歴 |
- |
| 瑕疵保証 |
- |
| 瑕疵保険 |
- |
| 評価・証明書 |
- |
| 備考 |
利回り:3.69%
年間予定賃料収入:406.1万円
◆表面利回り3.69% ♪
◆家賃収入 338.420円/月
◆賃借人入居 令和7年2月10日
◆賃料保証会社加入済
☆エントランスオートロックは安心の顔認証セキュリティを導入
☆各階ゴミ回収サービスは24時間使えます
☆エアシャワー室(1階)強力ジェットエアーで花粉などを除去
☆コンシェルジュサービスはタクシー手配など、快適なタワーライフをサポート
○スーパーライフ徒歩2分でお買い物楽々
|
| エネルギー消費性能 |
- |
| 断熱性能 |
- |
| 目安光熱費 |
- |
| バス・トイレ |
浴室暖房、浴室乾燥機、追焚機能、シャワー付洗面化粧台、温水洗浄便座 |
| キッチン |
カウンターキッチン、システムキッチン、食器洗浄乾燥機、浄水器、ディスポーザー、3口以上コンロ |
| 設備・サービス |
モニター付オートロック、全居室収納、床暖房、室内洗濯機置場、シューズインクローゼット、オートロック、全居室フローリング、都市ガス、二面バルコニー、人感センサー付照明、ダウンライト、複層ガラス |
| その他 |
エレベーター |
| 条件等 |
オーナーチェンジ |
現況 |
賃貸中 |
| 引渡可能時期 |
指定有り2026年1月31日 |
物件番号 |
6986050198 |
| 情報公開日 |
2025年4月21日 |
次回更新予定日 |
2026年1月5日 |
| ケータイ用バーコード |
- スマートフォンでこの物件を見る
- スマートフォンからもこの物件をご覧になれます。
|
※「-」と表示されている項目については、情報提供会社にご確認ください。
| 周辺施設 |
ファミリーマート久太郎町二丁目店 |
| 距離 |
72m |
| 周辺施設 |
ローソン久太郎町一丁目店 |
| 距離 |
183m |
| 周辺施設 |
ミニストップ大阪船場センタービル店 |
| 距離 |
187m |
ここから簡単にお問い合わせをすることができます。
(SSLでの暗号化での送信を希望されるお客さまは
こちら
よりお問い合わせください)
お問い合わせを行う前に
「個人情報の取り扱いについて」を必ずお読みください。
「個人情報の取り扱いについて」に同意いただいた場合は「上記にご同意の上 確認画面へ進む」のボタンをクリックしてください。
個人情報の取り扱いについて
皆さまが送付された個人情報はアットホーム(株)のサーバを経由し、お問い合わせ先の不動産会社にメールまたはFAXにて転送されるためアットホーム(株)にも保管されます。アットホーム(株)で保管された個人情報の取り扱いについては、【こちら】をご覧ください。
また、本画面でご記入いただいた個人情報は、お問い合わせ先の不動産会社でも保管します。 お問い合わせ先の不動産会社が保管する個人情報の取り扱いについては、不動産会社に直接お問い合わせください。
国土交通大臣免許(1)第11052号 |
|---|
- 交通:
- JR東海道本線/さくら夙川駅 徒歩15分
- 兵庫県西宮市西田町5-4 イーストサイド夙川302
- TEL:
- 0798-70-4588
- 所属団体:
- (一社)兵庫県宅地建物取引業協会会員(公社)近畿地区不動産公正取引協議会加盟
取引態様:専任媒介  - 50111038
|
- スマートフォンで
この不動産会社を見る

|
- 提携サイト等より掲載されている物件情報につきましては、不動産会社詳細情報にリンクされていないものがあります。
- 物件に関するお問合せは、物件詳細ページの「情報提供会社」に表示されている不動産会社へ直接お願いいたします。
- 間取図は、現況を優先させていただきます。
- 映像は物件の一部を撮影したものです。物件の契約にあたっての最終判断はご自身の判断に基づいて行ってください。
- 仲介手数料について

アットホームは物件情報の適正化に努めております。
内容に誤りがある場合にはこちらへご連絡ください。