福島県いわき市平字一町目(いわき駅)の中古マンション・新築マンション・分譲マンション:物件詳細
交通 所在地 |
駅徒歩 |
価格 |
構造 階建/階 |
間取り 専有面積 |
物件種目 築年月 |
|
JR常磐線/いわき
福島県いわき市平字一町目
|
9分
|
1,900万円
|
RC
地上17階地下1階建 / 16階
|
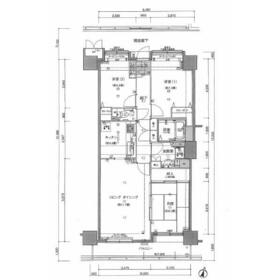
3LDK
77.67m²
|
中古マンション
2002年3月(築23年10ヶ月)
|
|
南向き、管理人日勤
|
|
間取図
|
|
<
その他の画像
>
|
| 交通 | JR常磐線 いわき駅 徒歩9分 |
| 所在地 |
福島県いわき市平字一町目
|
| 物件種目 |
中古マンション |
| 価格 |
1,900万円 |
平米単価 |
24.47万円 |
| 管理費等 |
11,369円 |
修繕積立金 |
11,678円 |
| 借地期間・地代(月額) |
- |
権利金 |
- |
| 敷金または保証金 |
- / - |
維持費等 |
- |
| その他一時金 |
- |
|
|
| 間取り |
3LDK(和 6 洋 4.9・7.3 LDK 15.5) |
専有面積 |
77.67m²(壁芯) |
| 階建 / 階 |
地上17階地下1階建 / 16階 |
バルコニー |
8.97m² |
| 築年月 |
2002年3月(築23年10ヶ月)
|
建物構造 |
RC |
| 駐車場 |
有 12,650円/月 |
総戸数 |
84戸 |
| 駐輪場 |
有 無料 |
バイク置き場 |
- |
| ペット |
-
|
|
|
| 土地権利 |
所有権 |
敷地面積 |
- |
| 管理形態/管理員の勤務形態 |
全部委託/日勤(平一丁目都市開発株式会社) |
国土法届出 |
- |
| アピールポイント |
・近隣は商業施設が充実しており、利便性が高く生活しやすい環境です。
・高層階(16階)の部屋なので眺望が良好で、日当たりも良く明るく開放的な雰囲気です。
・ペットは不可になります。
・こちらの物件のキッチンには食器棚が設置されている状態です。
ピッタリサイズで設計されているため搬出が難しく、もし買主様のお好みに合えば
使って頂きたいとの事です。
アンティーク調のダークブラウンの食器棚で、綺麗な状態です。
不要な場合は解体して撤去もできますので、ご相談いただけばと思います。
・壁紙など傷や汚れが目立っていた部分については、売主様の方でリフォーム
しましたので、全体的に綺麗な状態です。
◆内見可能ですので、ご希望の方は弊社までお気軽にお問い合わせ下さい。 |
| 建物名・部屋番号 |
グラン・ディ・セーラムT1 |
| リフォーム履歴 |
- |
| リノベーション履歴 |
- |
| 瑕疵保証 |
- |
| 瑕疵保険 |
- |
| 評価・証明書 |
- |
| 備考 |
主要採光面:南向き
用途地域:商業地域
|
| エネルギー消費性能 |
- |
| 断熱性能 |
- |
| 目安光熱費 |
- |
| バス・トイレ |
浴室乾燥機、追焚機能、シャワー付洗面化粧台 |
| キッチン |
- |
| 設備・サービス |
収納スペース、室内洗濯機置場、クローゼット、モニター付インターホン、給湯、出窓、都市ガス、駐輪場 |
| その他 |
宅配BOX、エレベーター2基以上 |
| 条件等 |
- |
現況 |
空家 |
| 引渡可能時期 |
相談 |
物件番号 |
6986078665 |
| 仲介手数料 |
売買代金の3%+6万円 |
|
|
| 情報公開日 |
2025年5月30日 |
次回更新予定日 |
2025年12月8日 |
| ケータイ用バーコード |
- スマートフォンでこの物件を見る
- スマートフォンからもこの物件をご覧になれます。
|
※「-」と表示されている項目については、情報提供会社にご確認ください。
| 周辺施設 |
セブンイレブンいわき駅前通り西店 |
| 距離 |
334m |
| 周辺施設 |
スターバックスコーヒーいわき平堂ノ前店 |
| 距離 |
525m |
ここから簡単にお問い合わせをすることができます。
(SSLでの暗号化での送信を希望されるお客さまは
こちら
よりお問い合わせください)
お問い合わせを行う前に
「個人情報の取り扱いについて」を必ずお読みください。
「個人情報の取り扱いについて」に同意いただいた場合は「上記にご同意の上 確認画面へ進む」のボタンをクリックしてください。
個人情報の取り扱いについて
皆さまが送付された個人情報はアットホーム(株)のサーバを経由し、お問い合わせ先の不動産会社にメールまたはFAXにて転送されるためアットホーム(株)にも保管されます。アットホーム(株)で保管された個人情報の取り扱いについては、【こちら】をご覧ください。
また、本画面でご記入いただいた個人情報は、お問い合わせ先の不動産会社でも保管します。 お問い合わせ先の不動産会社が保管する個人情報の取り扱いについては、不動産会社に直接お問い合わせください。
福島県知事免許(2)第3242号 |
|---|
- 交通:
- JR常磐線/いわき駅 徒歩46分 【バス】11分 杉内 停歩3分
- 福島県いわき市平下平窪山土内町2-20
- TEL:
- 0246-24-1118
- FAX:
- 0246-24-2225
- 所属団体:
- (公社)福島県宅地建物取引業協会会員東北地区不動産公正取引協議会加盟
取引態様:一般媒介  - 20005083
|
- スマートフォンで
この不動産会社を見る

|
- 提携サイト等より掲載されている物件情報につきましては、不動産会社詳細情報にリンクされていないものがあります。
- 物件に関するお問合せは、物件詳細ページの「情報提供会社」に表示されている不動産会社へ直接お願いいたします。
- 間取図は、現況を優先させていただきます。
- 映像は物件の一部を撮影したものです。物件の契約にあたっての最終判断はご自身の判断に基づいて行ってください。
- 仲介手数料について

アットホームは物件情報の適正化に努めております。
内容に誤りがある場合にはこちらへご連絡ください。